
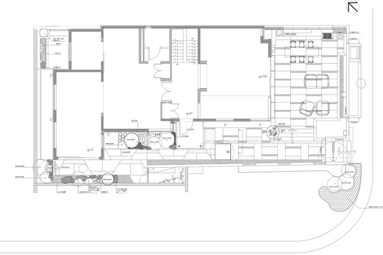
这是一个庭院改造项目,项目位于北京龙湾别墅,面积为130㎡。业主和我们希望营造一个实用和温馨的户外环境。宽敞的户外“客厅”,功能完善的就餐区,同时还要可以听到水的声音看到水流却没有一汪难以维护的水池。进入大门是直通入户的园路,交通尽量便捷,抬高的道路两侧是砾石排水,甲南园林希望通过抬高的路面使入户即使在下雨天也是干净清爽的,便捷却不直白。室外活动区通过空间的整合,保留了一个相对开阔的空间,墙面利用实用的隔板营造一个亲切温馨的活动场所,同时墙面的隔板变成了一个可以不断变化的富于生活气息的装饰墙。

北京龙湾别墅庭院外部实景图

北京龙湾别墅庭院外部实景图

北京龙湾别墅庭院外部实景图

北京龙湾别墅庭院外部实景图

北京龙湾别墅庭院外部实景图

北京龙湾别墅庭院外部实景图

北京龙湾别墅庭院外部实景图

北京龙湾别墅庭院外部实景图

北京龙湾别墅庭院外部实景图

北京龙湾别墅庭院外部夜景实景图

北京龙湾别墅庭院外部夜景实景图

北京龙湾别墅庭院外部夜景实景图

北京龙湾别墅庭院外部夜景实景图

北京龙湾别墅庭院草图

北京龙湾别墅庭院草图

北京龙湾别墅庭院平面图