

© 张超
来到南头古城你会非常欣赏十字街上各式各样的老房子,青砖灰瓦的东莞会馆,彩塑高耸的新安县衙,灰雕彩画的报德祠,三进院落的信国公文氏祠堂,和各种临街的精致时尚商铺建筑。道路由青石板和小石块铺砌。走过十字街的同时你也能顺着穿插的街道小巷望见生活气息浓郁,烟火味十足的城中村生活场景。鱼肉蔬果摊贩、小卖部、餐厅、理发店、甚至快递接收门店等。这里有围坐在台阶上的白发老人,有三两嬉戏追逐的小学生,也有快递骑行匆匆穿越的身影,他们与十字街上熙熙攘攘的游客插肩,可能就是这么不经意间的一瞥,南头古城里这些多元混杂,拼贴交错的场景片段足以让你驻足回味半天。或许你会赞叹:能够每天看到古城里看不完的景致的人,他们是多么幸福啊!

© 张超

© 张超

© 张超
如果你从古城的东门进入,步行 50 米可来到信国公文氏祠,当你的视线顺着东街往西,即会被斜对面建筑首层的小花园吸引。再抬头往上,便会看到一栋城中村典型的灰色水刷石村楼,你会好奇仿佛飘浮在空中的灰色建筑体块。如果经常穿越在城中村,或者对上个世纪80年代房子还有些许印记的你一定会似曾相识,这个灰色建筑体其实是由轻质的发泡陶瓷单元模块阵列砌筑而成。虽然建筑立面上已经没有了封闭的金属阳台栏杆,无序加建的压型铝板阁楼和零星外挂的空调机,但仍可能会被误以为依旧是一栋住宅楼。

发泡陶瓷材料

© 张超

© 张超
首层的无岚茶居延续了古城街区的商业氛围,建筑入口往里退让出的灰空间放大了狭窄的街道,同时与信国公文氏祠入口景观空间节点呼应。原有楼梯通道出入口成为了临街的橱窗展示。无岚茶居空间内部因主理人对茶品质储藏保障和灵活性的展陈要求,不能让装修材料对茶的影响。

© 张超

分析图

轴测分析图
设计中没有吊顶,没有安装施工的木质漆柜,没有多余设计的地方,只有在原建筑墙面上的一层薄薄的仿夯土面层和主理人淘来的老柜子、旧木桌椅。无论哪个角度,只要你抬眼望去,都呈现出一种古朴典雅的风韵,你可以在这个空间里品茶、焚香、赏花、聊天、挑选壶杯罐盏等器物,或者也可以与主理人交流茶艺,甚至参与不定期举办的茶会活动。

© 张超

© 张超
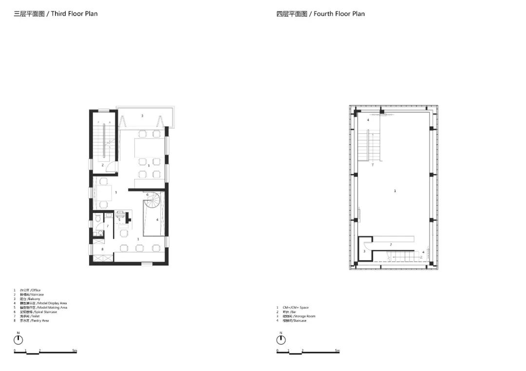
关于厘米制造工作室,你所能看到的不外乎是设计师日常创作的工作场所:一组组绘制图纸的工作台面,一整面设计资料书籍墙柜,一系列的设计模型和贴满整面软木墙的项目图片。正因为选择城中村住宅居室来完成设计工作室的空间置换,我们没有理由逃避它的狭小尺度,而是尽可能拆除掉不起结构作用的隔墙,打开二三层之间的局部楼板,扩大竖向空间加以螺旋楼梯连通,加强两层工作室空间内部的互动与联络。

© 张超

© 张超

© 张超
这面二层通高墙体中的窗扇被封堵,室外水刷石立面内凹,暗示过去的窗洞位置,室内刻意裸露出旧砖块,成为模型展架的粗犷背景。空间中的T型构造柱结合展示柜和模型制作台具有持久的混合品质。当然也少不了把那个时代城中村最具代表性的“马赛克”融合进去,恰好成为服侍空间与被服侍空间的界面。

© 张超

© 张超

© 张超

© 张超

© 张超
无论是过去的住宅楼还是现在看到的厘米制造工作室,比起当初房东盖楼或许都没有多少建筑材料上的变化,但是它的奇特之处在于,从前认为平常的,如今已经变得新奇,从前以为低技的,如今已经成为设计。而且由于功能的改变,使得这里日间充满的生机与活力。

© 张超

© 张超
如果说四楼从它的外表已经给人一种强烈期待,真正的震撼应该在内部等着你。CM+是一个公共开放的复合型空间,是一个新建在底层加固建筑之上的开敞空间,自由而灵活,可以举办展览、沙龙、培训、会议等活动。

© 张超

© 张超

© 张超
屋顶平台是室内空间功能向外的延展,可以欣赏到南头古城各个时期的建筑图景。

© 张超

© 张超
整个设计过程尊重历史的原真性,珍惜各个时代的文化层积和历史印记,秉承南头古城保护与重生的城市设计思路,结合古城文化,展厅空间的散落布置,尝试串联立体公共开放文化活动空间系统,与修缮后的文化古建筑及城中村人文景观资源建立联系,增进互动体验。作为十字街上唯一一栋将住宅楼改造集商业,办公,展厅等异质同体的建筑,正是此次古城改造更新升级的多元共生样本。

© 张超

© 张超
项目图纸

项目区位图

改造前照片 © 万科城市研究院

总平面图

平面图

平面图

立面图

剖面图

节点图

模型照片

模型照片
项目信息
项目名称:厘米制造南头古城工作室
建筑设计:深圳厘米制造设计有限公司
项目完成年份:2021年6月
建筑面积:305㎡
项目地址:深圳市南山区南头街道南头古城中山东街29号
主创建筑师:陈丹平
设计团队:陈丹平,廖俊,杨恒,姚明明,钟应川
委托方:深圳厘米制造设计有限公司
施工方:深圳市西部城建工程有限公司(建筑)、匠心见造(室内)
合作方:深圳市万科发展有限公司、深圳市博万建筑设计事务所、万科城市研究院、万路设计、大观国际设计咨询有限公司
摄影师:张超
编辑:邵珠琦
*本文内容来自建筑事务所
标题及版式由 ArchDaily 整理
转载或任何形式的引用请联系设计团队