本文针对酒店式公寓的空间尺度标准有非常全面细致分析,满满的干货。
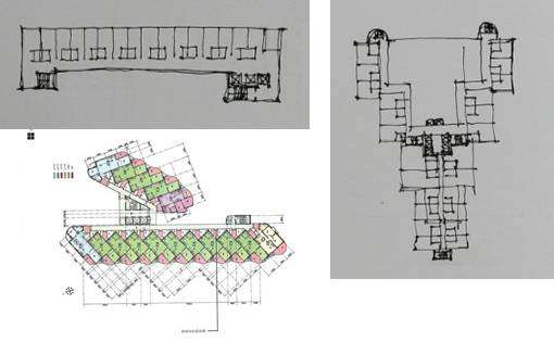
一、常见的酒店式公寓建筑平面层组合形式
酒店式公寓的建筑平面组合形式适用于走道式组合和单元式组合这两种形式,并且酒店式公寓的建筑结构形式类似于酒店,其平面布置形式也类似于酒店式的客房布置,因此,酒店式公寓的平面组合形式大致有以下几种:
1.走道式组合——内廊式
内廊式即是沿走道两侧布置房间,这种组合形式平面紧凑,建筑进深大,有利于寒冷地区的保温节能,但有一侧房间的朝向较差,走道两侧的房间之间有一定的干扰,走道的采光通风较差。

2.走道式组合——外廊式
外廊式是沿走道一侧布置房间,这种组合形式可使房间获得良好的朝向及采光通风条件,但其走道所占面积相对较多,建筑进深较小,用地较多,不够经济。

3.中庭式
此类设计层平面四周围合,中央是内院或中庭,除了房间有良好的窗外景观之外,走廊一侧也提供了较好的中庭景观,并且部分裙楼还做到南北通透。


4.塔楼式
塔楼式是指中部的核心筒被单一的走廊或很多客房环绕着,对塔外部的建筑处理可以有不同图形方案,有方形、十字形、圆形、三角形等等。

塔楼式平面组合形式平面紧凑,布局整齐,外形较为统一,利于建筑的标准化和形式的多样化,利用率较高。
二、常见的酒店式公寓户型设计
1、长方形:这是最常见的酒店式公寓户型布局,类似酒店客房排布。
2、偏方形、正方形:此两类户型排布面宽大,进深小,采光和通风较好。
3、不规则形:主要布置于转角处或建筑外观有斜边的建筑当中。
三、各功能空间家具的基本尺寸与布局
客厅
客厅是公共的会客空间,主要的居住活动包括家庭团聚、视听活动、会客接待。
1.沙发
团聚、会客、视听的主要居住行为通常以沙发组及视听设备展开,与之相对应的居室空间布局便是通过多人沙发或沙发组+茶几+电视柜组合而成。
此外,为满足其他阅读学习、运动、储藏、展示等兼具功能,还需增加角几、台灯、装饰陈列柜或书柜、储物柜等家具设备,但这些家具的增设应处于辅助地位, 不应影响沙发组+茶几+电视柜的组合所需空间。
(1)单人式沙发:长度:800-1100㎜;深度:800-1000㎜;高度:750-820㎜

(2)双人式沙发:长度:1400-1700㎜;深度:800-1000㎜;高度:750-820㎜

(3)三人式沙发:长度:2000-2500㎜;深度:800-1000㎜;高度:750-820㎜

(4)三人转角式沙发:长度:2800-3300㎜;深度:1400-2200㎜;高度:750-820㎜

2.茶几

(1)长方形:长度:1100-1450㎜;宽度:600-800㎜;高度:400-500㎜
(2)长方形(小型):长度:600-750㎜;宽度:500-600㎜;高度:400-500㎜
(3)正方形:长度:800-1000㎜;宽度:800-1000㎜;高度:400-500㎜
3.电视柜

(1)电视柜墙面立面:长度:2000-3000㎜;宽度:400-500㎜;高度:400-500㎜

(2)电视柜家具尺寸:长度:2000-2200㎜;宽度:400-460㎜;高度:650-720㎜。
4.角几
正方形角几:边长500-700㎜;高度500-600㎜;
圆形角几:直径:500-600㎜;高度:500-600㎜。
5.开间

一般来讲,目前市场中套型设计中,较为常见和普通使用的起居室面宽为3900-4500㎜。但当地面宽条件或单套总面积受到某些原因限制时,可以适当压缩起居室面宽至3600㎜.

在目前房地产市场中,部分消费者对居室要求越来越追求舒适与豪华,则起居室面宽可以达到6000㎜以上。
卧室
卧室在套型中扮演着十分重要的角色。一般人的一生中近1/3的时间处于睡眠状态中,拥有一个温馨、舒适的卧室是不少人追求的目标。但是卧室分为主卧室和次卧室,其家具和布置形式也会发生改变。
主卧室家具设备:双人床、电视柜、衣柜、床头柜、梳妆台等。
1.双人床
宽度:1350,1500,1800,2000㎜;长度:2000-2200㎜
地面至床靠面的距离:800-950㎜
地面至床面的距离:400-500㎜
2.衣橱
一般来说,衣橱的尺寸主要对高度和深度有讲究,其长度的设置主要取决于房间墙面大小及主人需求,衣橱的深度一般在550-600㎜,以600㎜最为适宜,高度不得小于2000㎜,且内部设置可根据不同人群打造。
3.床头柜
正方形:正方形的床头柜以500㎜尺度适宜;
长方形:长方形的床头柜以长度为500-600㎜,宽度为450-500㎜尺度适宜;
床头柜立面图:床头柜的高度以平行于或低于床面的高度较为适宜,一般在400-500㎜左右。
4.主卧室各家具布置
(1)电视柜应放在主人卧床的对面,以便休闲需要;
(2)衣橱等高家具应靠内墙布置,避开进门的视线,以使室内空间看上去高敞;
(3)若主卧室空间较为宽敞,在此区域还可放置梳妆台式的写字台或窗边可防止休闲座椅或植物等相应的设备,若为年轻夫妇,则还要考虑某段时期放置婴儿床,但是不得影响其他家具的正常使用;
(4)床作为卧室最主要的家具,双人床应居中布置,应满足两人从不同方向上下床、铺设及整理被褥的需要。
5.床周边的活动要求
床作为卧室最主要的家具,双人床应居中布置,并应考虑两人从不同方向上下床、铺设及整理被褥及通行活动的需要,以免带来生活上的不便。

床的边缘与墙或其他障碍物之间的通行距离不宜小于500㎜;考虑到方便两边上下床、铺设、整理被褥、开拉门取物等动作,该距离最好不要小于600㎜;当照顾到穿衣动作完成时,如弯腰、伸臂等,其距离应保持在900㎜以上。
6.床的使用要求及放置要求
(1)床不要正对门布置,以免影响其私密性;
(2)床不宜靠窗或阳台门摆放,以免影响开关窗户、窗帘或出入阳台;
(3)不要将床头对窗设置,以免夜晚睡觉着凉,不利于身体健康。
7.主卧室的开间
主卧室开间净尺寸可参考一下内容:
双人床长度:2000-2200㎜;电视柜宽度:600㎜;通行距离:600㎜以上;电视、床头柜后插头突出等引起的家具摆放缝隙所占宽度:100-150㎜。

所以,主卧室的面宽一般不宜小于3300㎜,设计为3600-3900㎜较为适宜。
次卧室
次卧室根据服务对象的不同,其家具和布置形式都会发生变化,在此主要是子女用房的家具和布置形式。
对于青少年来说,他们的房间既是卧室,又是书房,还充当客厅的作用,接待前来串门的同学、朋友。那么家具的布置可以分区来布置为:睡眠区、休闲区、储物区和学习区。
子女用房的主要家具设备有:单人床、床头柜、书桌、座椅、书柜等。
1.单人床
单人床长度为1900-2100㎜,宽度:900,1200㎜,床面至地面的距离:400-500㎜。
2.书桌
目前市场中大部分采用书柜、书桌、书架的组合电脑桌,这样方便青少年学习时能一步到位。
(1)组合电脑桌大致尺寸


以上组合电脑桌的尺寸只做为参考,根据参考的数据,组合书架的深度大致在240-300㎜左右为宜,书桌的长度1200-1600㎜,宽度560-760㎜(600㎜较为常见),高度在700-750㎜为宜,而台面下柜体的宽度在300-460㎜,深度在420-480㎜较为合适。
(2)电脑椅大致尺寸

可升降座椅,此类座椅的优点是可以自由的调节座位的高度,此类座椅的基本尺寸:长度520-600㎜,深度:560-650㎜,高度:850-950㎜。
3.次卧室尺寸
单人间次卧室

双人间次卧室

次卧室的功能具有多样化,设计时要充分考虑家具的布置形式及组合方式,目前常用的次卧室的面宽尺寸为3300-3600㎜,面积不宜小于10㎡。次卧室是根据服务对象及其需求的不同,所需的房间面积和面宽尺寸则不同。
餐厅空间尺寸
目前的套房设计中,餐厅一般单独设置,若面积要求有所限制时,也可布置在起居室但靠近餐厅的一隅,而就餐区域大小的确定不仅要考虑家具设备的大小,还应考虑人的活动。
1.用餐桌
(1)四人用餐桌:边长800-1000㎜;高度730-760㎜
(2)六人用餐桌:宽度800-1000㎜;长度1200-1600㎜;高度730-760㎜。
(3)八人用餐桌:宽度800-1000㎜;长度1800-2000㎜;高度730-760㎜。
2.餐厅人体活动空间尺寸
最小就座区间距

座椅后最小可通行距离

从以上可看出,若座椅后不设置通行区域,最小的就座区域宽度为760-910㎜,就餐时,椅背离桌边缘的最小距离为450㎜;若座椅后设置通行区域,则通行区的范围为760-910㎜。
但在市场的套房设计中,餐厅的尺寸并未完全按照以上尺寸布置,餐厅的大致开间尺寸如下图:
3-4人用餐厅:3-4人的用餐厅,开间净尺寸不宜小于2700㎜,使用面积不要小于10㎡。

6-8人用餐厅:6-8人的用餐厅,开间净尺寸不宜小于3000㎜,使用面积不要小于12㎡。

厨房空间尺度要求
厨房功能空间的设计主要是要考虑各类家具、设备的尺寸及相互协调间的要求,并考虑人在其内烹饪时所需的活动空间尺度。
厨房中操作台上的家具设置及布置形式大致如下:

厨房的操作台面主要由竖向管线、洗涤池台、灶台以及连接操作台组成,电冰箱可根据主人需要设置。
上图为厨房操作台面上各类家具、设 备的标志尺寸,均为M的倍数,即n×M,3≤n≤12.
操作台面上各家具、设备的推荐尺寸为:灶台7M;洗涤台9M;操作台6M(宽度);连接操作台6M。
新建住宅厨房,根据不同平面布置形式可分为:单排型、双排型、“L”型、“U”型。
市场调研表明,近几年居住者对厨房面积的需求越来越强烈。但从使用角度来讲,厨房的面积也不应一味过大,以免影响到厨房操作的工作效率。将厨房按照面积分为:经济型、小康型、舒适型。
1.经济型厨房:
(1)面积应控制在5-6㎡;
(2)厨房操作台总长度不小于2400㎜;
(3)单列或“L”型布置时,厨房净宽不小于1800㎜;
(4)双列布置时厨房净宽不小于2100㎜;
(5)冰箱可入厨,也可设置在厨房近旁或餐厅内。
2.小康型厨房:
(1)面积应控制在6-8㎡左右;
(2)厨房操作台总长度不小于2700㎜;
(3)“L”型布置时,厨房净宽不小于1800㎜;
(4)双列布置时厨房净宽不小于2100㎜;
(5)冰箱尽量入厨。
3.舒适型厨房:
(1) 面积应控制在8-12㎡左右
(2)厨房操作台总长度不小于3000㎜
(3)双列布置时厨房净宽不小于2400㎜
(4)冰箱尽量入厨
(5)有条件时,可加设洗衣间(家务室)、保姆间等,其面积值可进一步扩大
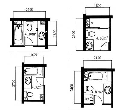
卫生间空间尺度要求
卫生间功能空间的设计主要是要考虑各类家具、设备的尺寸及相互协调间的要求,并考虑人在内所需的活动空间尺度,目前卫生间内的主要是用三件套卫浴布置。
坐便器:长度740-780㎜;宽度420-500㎜。
洗面器:长度:460,510,560㎜;宽度:360,410,460㎜
浴池:长度:1200,1500㎜;宽度:700,720㎜
洗衣机:边长:600㎜
卫浴设置——洗面器、坐便器、浴池或淋浴间、洗衣机等
浴池:人体进出面一边距墙≥600㎜
坐便器:中心距侧面器具≥350㎜,后边距墙≥200㎜,前边距墙、前门、洗面器的距离应保持在500-600㎜左右,且卫生间开门处不宜与坐便器正对,以免影响私密性
淋浴器:喷头中心距墙≥450㎜,喷头中心距器具水平距离≥350㎜
洗面器:中心距墙≥450㎜,侧边距一般器具≥100㎜,与浴池可重叠50㎜,前边距墙或器具≥600㎜
日常生活中,一般将洗面器做成洗面台,上面可摆放日常用品,如牙刷杯、牙膏等物。
三件套卫浴平面布置

四件套卫浴平面布置

投稿、爆料可添加微信kiwi52012,或直接发送到邮箱37738233@qq.com

明源移动验房,让业主开心收房,提升一次*交性**付成功率!
点击【阅读原文】,了解更多详情↓↓↓