原创 / 镁地产 陈一朵
写完了「汇悦台」、「凯旋新世界」,今天我们来说说旁边的「颐德公馆」——一个没什么话题,但可视为珠城五大顶豪的项目。
为了节省大家的时间, 先来个速评:
这个盘的最大优点是户型,采用的是珠江新城少见的板式结构,所以户户方正、南北对流,户户可望珠江公园,而且专梯到户,面积段为173平米至257平米之间,全为大户型。
户型的通透性、均衡性胜过东区大部分项目。楼龄比较新,属于2010年之后的产品。
档次感不错,可与汇悦台、凯旋新世界、天銮、尚东柏悦府并称珠江新城五大顶豪(大平层项目)。
缺点是IP感稍微弱了些,不似汇悦台、凯旋新世界那么有话题性,做为高端豪宅没问题,但作为顶级豪宅的共识度略显不足。
如果在其他豪宅买不到特别好的户型,选择颐德公馆,也不失为一个好的选择。毕竟,这个盘最大的优势是户型。
另外,颐德公馆也是珠江新城五大顶豪中唯一有叠墅产品的一个,总量只有20多套,非常的稀缺,而且设计理念要比珠江别墅新潮一些,毕竟有楼龄的优势。
如果买不到二沙岛的别墅,住一住这种叠墅产品,也是不错的选择。
下面,镁地产就来详细测评一下:
01
在广州,如果买不到汇悦台,有什么替补选项吗?除了广粤尊府,颐德公馆也算一个。
作为珠江新城东区开发较晚的项目之一,颐德公馆一直以来比较低调,但它的优点非常明显:楼龄新、一线珠江公园景观、洋房纯板式、稀缺叠墅,这几个特质足以吸引部分高端买家。

颐德公馆位于花城大道,珠江公园正南面,东侧是凯旋新世界,西侧是尚东柏悦府。嗯,这个搭配,够“壕”。

因为是板楼结构,洋房外立面非常板正,远看灰色外立面+蓝色玻璃+白色框线,比隔壁凯旋新世界更有气势。

整个小区占地面积2.2万m²,总建筑面积13万m²,分南北两期开发,南区是“颐公馆”,都是叠墅产品,北区是洋房产品“德公馆”,合起来就是“颐德公馆”。
这是小区平面布局图,行列式布局,北侧那一排是大平层,南侧那一排是叠墅,中间是小区园林。

图源:网络
南区颐公馆是叠墅,这在整个珠江新城也是独一份。叠墅一共有13栋,每栋分上叠和下叠,面积在310-420m²之间,共26套,仍有少量一手在售项目。
大家都知道,珠江新城的别墅是非常少的,之前只有珠江别墅一个。加上别墅用地审批越来越严,想在珠江新城住上别墅变得越来越难。所以,颐德公馆的叠墅显得更加稀缺。
叠墅每一户都有花园和露台,并配有私家电梯。
这是其中一个上叠的户型图(图源:网络),大家可以看看,一共两层半,半层地下室+三、四层。
-1F :地下室(半层)

3F:南北通透,中西厨,超大开窗面,带两个露台。

4F:休息区域,三间主套+一间起居室,主套带有超大衣帽间,楼上同样配了两个露台。

当然,市场上对叠墅存在一些争议,有的人会觉得私密性不够好,但也有人就喜欢叠墅,觉得这种产品结合了复式和别墅的优点,如果做到独立入户,还是不错的。
02
北区德公馆是纯板式洋房,一共5栋,一字排开,户户南北对流,北瞰珠江公园。

其中,洋房T1-T3栋主要是170-200m²的3-4房,以平层为主。T4、T5栋除了标准层,还有天际别墅、空中花园别墅、错层复式等户型,面积在211-400m²之间。
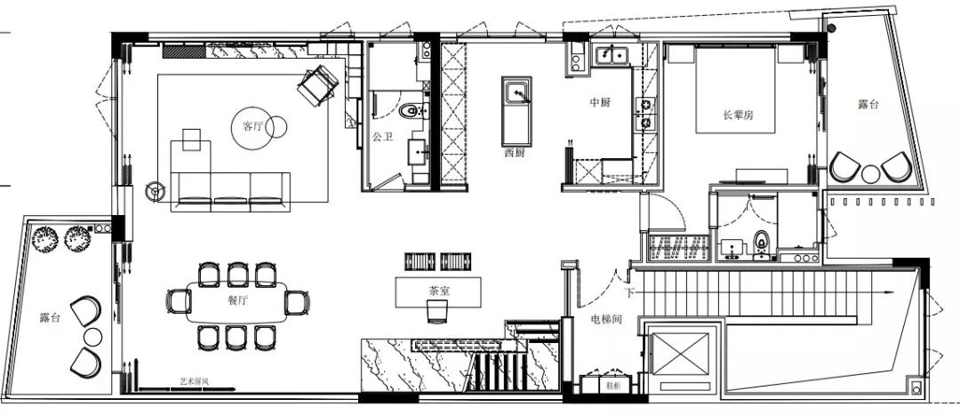
这是217m²四室两厅的标准层户型图,南北对流,客厅和两间卧室朝南,客厅南侧还有近20m²的露台。

可以看到,颐德公馆户型的优势很明显,叠墅稀缺,洋房是板楼,南北对流,而且楼龄较新,在整个珠江新城竞品很少。
园林方面,颐德公馆洋房可以北向望珠江公园,一线园景景观没得说。不过因为临花城大道,存在一定的噪音。
小区内的园林,不如凯旋新世界那么精致和层次感,但总体品质是ok的,毕竟绿化率达41%,容积率只有3.38(据公开资料),密度在珠城算比较低的。

03
作为珠江新城豪宅代表作之一,颐德公馆还有个缺憾是,不在一线滨江区域。幸好它有最长的一线望珠江公园资源,也算是一个弥补了。
学校对口是天河区第一实验小学,学校不差,但不输于天河区第一梯队(体育东、华阳)。
颐德公馆2011年开盘时,洋房4.7万/m²能买到,现在刚好满10年,洋房参考均价到了15万元/m²左右,涨了2倍多。叠墅单价8万左右,如今放盘价约17万,也翻了1倍。
这个涨幅,虽然稍逊于汇悦台、广粤尊府,但从整个珠江新城东区来看,表现还是很OK的。更何况,颐德公馆房源本来就少,买家以自住为主,投资客很少,放出来的房源也非常少。
所以,现在不是什么价格的问题,而是有没有房子给你买。
目前贝壳找房APP上,颐德公馆仅两套房源,价格3200万起。

04
镁地产的测评意见是: 如果你想在珠江新城找一个楼龄新、户型好、品质强、南北对流、专梯到户的大平层小区,或者想住叠墅类产品,颐德公馆会是个不错的选择。
如果你对一线望江有特殊情结,而且要求品质不输给颐德公馆,那就只剩下汇悦台和凯旋新世界(广粤尊府)了。