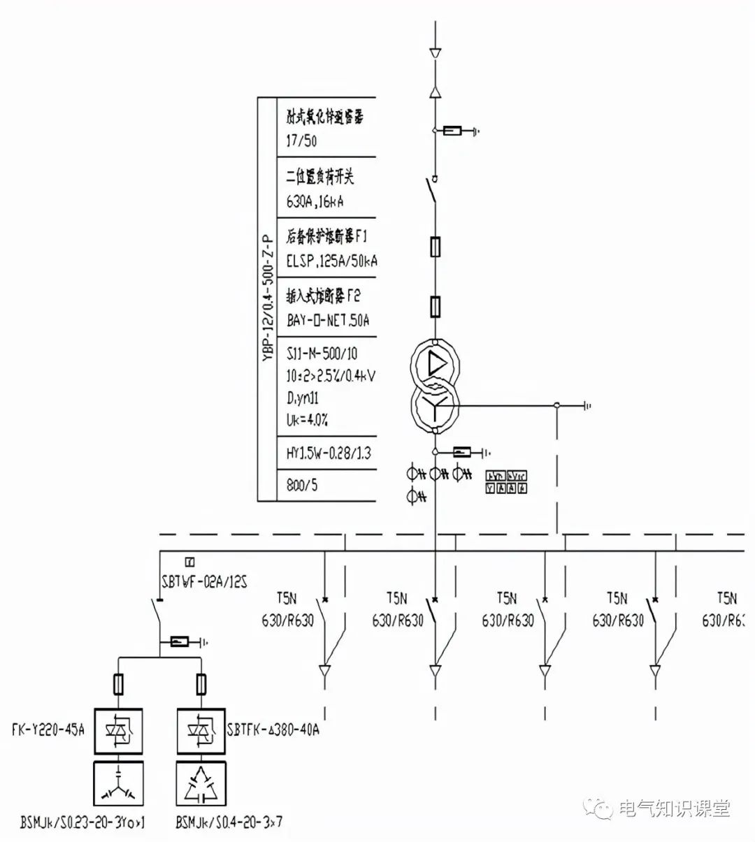
“箱式变电站”是什么东西呢?想必大部分从业多年的电气技术人员都不陌生,但是对于一个刚刚入门电气行业不久的电气初学者来说就可能一脸懵逼了。箱式变电站(Biosco),是继土建变电所之后崛起的一种崭新的变电站。它以结构紧凑,占地面积小,布置合理,成套性,供电可靠,满足计量要求和造型美观等特点在我国广大城市、农村、工矿企业及公共建筑设施中得到广泛应用。那么箱式变电站具体都有哪些特点,类型?它的构成和应用又是怎样的呢?下面小编就给大家详细介绍一下,希望能给大家涨一点知识!

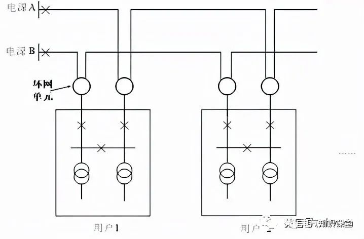
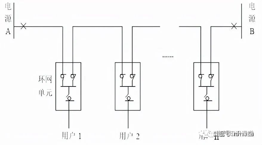
1、高压开关站、开闭所、配电室、箱式配电室、环网单元及电缆分接箱概述










2、箱式变电站的特点分析










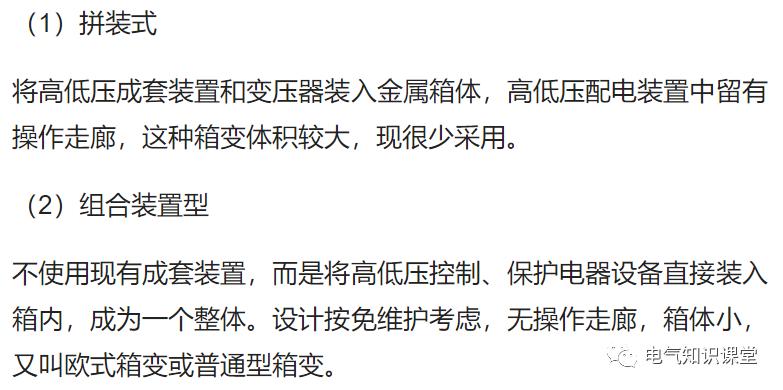
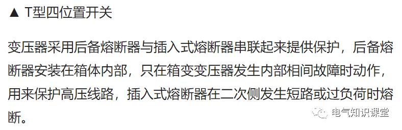
3、箱式变电站的种类 及其结构




















4、箱式变电站的运行方式







了解更多电气方面的知识:
低压配电柜可以靠墙摆放吗?配电柜之间的间距又是多少呢?涨知识
配电柜、配电板如何设计和安装?图文详解介绍!电气人收藏好
配电箱、配电柜的电气安装规范,讲解非常全面
配电柜中常用的电气元件和符号
配电箱、配电柜、控制箱有什么区别?很多人还搞不清
配电中的GGD、GCS、GCK、MNS配电柜各种柜体之间有什么区别?
高压配电柜中的电气五防及微机综保装置详解,很适合新手学习
低压配电柜的定义、功能、作用、分类、组成及主要技术参数详解
低压配电柜的基础知识(61页PPT图文详细介绍),快收藏吧
高低压配电柜二次接线规范及要求,建议收藏