- 建筑师
- Terra e Tuma Armisetos Associados
- 位置
- 圣保罗,巴西
- 范畴
- 房屋
- 作者
- Danilo Terra,Pedro Tuma,Fernanda Sakano
- 结构
- 梅加洛斯(Megalos Engenharia)
- 景物
- 加布里埃拉·奥纳吉·阿基斯图拉·达派萨基姆
- 面积
- 170.0平方米
- 项目年
- 2015
- 照片
- 康尼尔森
- 制造商
- Kenzo Harada, Metaltec Esquadrias, Terral Serralheria

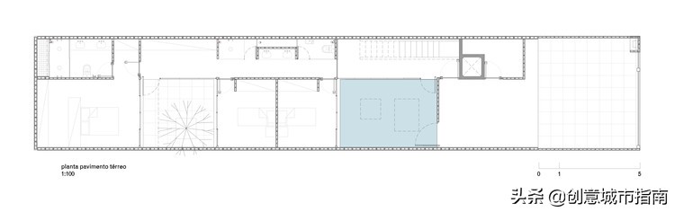
架构师提供的文本描述。这所房子代表了一种非常普遍的情况圣保罗,长而窄的地面[5.6x30.0m],其正面的高度不受周围建筑物的干扰。

这一挑战从我们必须满足这一地区的广泛计划的那一刻起就增加了,这导致了我们最大限度的使用许可,170平方米。

计划

计划
随着土地的价值越来越高,我们和许多其他建筑师都在努力为他们的客户、为他们自己和城市提出好的项目,以达到两倍于这类小地块理想面积的解决方案。

考虑到不可避免的垂直化的邻居,他们都粘在边界上,第一步是扭转正面,认为项目“内向外”,因为它将拿出一个手套。

所以当我们把框架带进去的时候,我们可以把它们用得精疲力竭,使它的内部变得非常开放,而不是完全封闭的外部周界。然后我们布置了两个内部庭院,但作为房子的外部区域。和其他办公室项目一样,他们组织一切。除了为健康和空间质量提供必要的光线和通风外,还提供房间。

剖面

剖面
对于客户来说,另一个意想不到的决定是在一楼的卧室的位置,通常用于社交区域,所以我们将“地面”上升到上层。
这个决定是为了私密的楼层,卧室,更大的隐私和安静。

为社会铺装提供了与楼板融为一体的楼板,用作游憩区,因此,不会发生由密室地板造成的干扰。它也成为社会地区更好的照明和通风。在客户的要求下,其中一个庭院变成了一个水镜,与它一起,另一个重要的因素是同时进行景观设计。

这样,就有可能提供适当的结构,以便在靠近房间的室外露台上,在顶层甲板上既能容纳一棵大树,又能承受托盘的重量,而植物则落在水镜上。
同样缺乏资源,但许多承诺提出了遵循的方法,成为一项可行的工作中的批判性思维。
