
《机械工程师CAD》采纳数万名工程师的建议,全面修订的通用机械CAD软件包。整个系统遵循机械等行业的设计习惯,自备强大的专业数据库,具有开放结构,采用中文界面,涵盖机械、建筑、电气、化工四个专业,各项功能完备齐全,尤其在机械设计方面具有很高的专业水准。相信它一定会给您的设计工作带来巨大的帮助。
最新国标、超大容量、全面修订的参数化标准件、非标件库

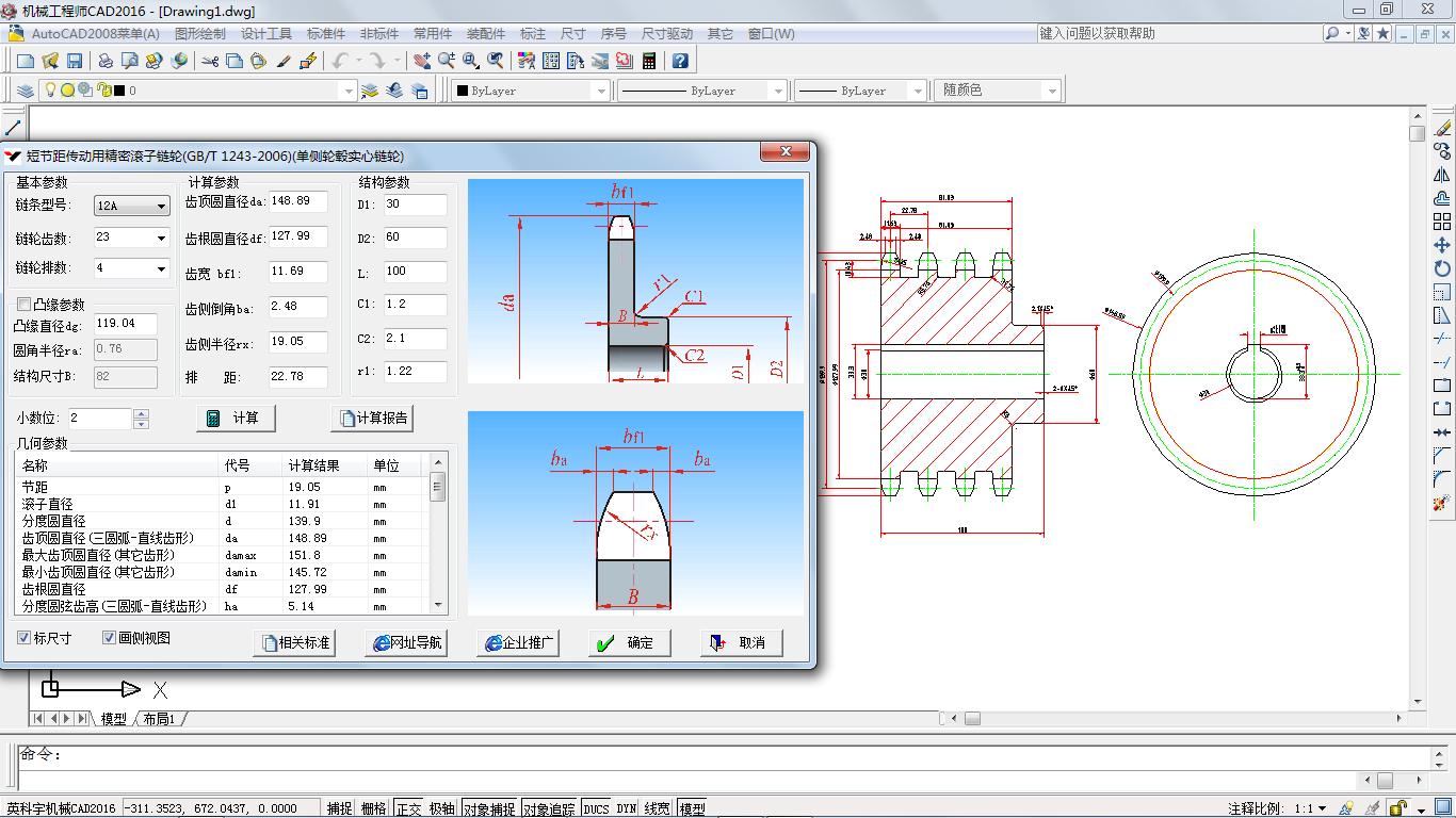
轴,齿轮,锥齿轮,蜗轮蜗杆,链轮,棘轮,槽轮,凸轮,弹簧,花键,V带轮,同步带轮

软件提供了全新的粗糙度、形位公差、基准、公差配合、焊接、倒角、锥度、斜度、标高、弧长、引线、向视图、放大图、剖切等标注,各项功能的交互非常专业、直观,标注生成后,可以像处理线、圆一样用夹点对标注进行拖动,标注会自动随着位置的变化而更新。标注中的线和文字的颜色、文字字体可以方便修改。


先进、智能的参数化设计

专业的尺寸标注和文字表格处理
本软件提供了水平、垂直、倾斜、角度、直径、半径、一组直线尺寸、螺纹,基准尺寸等强大的尺寸标注功能,同时,本软件提供了丰富的尺寸编辑工具如:尺寸对齐,尺寸等间距,箭头圆点转换,倾斜尺寸界线,更新尺寸,修改、旋转、移动、复位尺寸文字,修改尺寸箭头大小和文字高度。使用本软件,可以方便地修改文字内容,文字对齐,文字等间距,合并两行文字,修改文字高度、高宽比、字型,给文字添加下划线、上划线、直径符号、正负号、角度符号,绘制任意表格,将一组文字填表,编写技术要求等。
高效、实用的图形处理功能
本软件可以自动实现装配图中两个零件的遮挡,可以确定是否用虚线表示被遮挡部分,如果图形中有孔,孔中的图形会被显示出来。在本软件中,尺寸文字,螺孔也可以遮挡图形。断开线可以将图形从中间断开。本软件可以自动生成轴类零件的全剖或半剖图,可自动将某一边界内的图形进行局部放大。本软件提供了强大的数学计算功能。
灵活的序号明细表



丰富的化工标准件库
本软件提供了法兰,法兰盖,封头,筒体,支座,人孔,手孔等图库。

机械工程材料电子手册

中文界面、精心设计、功能完善、易学易用
《机械工程师CAD》的命令全部是汉语拼音首字母的缩写,每一菜单都有一个工具条或数个工具条与之对应,从对应菜单即可找到相应的工具条。软件使用设计人员最常用的术语,使用方法完全符合专业设计的习惯,所以易于掌握,即使没有计算机知识,英语水平不高的工程师也会在几天内掌握。
图形绘制提供了线、圆、弧、多边形、箭头、相贯线、波浪线、多边形中心线、内外螺纹倒角、丁字倒角、丁字倒圆、画平行线、剖面线的绘制功能。
提供修改块中实体和非块中实体的图层、颜色、线型、线型比例等功能。
最新版2016新增功能:一、常用件
1. 添加了圆弧齿轮参数表绘制。

2.添加了圆锥齿轮的参数表绘制。

3.添加了窄V带轮的设计。

4.轴设计添加键槽、花键时自动绘制键槽的剖视图、尺寸及公差。

5.链轮等添加了绘制侧视图、及键槽的侧视图。

6.轴设计时动态显示输入数据的幻灯片,使用户能够准确判断所输入的数据类型。

7.链轮设计选择有无凸缘时自动显示图片,使用户能够清晰判断设计链轮的结构。

8.更新了链轮的相关数据内容,方便设计时快速查阅数据。

二、装配件
1.添加了钢结构用的斜钢梯设计。

2.添加了化工设备用的卧式储罐、拱顶储罐、法兰接管。



3.添加了建筑塔机用的标准节、吊臂设计。

三、标注
1.引线标注功能添加了绘制多行引线。

2.添加了旋转符号绘制。

3.添加了标注配合时自动标注公差。
尺寸驱动
4.添加了图形及尺寸的线性驱动
5.添加了图形及尺寸的对称驱动
6.添加了图形及尺寸的径向驱动
四、图形绘制、图库
1.绘制空心箭头

2.根据2010年的标准彻底更新了国标法兰数据及图形,图形数量达100多个。

3.根据2014年的标准彻底更新了操作件的数据及图形,标准数量大50多个。

4.添加了台达伺服电机图库
5.添加了凸轮间歇分隔器图库。
6.图库调用可以保存菜单中每一图库上一次使用的图形与数据,当再次使用时可以方便找到上次使用的图形及数据.
7.重新设计了功能强大的汇总表生成功能。
8.更新了平键、螺孔、轴用档圈等图库。
9.支持AutoCAD2007至2016的所有版本,支持windows32位及64位系统,Win7、8、10系统。
如有需要请自行百度*载下**或关注截图私聊,提供*载下**地址。