
1、背景
当今社会,能源和环境问题越来越突出,地球产生温室效应也越来越明显。以往R22、R410A、R407C制冷剂GWP值较高,属非环保制冷剂,对气候有一定的破坏。国际环保公约规定,2030年前我国必须完成非环保制冷剂的淘汰,GWP值较低的新环保冷媒R32、R290将成为行业的新宠。
2、R32特性
R32制冷剂,有名:二氟甲烷,是一种卤代烃,具有轻微酯味,无色,常温加压呈无色透明液体。易溶于油,难溶于水。自燃温度(℃): 648爆炸上限%(V/V):33.4;爆炸下限%(V/V):12.7。


R32可燃,如果缺乏安全意识、操作不规范容易导致安全事故的。目前正值一年一度的空调安装维修旺季,制冷百科呼吁广大安装维修师傅,严格遵守R32使用规范。

例:1公斤R410A排放到大气中所造成的温室效应相当于排放1900公斤CO2 ,而1公斤R32制冷剂相当于排放580公斤CO2 。
2.2性能参数
相对R410A而言,R32制冷剂饱和压力约高2.5%,排气温度高8-15度,功率高3-5%,能效比高约5%(以1和1.5匹产品为例):


总结:
1、 R32制冷剂全球变暖系数是R410A的1/3,较传统的R410A、R22制冷剂环保,但R32具有一定的可燃性。
2、与R410A制冷剂相比,R32饱和压力高约3%,排气温度高约8-15℃,功率高约3-5%,能效比高约5%。
3、同工况、同压缩机同运行频率下,R32系统制冷量、能效比R410A制冷剂高约5%,
产品外包装
格力2015年起推出采用R32制冷剂的T迪、T派、冷静王-Ⅱ、清新风系列产品,(后续还即将推出Q力、悦风、T朗系列产品)

格力产品型号标有:“Nh”字母的为采用R32制冷剂产品。
美的产品型号标有:“N8”字母的为采用R32制冷剂产品



灌注量差异,R32系统比R410A系统灌注量少。

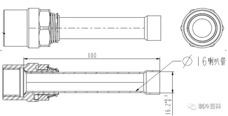
连接管一端采用防拆卸螺母,贴有黄色标签“安装提示”

大小连接管一端采用防拆卸螺母,防止非专业人员拆卸。


大小连接管防拆卸螺母端需与室内机对接,没防拆卸螺母端与室外机对接。

包扎连接管前,根据蒸发器大小接头的错位尺寸,定好连接管防拆卸螺母端的错位尺寸再包扎。

接连接管先确保喇叭口与蒸发器接头锥面垂直,然后再拧紧接头。分别用两活动扳手在箭头位置固定,然后做好保温措施。

抽真空、保压和打开大小阀芯、固定好后盖螺帽。

维修注意事项:
由于室内侧连接管不可拆卸,所以当涉及室内机系统需要返回专业网点维修时,必须破坏防拆卸螺母,操作要求如下:
1)先对冷媒进行回收,关紧大小阀芯。
2) 用割刀把大小连接管距离防拆卸螺母15毫米位置割断。

3) 由于割刀无法360度旋转,最后还需要用手左右晃动连接管才能完全拆卸下来。

4)割断后对大小连接管、蒸发器大小管进行防尘处理,然后对内机、蒸发器进行拆卸及对漏点进行补焊(为安全起见,建议把内机拆回维修点维修)。

在连接管上焊接新防拆卸螺母配件。

R32产品使用总结
1、R32产品存在一定可燃性,在用户家焊接,2米内严禁有可燃物。

2、R32产品接室内机有防拆卸螺母,室内机返网点维修需割断连接管,同时做好防尘、防水保护。
3、二次安装时,为避免烧坏内机部件,内机端连接管先焊接好防拆卸螺母,再穿入机器内对接。
4、更换R32产品压力比R410A略高,加长管严禁采用市场上的劣质连接管。
R32制冷剂安全指南
1、严禁R32系统不抽真空运行;
2、严禁在阀门打开的情况下压缩机空载运行;
3、严禁将连接管拆下排查压缩机有无吸排气(小阀门有无气体排出);
4、严禁在阀门未打开的情况下开机运行;
5、严禁使用空调器自身压缩机进行*压打**检漏;
6、严禁压缩机自身抽真空;
7、严禁在真空状态下开机运行;
8、严禁追加不同工质的冷媒或劣质冷媒;
9、冷媒回收严禁超过2分钟(适用家用机);
10、严禁将过载保护器、排气高温保护、过流保护、高低压保护等保护装置屏蔽。