生活需要仪式感
而家的装修
是我们度过余下几十年的基础
而现代简约总是会在第一时间抓住人们的眼球
青杉盈砖
每一缕*光春**映照在房间里
都将每一处细节,呈现出来
带给你家的温暖
丰泽美居144㎡
设计师陈文浩
工作经验:8年
擅长风格:极简、现代简约、轻奢、北欧、新中式等
设计作品:兴庆府大院、中海国际、公园华府、恒大名都、枫林湾、江南赋、铂悦公馆、凤凰尚筑等中高端小区
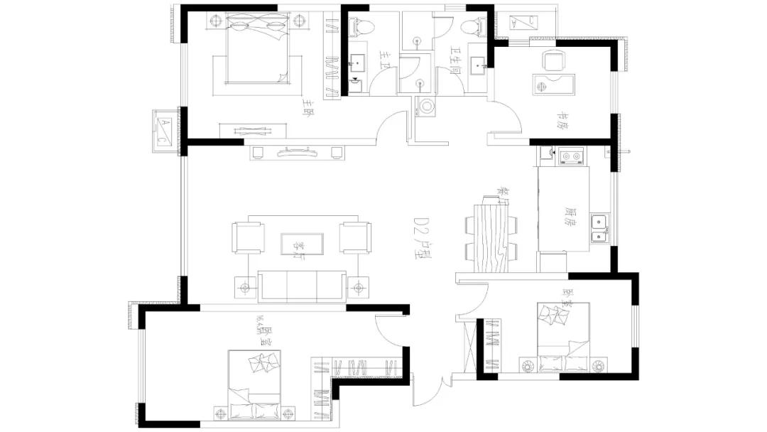
【平面图】

【效果图】

温润木质与纯净白色系为基调,清爽利落的明朗视野,整体空间由白色调传递纯净气息,搭配温润木质元素,局部穿插质朴灰色,营造出静谧优雅的美学氛围。

玄关同样是精致简约,骨感的线条美,利用木元素营造出温暖宁静,黑色的大理石和艺术装饰带来视觉上的层次感和质感。


客厅形式简约,木质护墙板中间留白让空间增添几分静谧,棕色的绒布沙发温暖质朴,绿植增添了绿意,给人一种沉稳温馨的感觉。而黑色元素的加入,将色调美学和空间质感做了完美的平衡。

简洁有序的空间布局,不掺杂一丝冗余的块面,象征着房主内心的充盈和从容。

白色墙面界定出用餐厅区域,木质的餐边柜为餐厅空间增添一丝美丽又接近自然的舒适感,用起来很舒心,而柔和的灯光营造了温馨惬意的就餐氛围。
丰泽美居153㎡
设计师:许涛
工作经验:9年
擅长风格:现代简约、后现代、中式、小美式、现代、轻奢等
设计作品:天山熙湖、森林公园、天鹅湖小镇、世茂悦玺、兴庆府大院等中高端小区
【平面图】

【效果图】

由于户型原因,入户玄关设计了嵌入式衣帽柜,柜底留下空间用来摆放鞋子。而狭长的过道也避免了进门见厅的尴尬,灰白灰的简约设计营造出干练的视觉效果。


客厅电视墙为黑色大理石地台搭配白色大理石墙面和棕色护墙板的整体设计,辅以灰色大理石地砖,布置灰色组合沙发和黑白配的圆形茶几,让空间显得格外的时尚优雅且高级。


灰色的布艺沙发后方悬挂一幅白底极简装饰画,搭配在这个简约风格的客厅里,显得格外现代高雅而大气。

餐厅的线条感非常强,餐桌是金属脚架+大理石台面的设计,搭配几张灰白色的皮艺餐椅,使用餐空间更加华丽时尚且高级。