
▼序言 PREFACE
整个项目从开始到结束都是女业主一个人负责,从硬装到软装每一处都向着女业主喜欢的模样去靠近。可以说这是一个“性格”特征很明朗的家,浪漫、典雅、利落又精致。

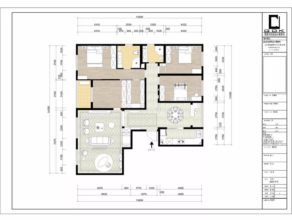
▼户型图 Plan

户型上没有太大改动,也没有过多的软装,整个案子通过对硬装细节近乎苛刻的追求以达到整体气质的提升,整个公区基本都用了护墙板的设计,而顶面通过石膏线、石膏盘、以及弧形石膏灯池等方式丰富顶面层次,已达到装饰和拉伸视线高度的作品。
▼客厅 LIVING ROOM

本案以象牙白与浅色为主基调,光洁的拼花地砖,精细典雅的石膏花纹,将客厅的打造的清新有质感。 这种简欧风相较于浓厚的欧式而言,它与中国人内敛的审美观念不谋而合,也更符合女性气质。

全屋所有的护墙板区域都用了欧松板衬底,这样后期安装护墙板的时候平整度更高。并且欧松板防腐、防蛀、抗形变,阻燃能力强,稳定性比较好。 顶面一圈的吊顶除了装饰作用,还有效的隐藏了灯槽、新风等等。

客厅与书房空间大面积运用护墙板装饰,以羽毛屏风相隔。回字型花纹的墙面搭配造型简约复古的边柜典雅大气,彰显贵族气息。 定制喷绘羽毛图案的护墙板轻盈柔软,灵动的衔接了两个功能区。

靠近窗户的一边,阳光正好,一把少女心的粉色单椅和一张小桌,又是另一个读书休闲的小空间。

石膏线一般在水电完成后,在墙面刮腻子之前安装。安装之前最好先找平一下墙面,这样石膏线平整度比较好。 (石膏线属于半成品,安装中会比较脏,后期还需要刷一遍漆,使整体色泽更好同时减少瑕疵)


电视背景墙是一整套大理石纹瓷砖拼接的,图案整体流畅,木套线收边,严丝合缝。
▼书房 STUDY

书房配色方案


顶部采用了两层石膏线边条,中间则用了石膏盘+金属灯,整个顶部层次便丰富了,视觉上有一种延伸感,空间也显得更高了。

从整体到局部,精雕细琢,镶花刻金每一处都给人一丝不苟的印象。
▼玄关 ENTRANCE

入户玄关直对纵向通道,是客厅餐厅以及通往卧室走廊的纽带,各个角度都可以窥见不同空间的剪影。


樱桃木和橡木的边柜、玄关柜造型精致,装饰和收纳功能兼具。

玄关过道的弧形门框设计

木作线框包边的造型,胡桃木与金属的工艺碰撞,皮质软垫的质感,塑造出优雅华贵的玄关。
▼餐厅 DINING ROOM

餐厅软装方案


精美花纹的石膏线灯池进行修饰,提高了整个餐厅的古典华丽感。地砖的圆形图案与灯池呼应,将视线聚集在中心区域。

在施工的时候精准预留好石膏灯池的尺寸,根据现场复尺情况再定制石膏盘。

石膏在选择的时候必须有一定的厚度才能保证分子间的力,才能更结实耐用。

▼厨房KITCHEN

▼主卧BEDROOM

主卧软装方案

主卧的色调搭配选择低纯度和明度差异小的配色组合,给主卧一种安定闲适的气质。

▼儿童房BEDROOM

儿童房软装方案

