项目名称 | 星城国际
项目地点 | 郑州·中牟
设计面积 | 122㎡
造设计价 | 12.5万
设计风格 | 现代简约 轻奢
设计主创 | 林丽
装修公司 | 河南超凡装饰
案例说明 | 整体设计为现代简约风格,三室两厅户型。原始户型较为合理,不做太多改动。仅做一处改动:厨房门打掉了一些墙,扩大门洞,做成推拉门,进出厨房更方便。整个空间的风格以现代简约风格为主,通过主材材质与灯光氛围的相互烘托,整个空间又颇具轻奢感。
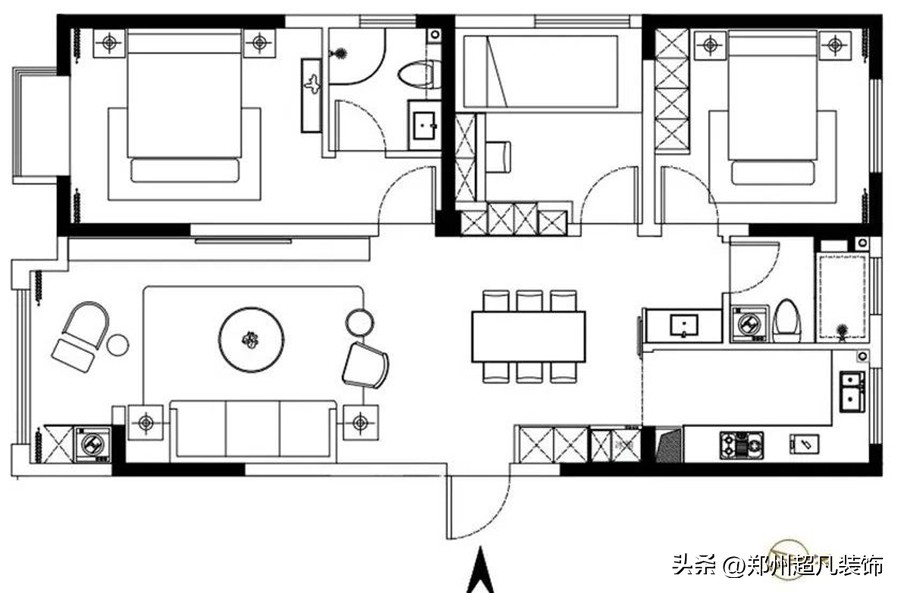
户型

原始结构图

平面方案布置图
玄关
进门一步之遥,尽享开阔空间大客厅

简约轻奢风,它的奢华,不是用于社交的炫耀或者社会身份的标榜,纯粹是为生活的品质、居住的舒适、自我的享受。

客厅
大方,利落;温馨大气,又时尚高雅


客厅电视柜,做的是地台,搭配背景墙,质感十足。地台中间位置,内嵌入壁炉,使用黄色灯光,将雾化的水汽做出火焰效果,灵动安全又具真实质感。

▍餐厅
大台面餐桌,奢华用餐生活


空间富足,即是奢华。大空间厨房,做双边餐边柜,收纳能力强大。
▍厨房
竖长型布局厨房,洗、切、炒动线舒适

厨房使用白色为主,一改沉闷,使用推拉门,让空间更加开放。满墙做吊柜,拥有足够的收纳能力,物品存放随心所欲。
▍卧室
主卧、次卧、女儿房,高品质休憩空间

主卧

主卧

主卧
主卧格调明快,时尚而充满活力;

次卧

次卧
次卧格调沉稳,厚重而稳重;


儿童房

儿童房一角
女儿房格调浪漫,可爱而温馨。空间内做了书桌,方便学习、阅读;女儿房的床头与床尾不留空间,使用定制床品,前后墙之间铺满。
▍卫生间
卫生间干湿分离,洗手台使用磨砂玻璃屏风,不占空间

卫生间干区

卫生间
轻奢的奢华,不是为了炫耀,只是为了生活享受。视觉的奢华,是为了满足身心的奢华!
设计团队

林丽 河南超凡装饰首席设计师,从业年限:17年。
设计理念:设计如同生活,重在有取有舍;
毕业院校:轻工业学院室内设计专业
擅长风格:现代、新中式、美式、简欧等。
国家注册室内设计建筑师、
中国建筑装饰协会室内设计委员会会员、
河南省设计师艺术沙龙理事。
2008年被评为郑州电视台商都家居最佳设计奖;
2010年荣获河南省装饰装修行业优秀设计师30强;
2013年以尉氏三星花园别墅设计荣获室内设计大赛最佳原创奖;
2015年被评为河南省装饰设计界“最具影响力人物”;
代表作品:郑东联盟新城、普罗旺世、银基王朝、金运外滩、金沙湖、美景美境等;