【小区名称】鲁邦奥林逸城
【房屋类型】平层
【装修风格】简欧风格
【装饰公司】济南生活家整体家装
【服务理念】让每一个中国人都享受健康家居
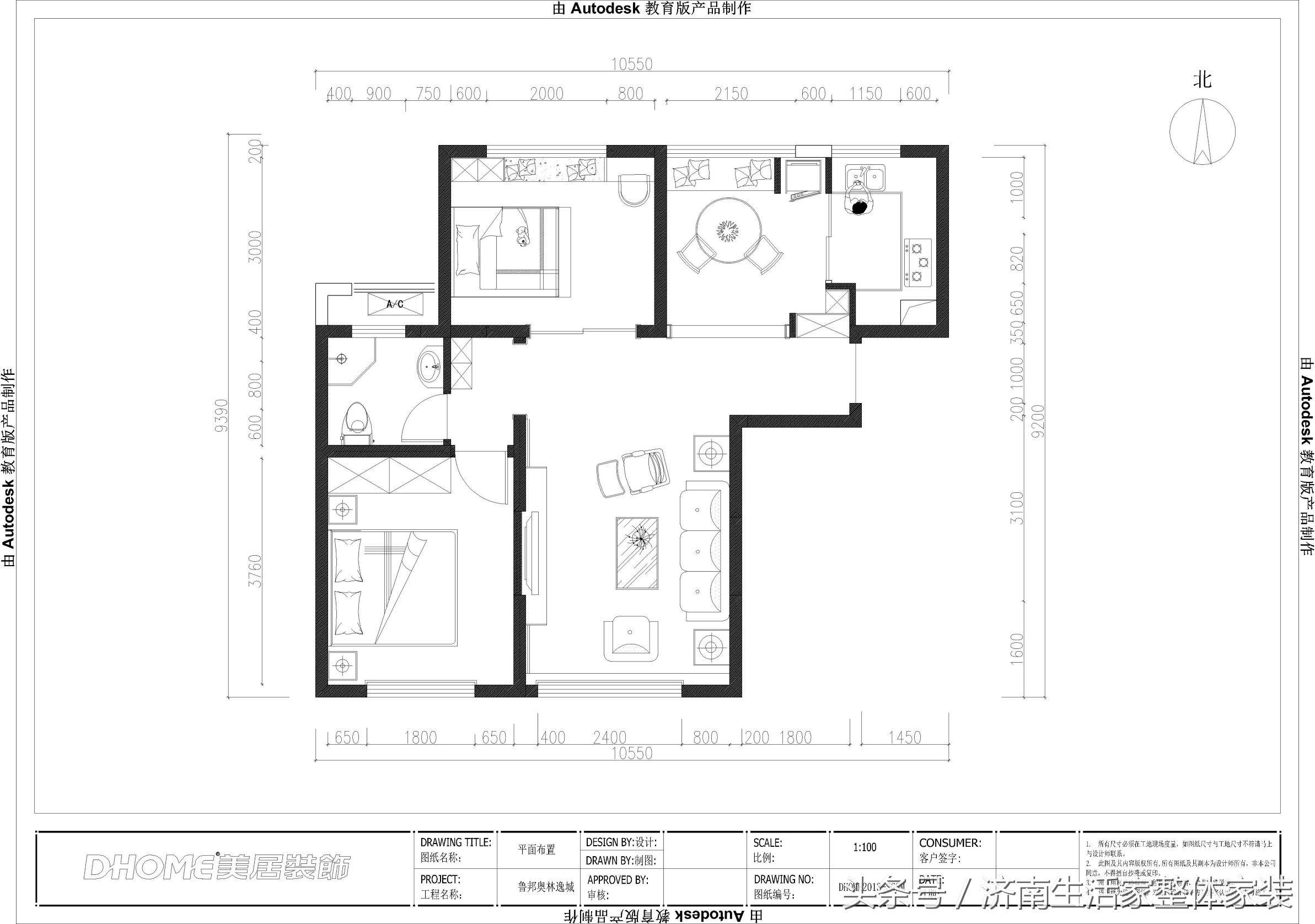
【设计说明】着手功能上,敲除南北阳台与厨房非承重墙体,扩大客厅与餐厅区域,延伸客厅墙体,保证了电视与沙发的居中,也增加了客厅空间感受。现场制作鞋柜,节约空间,增加入户空间。北空间合理划分,简单适用。主体空间色彩选用温和的大地色系,客厅舒适的浅色色布艺沙发。没有太多造作的修饰与约束,不经意中也成就了另外一种休闲式的浪漫 静品悠闲,放松心情,弥漫着浓厚的梦幻与美丽,用自己追逐的梦想丰富着内部的至尊、热情和完美 。 富丽堂皇,不是设计师追求的目的,实用、舒适、美观、温馨,才是设计师的追求所






想了解济南生活家整体家装的朋友可以加我的微信号18254188280,也可订阅小编的头条号给评论留言讨论啊。