更多室内设计学习文章,资料,教程,软件,插件,方案,施工工艺材料等可以关注私信小编,不懂的地方,欢迎大家留意交流
- 免费分享 -
以下案例为这套素材主要是 :中德麓府别墅四合院内部绝密施工图效果图!
如果你喜欢请点赞转发让更多想成为室内设计师的新人助理设计师也能看到
谢谢!希望我们能走的更远
【福利在文章最后】 千万不要不要错过!!!
[四川]成都中德麓府别墅四合院+样板间+售楼处丨CAD平面图+设计方案+效果图+3DMAX模型资料内容包含:售楼处(设计方案+效果图)别墅合院C+D户型(设计方案+效果图+CAD平面图+MAX模型)高层样板间(设计方案+效果图)

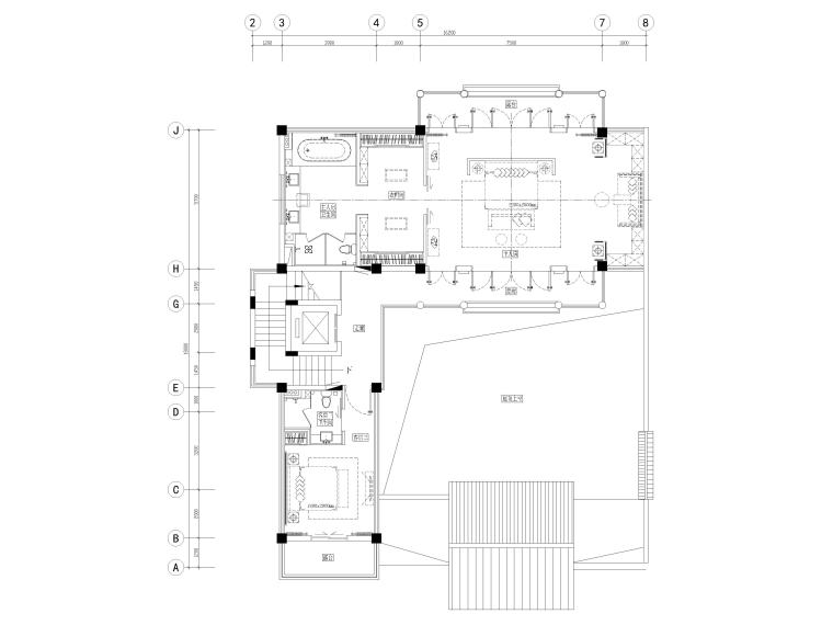
别墅合院C首层平面图

别墅合院C 二层平面图



合院C户型一层平面布置图

合院C户型二层平面布置图

合院C户型负一层平面布置图

合院D户型一层平面布置图

合院D户型二层平面布置图

合院D户型负一层平面布置图

C户型餐厅效果图

C户型餐厅效果图

C户型客厅效果图

C户型主卫效果图

D户型餐厅效果图

D户型会客厅效果图

D户型桌球室效果图





【01】内装:售楼部丨设计方案+效果图

【02】内装:别墅合院C+D户型丨设计方案+效果图+CAD平面+MAX模型丨

【03】内装:高层样板间丨设计方案+效果图丨

