
银城一方山位于江宁地质公园东麓,规划建设12栋精装小高层、22栋毛坯叠拼别墅、1栋社区中心和1栋社区商业。22栋叠拼别墅主力户型为建筑面积160—210平米的四房五房。2016年年底首批交付,2017年3月份已迎来第二批新房交付,恭祝已拿房的业主。
银城一方山作为大业美家装饰重点操作楼盘,于2016年初便组织专案组成员,挑选出专属服务设计师,实地踩盘,多次开展户型研讨,对别墅各户型163平、171平、205平、210平都有完整的家居解决方案。并且,于2016年11月份,大业美家成功组织了首批银城一方山业主团签会,截止今日,已成功签约28户。
在第二批收房之际,小编特整理出别墅全户型解析供业主们赏析。今天首先来看看下叠210平的户型解析吧!
210平 下叠 美式+新中式

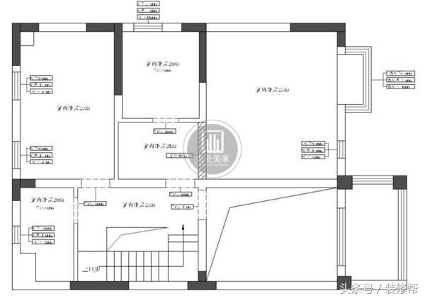
户 型 分 析—不足之处
1. 地下室整体采光不好,层高较矮。
2. 一层原始结构没有门厅,入户没法做衣帽柜。楼梯正对大门,从风水角度来说容易 漏财,从美观角度正对大门也不好。一层卫生间偏小,没有明确的洗衣房功能,一 楼客厅连接阳台,整个客厅采光稍差。
3. 二楼北边卫生间太小,而且在门厅上方。二楼南边次卧开间太小。
负一层原始量房图

一层原始量房图

二层原始量房图

户 型 分 析—闪光亮点
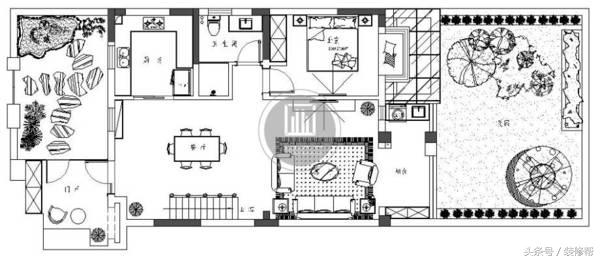
1.地下室大开间可塑造性强,主卧室以及主卫整体面积相对较大,后期设计易出效果。
2.该户型前后私家花园,娱乐性强,前后院室内空间可扩展。
3由于这个房子是边户所以厨房比较大,二楼北边的房间较大,客餐厅开间比较大,南北通透。
负一层平面布置图

负二层平面布置图

一层平面布置图

二层平面布置图

效果图赏析
设计说明:这是一个三口之家,男主人是私企老板,女主人在家相夫教子,有个小孩子,所以负一楼和二楼主要功能是娱乐办公及家庭活动等,设计上增加娱乐性及家庭成员之间的交流。
负一层品茗区

负一层书房

负二层影音室

一层客厅

二层主卧

一样的空间
独特的品质
同一座银城一方山
不同的家居感受
*京大南**业美家,专注别墅大宅订制生活!