人工挖土方
人工挖土要根据土壤类别、施工方法等分别按挖基(地)槽、挖基坑、挖土方等项目计算。
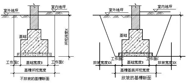
(1)挖基槽(地沟)
基槽指条形基础下的地槽,地沟指管道地沟。
其工程量按沟槽长度乘以沟槽的断面积。其突出部分体积应并入基槽工程量内计算;沟槽深度不同时,应分别计算。土方放坡时,在交接处产生的重复工程量不予扣除。
基槽的长度:外墙按图示中心线长计算;内墙按净长度计算。
基槽横断面的形式:分放坡与不放坡进行计算。
挖土深度H:一般以设计室外地坪标高为准。
根据土的性质、开挖深度以及施工方法确定土壁是否放坡。放坡的宽度根据放坡系数计算,即KH。
为保证工人的正常操作,基底宽度应在基础宽度的基础上增加工作面宽度2C。
计算公式:

① 不放坡时:V挖=L×(B+2C)×H
② 有放坡时:V挖=L×(B+2C+KH)×H
(2)挖基(地)坑
挖地坑工程量根据图示尺寸以立方米为单位计算,按土壤类别、挖土深度不同分别套用相应的定额。

① 矩形不放坡的地坑土方量为:
V挖=(a+2c)×(b+2c)×H
② 矩形放坡的地坑土方量为:
V挖=
(a+2c)×(b+2c)×H+KH2×(a+2c)+KH2×(b+2c)+4×1/3K2H3
=(a+2c+KH)×(b+2c+KH)×H+1/3K2H3
(3) k为放坡系数。放坡宽度b与深度H和放坡角度a之间是正切函数关系,即tana=b/H,不同的土壤类别取不同的a值,所以不难看出,放坡系数就是根据tana来确定的 。例如,三类土的tana=b/H=0.33。我们将tana=K来表示放坡系数,故放坡宽度b=kH。K是根据土壤类别确定的。一、二类土的放坡系数为0.5,三类土为0.33,四类土为0.25
本文来自网络,如有侵权,请联系删除!
6