

此间能*坐静**,何必在山林
在愈发现代化的城市里,“寻觅自然”的话题十分流行,说得多了总有一些烦腻,因为不管是“归园田居”还是“归隐山林”,人们长久以来关注的重点似乎都从未改变——要想感受自然的真谛,就得将它与城市切割开来。
但时至今日,对于久居城市的我们而言,避世并非一件咫尺之遥的事,其二者也不是互为取舍的关系,就像是人从自然中来,那些天地中的分子、尘埃也都凝缩着自然的意志,选择怎样的居所才能拥抱自然,真正的关键其实在于:开阔的空间、自由的心境以及对自然的感知力。
位于成都武侯繁华商业街区的肖姐姐家就是这样一间不过分强调自然,又处处彰显自然的处所,不管是空间打造还是细节设计,都颇有庄子“大隐于市”般闲淡宁静的气质。

肖姐姐的家,图片由自然建造提供
设计师以竹为筑,放大空间尺度,纳入四季流转、风起云动的诗意,将这个家建成了一座交融在城市中的“世外山林”。


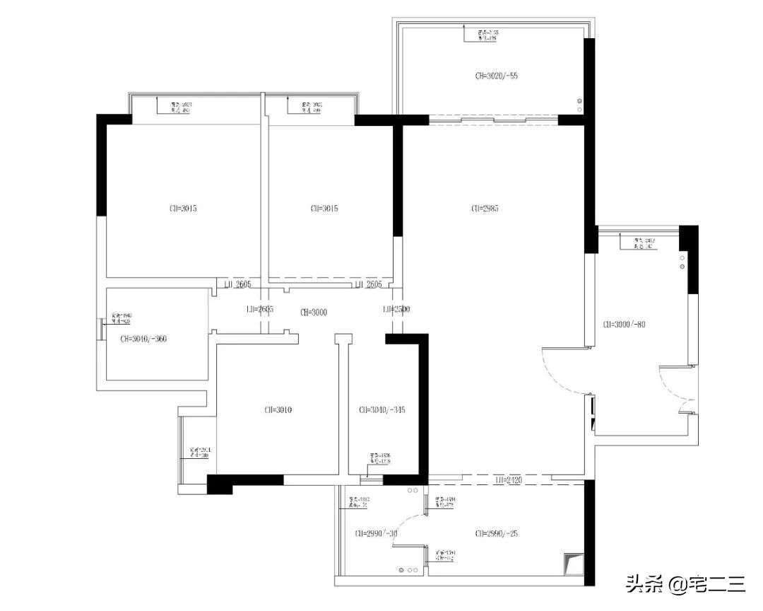
原始户型图,图片由自然建造提供

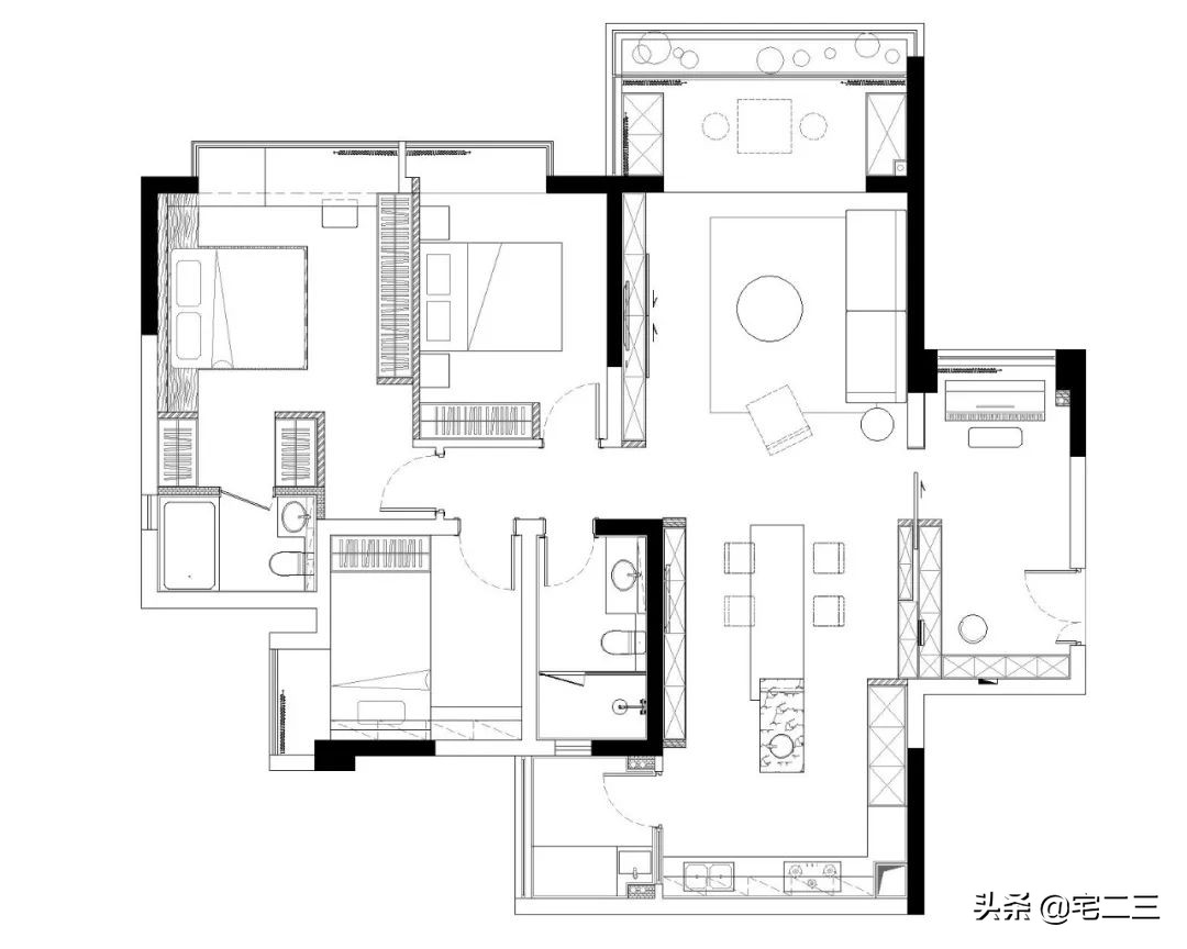
改造户型图,图片由自然建造提供
肖姐姐和先生都从事着媒体行业的工作,平时工作较忙,闲暇时间则喜欢旅行,于旅途中收获的自由、舒畅在潜移默化中影响着他们对家的设想和要求。
经朋友介绍,肖姐姐找到了自然建造来负责此次家空间的全案设计,依照前期的客户调研,肖姐姐和先生更多提出的是他们对于使用功能上的需求,比如:新风、地暖、2000多本待存放的书、家人在空间中要有互动等,而风格上,他们则希望简单就好。
在功能上,他们大部分的设想都与设计师的考虑相契合,让设计过程得以顺利推进。风格上设计师则做了有别于现代简约的思考,除了融入一些自然属性的物质进来,整个空间最主要的设计就是在营造一种绝对开放、自由的格局氛围,旨在以自然的广阔、包容和丰富来充盈整个空间,既不会脱离开“简单”的要求,又不会显得单调刻板。

图片由自然建造提供
从原始的户型来看,空间结构方正,所以改动没有太大,但本着实用主义精神和男女主人的喜好,设计师将阳台封进室内,并留了“一亩三分地”来种男主人喜欢的竹子;其次是将原本与入户门对穿的客餐厅门洞封上并开在另一侧与之交错开来,既美观又能保证墙体的完整性用以做嵌入式书架;最后是将主卧与主卫之间的墙体内推,额外改造出一间开放式的衣帽间。
重新规划改造后的空间格局通透明朗,扩宽后的区域给各个空间都带来了更多元的使用功能,提高生活品质感和舒适感的同时,还提升了视觉上的美学观感。

入住山野林间,会是一幅怎样的图景?不少人的答案是简单纯粹、隐逸空旷。既能与起伏连绵的山林遥望,还能和悠远辽阔的原野隔空对谈,近处的树木与远处的群山相互渗透,房子掩映在青葱绿意下, 营造了林、山、屋、田包含、交织的场所意境。
在进入肖姐姐家的客厅前,会先过一道入户玄关,顺着入户门看,原来与客餐厅对穿的门洞改造成了如今的收纳柜,门洞则开到了右边。
木质的推拉门弱化了空间之间的分割,关上后这里是一个独立的空间,与客餐厅连通后又是一个开敞的大空间。同时,推拉门还起到了东方园林中的框景效果,完全敞开和半掩都能带来不同的视觉效果,加之置入屋中的绿色植物,构成了犹如山居生活中不同景致、事物穿插、交织的美好景象。


图片由自然建造提供
移步至室内,空间以灰色定调,简易的吊顶摒弃了传统的灯具选择,设计师以嵌入式的氛围灯和点光源营造功能上的需求,满足屋主对于简单的要求。
目前,家里除了肖姐姐和先生居住,主要的家庭成员还有他们的女儿以及肖姐姐的姨妈,在考虑到大人审美需求的同时,设计师还利用了大量木质元素综合灰色空间带来的冷硬,不仅于细节上强调了自然的主题,还形成了强烈的视觉对比,丰富空间层次变化。


摄影:邹邹©宅二三(上) 图片由自然建造提供(下)
肖姐姐家的视野很好,从客厅落地窗望出去能看到户外的青葱绿意,对于身处城市的人们来说,这样的房屋无疑满足了人们在功能便捷和自然美韵上的双重追求。
改造后的阳台大部分划给客厅,既能连通成一个大的场域,又能很好地做功能区分。

摄影:邹邹©宅二三
沙发将这里围合成了一个开阔的家庭活动区,一整面的电视墙做成了嵌入式书架,并做了推拉门丰富场景变化。
这里除了存放肖姐姐和先生的书,还有小部分孩子的图书。平时一家人除了可以一起看电视,还能在这个区域各占一隅阅读自己的书籍,呈现样貌多元的生活场景。



摄影:邹邹©宅二三(上、中) 图片由自然建造提供(下)
灰色沙发延续了空间简单的气质氛围,布艺的面料让它看起来柔软舒适,单人沙发则选择了灰绿色,使空间不至于沉闷死板。

摄影:邹邹©宅二三
大理石茶几外形十分简洁,但其天然的纹理又带有一丝自然的艺术气息,与墙面渐变的装饰画交相辉映,为空间增添了更丰富的层次质感。
依照屋主给人的感受,设计师在沙发旁选择了一款木质边几,以一种实用、扑拙的原则,去除表象的单一简单,整个区域在现代与古朴中完美融合,呈现了含蓄雅致的空间氛围。


图片由自然建造提供
原本的阳台区域抬高做了地台,两侧墙面增加了空间的收纳区,保证屋面干净整洁。因为孩子还没有到能独立关着房门做作业的年纪,这里还放着她的书桌,方便一家人在公区活动时都能随时看到,放大了家人亲密互动的尺度。


留出的约3㎡地方围种上了竹子,用玻璃门将之隔在室外,将其与室外之景融合到一起,“由窗户将竹林景象尽收屋内,但却不能直接与之接触,仿佛窗外是一片讳莫如深的竹林”,让室内外环境自然渗透。
肖姐姐说,夜晚透过月光,竹竿和竹叶形成的剪影还还会映衬进家中,“望之自使人意潇然”。这种自然纹理能让时光凝结,置身其中,只愿享受当下的安宁纯粹,于惬意中体会禅意生活的个中滋味。


夜晚家里的竹影,图片由肖姐姐提供
虽然竹子只占了这个家的一小部分,也并非设计的重点,但却是这个家的一大亮点。 它成了托举建筑、空间与景观的基底,是打造“城市山林”的凭据,也是现代人感悟山峦叠翠的媒介。


图片由肖姐姐(左)、自然建造(右)提供

餐厅、厨房与客厅贯穿在一条中垂线上,以过道门廊为界,一分为二。


摄影:邹邹©宅二三(上),图片由自然建造提供(下)
在这个家,餐厅的使用频率较高, 除了日常用餐的基础功能,此处还承载了书房/工作区的职能。
靠近入户玄关那侧的嵌入式书架是门洞封上后,后砌的墙面改造而成的,对工艺要求极高,种类繁多的书籍让这个区域显得满满当当,却因为做好了功能规划,又十分利落整洁。


摄影:邹邹©宅二三(上) 图片由自然建造提供(下)
与之对称的墙面延续了客厅电视墙的设计手法,嵌入式柜子能分摊一部分的书籍,还能存放一些生活用品,推拉门里面是从上个家搬过来的电视和音响,不管是办公、看方案,还是吃饭时看电视,都非常方便。


摄影:邹邹©宅二三
中间的实木长桌连接着西厨岛台,二者高低构成,节省空间的同时又方便使用,岛台内置的水系统,让其还能作为厨房操作台的延伸,承载起一部分清洗和切菜的功能。
开放式厨房是肖姐姐当初定下的需求,消解了传统功能布局所带来的僵化感和束缚感,这样居住其中的人即使身处不同功能区也能有互动交流的开放窗口。


摄影:邹邹©宅二三
考虑到厨房不是特别大,而区域承载的东西较多,所以冰箱、烤箱等一律嵌进了定制的柜体内,充分释放了空间。
由于餐厨区使用了大量木质元素,厨房操作台则使用了深灰色台面和墙砖,让整个区域通过极简流畅的线条和色调与客厅风格相互交织映衬,构成视觉上的和谐统一。


图片由自然建造提供

因为居住成员的需要以及餐厅已经承载了足够多的功能,肖姐姐家取消了书房,三间房间都以卧室来规划设计。
主卧进门处放置了一个落地的透明玻璃花瓶,根据季节的变化,能插入不同的花枝进去,四时自然的产物在这个小角落里安静生长、一时间,房屋似乎也与四季同呼吸、共节奏起来,每日起床、就寝的路过,都能从中感受时光,找回生活的节奏。


摄影:邹邹©宅二三(上) 图片由自然建造提供(下)
内推墙体后的主卧,变成了一个足够容纳衣帽间、卫浴间、书房的全系列生活“套间”,设计师旨在将更多生活方式场景植入主卧,使空间格局与实用功能巧妙地结合在一起。


图片由自然建造提供(上) 摄影:邹邹©宅二三(下)
全景开窗给予主卧良好的采光,一天中风景光影不停变幻着延绵进室内,让物理空间与自然环境的关系不再对立。在色调的搭配上,为了营造静谧、适宜好眠的居所,在延续公区风格的基础上,设计师采用了大量木质元素,以色调的冷硬与木质的温暖相融平衡,带来一种自然的宁静感。

图片由自然建造提供
围绕着定制的原木色大床展开,自然的肌理柔和丰富了空间细节,床靠背板延伸至窗户部分,设计师取消了传统的飘窗,改为了定制的书桌,抬高部分满足人体工学,既能作为室内的办公区,还能作为化妆台使用,低矮部分则可以放置一些杂物,方便取用,这样的设计能使桌面空间也有功能分割,不至于杂乱。



摄影:邹邹©宅二三(上、中) 图片由自然建造提供(下)
与靠背一体的柜子取代了床头柜承载的基本功能,既能放置物品,也节省了空间。床头的猫头鹰玩偶、肖姐姐和先生的照片又为这个卧室空间书写了一份温情可爱。


摄影:邹邹©宅二三
另两间次卧则是小朋友和肖姐姐姨妈在使用,延续公区风格的前提下,主要是强调功能上的配置。而根据居住人的不同属性,两个空间又各自呈现着不一样的氛围。


图片由自然建造提供

清代文学家张潮曾在《幽梦影》中写到:“居城市中,当以画幅当山水,盆景当园圃 ,书籍当朋友,胸藏丘壑,城市不异山林。”
这句话无疑就是对肖姐姐家最好的写照,一如自然建造在设计时所秉承的理念——“ 空间定位的不是狭义上的自然,不是说我们需要在里面移植一颗树,或者造一片森林,自然应该是一种理念,是一种放任自由的向往。 ”
当我们将这样的理念融进生活,不再把城市与自然对立开来,去塑造一种开阔的心境,使周遭生活变得简单而纯粹,即使身处城市,也能感受到自然赋予自我的丰盈与豁达。

图片由自然建造提供
如今,这个家因为人的活动、生活气的堆叠,还呈现了一番有别于山林生活的热闹和温度。始于自然却不囿于自然,才是这个家最完整的表达。
最后,就用肖姐姐先生的一句话作为结尾吧,“我觉得家不是一个简单的空间概念,而是一个时间概念,是身处其中的人长时间相处所形成的,而每一个人的任意动作和行为都能在这个空间自然发生。”
从设计师将自然的概念融进空间,到生活其中的人构建出更丰富、自由的生活场景,这个家生长成了独一无二的美好样态——“既有山居生活的悠然从容,又有人间烟火的充实丰盈。”

主编: 牧之、鹤鹤
监制: 安琪
执行主编: 涩々
编辑: 白
撰稿: 白
摄影: 邹邹©宅二三,或由自然建造、肖姐姐提供
平面设计: 科林
校对: 言四
收录话题:#家设计#家居设计###软装##硬装#
原文链接: 以竹为筑,这个家是建在城市中的“世外山林”