电气照明平面图如何确定导线根数(1)
双联单控开关的导线根数 的确定:
很多朋友在看电气平面图或做设计的过程中,不知道怎么去确定电气照明平面图中的灯具导线根数。这里我为你献上我总结提炼出的标注导线的3个步骤,顺序依次为:电源进线至灯、灯至开关、灯至灯。
第1步 、找到灯的电源进线。这个图中灯的电源进线为配电箱至灯的连线,为L N PE三根导线。

第2步、电源进线的L线先进开关,再连灯。灯至开关的连线为:一根L进线,出线看开关是几联的,几联就加几。这个图中灯到双联开关,那么灯与开关间就是三根线,也就是一根L进线,两根L出线,共三根。

第3步、各灯之间均有N、PE线连接,加上经过开关控制该灯的L线。如果还连接到其他开关,就再加一个不经过开关的L线。

电气照明平面图如何确定导线根数(2)
在住宅的卧室二次装修时,我们常常会用到双控开关,也就是在卧室进门处和床头的地方,各设置一只 双控 开关 ,来控制卧室中央的同一盏灯。这样做的好处是睡觉时不用下床去门口关灯,直接在床头控制灯的开断就可以了,非常方便。
双控 开关 的控制原理如下图所示:

第1步、找到灯的电源进线。这个图中灯的电源进线为L N PE三根导线。

第2步、灯至双控开关1的连线为:一根L进线,两根L出线连接至 双控 开关 2,共三根。

第3步、灯至 双控 开关 2的连线为:两根L进线,一根L出线连接至灯,共三根。

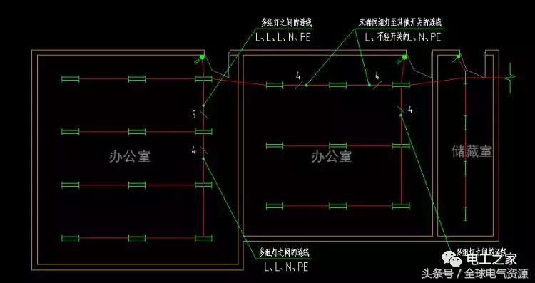
电气照明平面图如何确定导线根数(3)
这篇文章,我们再来看看含有单联单控、三联单控开关、四联单控开关的照明平面图,如何标注导线根数。
同样,按照标注导线的3个步骤:电源进线至灯、灯至开关、灯至灯,来依次分析。
第1步、找到灯的电源进线。这个图中单联开关、三联开关、四联开关所控制的灯的电源进线均为L、N、PE三根导线。而且这L、N、PE三根导线都是不经过开关的。

第2步、电源进线的L线先进开关,再连灯。灯至开关的连线为:一根L进线,出线看开关是几联的,几联就加几。这个图中,灯到单联开关是一根L进线,一根L出线,共两根;灯到三联开关是一根L进线,三根L出线,共四根;灯到四联开关是一根L进线,四根L出线,共五根。

第3步、各灯之间均有N、PE线连接。末端同组灯加上经过开关控制该灯的L线,共三根;经过末端同组灯连接到其他开关的导线根数,需再加一根不经过开关的L线,共四根;多组灯之间连接的导线根数,需加上经过开关控制多组灯的灯L线,几组灯就加几根L线。












