项目案例名称 :黄花镇黄春路 2 号别墅项目
项目案例所在地 :湖南省长沙市
项目设备选型 :开利 miniVWV 全直流变频中央空调
项目案例选送单位 :长沙怡生暖通设备销售有限公司
项目案例建筑概况

项目案例地理环境分析
本项目位于湖南省长沙市黄花镇,长沙市属暖温带季风区大陆性半湿润气候,四季分明, 光照充足,年平均气温 11.5℃,年平均降雨量 671.1mm。冬严寒,夏炎热,春秋季节,阳 光充足而不曝。
项目案例分析
本项目为住宅用房,常住人口为 3-6 人,业主希望在舒适、节能、经济的要求下对系 统进行设计。经与用户沟通交流,最后确定设计方案功能配置如下:业主对舒适度要求比较 高,推荐业主采用冬季地暖取暖,夏天风盘制冷,全房采用一套 miniVWV 两联供系统解决 舒适要求。
项目案例设计依据
1、《辐射供暖供冷技术规范》JGJ142-2012;
2、《建筑给水排水及供暖工程施工质量验收规范》GB50242-2002;
3、《低温热水地板辐射供暖系统施工安装图集》03K03404-2005;
4、《民用建筑节能设计标准》JGJ26-95;
5、《民用建筑供暖通风与空气调节设计规范》GB50736-2012。
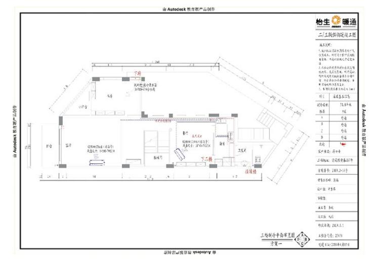
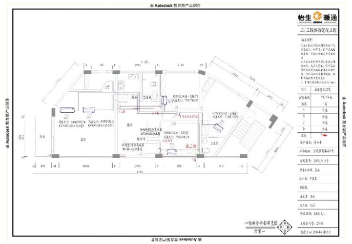
项目案例方案设计·空调配置



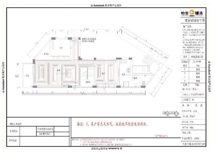
项目案例方案设计·地暖配置
本项目为独栋建筑,无地下室,一层与 地面直接接触,地暖系统设计及施工着重考 虑以下几点:1、地暖管间距≤ 200cm,地 暖管长度≤ 60m/ 路,两个回路长度差< 5m, 确保水力循环平衡;2、一层模块挤塑板厚 度为 3cm,密度为 36kg/m³,以最大限度减 少热量损失,确保承重;3、地暖管保护层 为混凝土填充,确保硬度及蓄热性能。



项目案例现场施工以及完工效果图
1. 空调系统: 管路及设备吊装:采用不锈钢专用吊码、 纳米银防火帆布,管路采用 PRET 聚乙烯柔 性管道,B1 级 30mm 厚保温。
2. 地暖系统: 采用德国佩耐德 PERT20*2.0 地暖管:1、 无毒无味、卫生、不腐蚀、不滋生细菌、不 污染 水质、内壁光滑,流阻小;2、耐温耐 压,可稳定工作于 -40-90° C 的环境,*破爆** 压力可达 6.0Mpa;3、导热系数高达 0.35W/ m.k,特别适用于地暖用管、冷热给水管;4、 保温隔热性能好,导热时不结垢,导冷时不 结霜;5、抗蠕变、耐老化,使用寿命达 50 年以上。
3. 系统安装完工: 系统一期安装完毕对系统做好管路测压和冷凝水排水试验确保系统安装质量。




项目案例运行效果检测
客户使用情况为,冬季采暖空气源热泵 回水温度 36℃,室内 一层 19℃ -20℃,二层 20℃ -22℃,三层 18℃ -20℃。本项目小区明 用阶梯电价,电价计费 0.88 元 / 度,具有单 独电表,客户反馈费用 2800 元左右 / 月,使 用时间 1 个月。平均费用为每平方 13 元 / 月。

脚步不停
“成长”不止
7月2日
2021暖通空调及舒适智能产业
渠道商“成长”公益行( 重庆 )
报名全面开启!