九华山第一次映入眼帘时,我们可以看到它清晰的形状。峰峦叠嶂,堪称“东南第一名山”。
克孜提迦巴菩萨的铜像静静地矗立在山峰下,与这里的山、水和村庄一起经受住了时间的考验。唐*开代**元末年,晋文公来到九华;在接下来的1600年里,西提迦巴菩提曼陀已经广为人知。九华山的山峰和山脉与佛教文化融为一体,呈现出独特的风格。
莲花镇就在铜像旁边。事实上,这个小镇更像是一个村庄,有着天然的脉络和成群的建筑,是游客登山后休息、拜佛和朋友聚在一起喝茶的理想场所。

MOMA Lotus Resort是第一个建筑,位于城镇的入口处。“树、井、鸡”是中国人心目中“村口”的形象,也是一种强烈的乡愁。我们为小镇设计的是一个宽阔的广场,水元素,一个铃铛和树。
建筑不会以碎片的形式消失在大自然中;它被放置在水面上,形成一个完整的形态,仿佛把四季的景色融入庭院,或者让建筑与景观、天地融为一体,感受四季的变化。空间是人类创造的,世界是你如何感知的。

建筑以这样一种谦卑的方式展现出来,然后随着时间的推移而完善。例如,村落和佛像的出现是人类在不同时期在自然中活动和行为的结果,最终必然与自然融为一体。

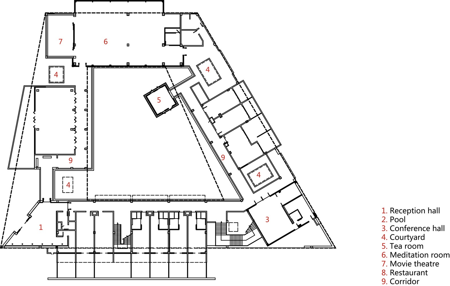
建筑的屋顶是一个向上倾斜的屋顶,最高点在场地的东南角,这也解决了局部两层的功能设置。
在完整的屋顶下,功能被完全分割,庭院被嵌入,模糊了内外边界。院落内外都设计了水元素,通过水的倒影,人们可以从外面品味禅意花园的生活,从里面欣赏不同的风景和山的气候。




建筑以两种颜色装饰,灰色外墙和木质内墙。挂毯砖以空心砖墙的形式拼贴而成,上面覆盖着灰绿色的小瓦片,在乡村的背景下呈现出一种谦逊、平静的氛围。



内庭院的材料采用了大量的木质彩色铝板和玻璃,在阳光下显得温暖。室内和室外的材料在檐口下过渡,吊顶的木质颜色向外延伸,在水中反射,走廊和庭院周围使用灰色砖。流动和延伸是空间的主题。


陡峭的屋顶可以创造更好的光影,但修复灰绿色的小瓷砖并不是一个小挑战。天井采用进口merbau原木,营造出安徽民居典型的“雨水四通八达”的风格。建筑过程就像古代与现代的对话。




游客们可以欣赏到山景,房间布置在南面和东面,在那里可以供奉佛像。建筑二层的房间水平排列,形成内部走道,天窗自然出现。顶部的光线延伸到楼梯的位置,形成几个矩形的窗户,随着光线的变化,一个意想不到的生动空间出现了。






总之,建筑的功能必须由它所处的环境和使用者来定义。建筑融合了中国禅宗和茶文化,在高度和宽度上给予足够尺度的空间创造,并将自然景观和文化元素融入建筑设计中。让不同的用户体验生活状态的放松或禅意的升华,这也是小镇的意义所在。









