本案例为两居室,祖孙三代住,户主和姥姥还有妈妈一起住,都为女性。
所以整套设计使用了较为鲜艳的颜色作为整个家中的主色调。

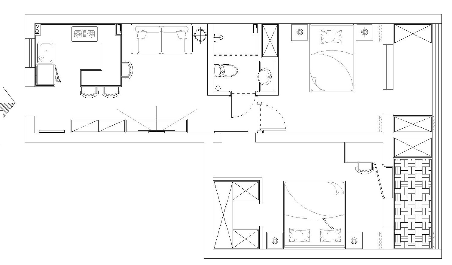
户型图

厨房
厨房为开放式的,餐桌使用吧台的形式,节省空间。

卧室
主卧做了一个衣帽间,采用圆形门洞,对于整个空间也是一种装饰。

卧室
由于房主也是一名网络主播,对的色彩和软装搭配要求很高,整个家中的软装配饰也是一个重点突出的地方。

客厅

卧室
主卧室阳台的榻榻米主要用于休闲活动。次卧是老人的空间,采用偏绿色,有种回归自然的意境,让老人身心得到放松。

卧室
本案例为两居室,祖孙三代住,户主和姥姥还有妈妈一起住,都为女性。
所以整套设计使用了较为鲜艳的颜色作为整个家中的主色调。

户型图

厨房
厨房为开放式的,餐桌使用吧台的形式,节省空间。

卧室
主卧做了一个衣帽间,采用圆形门洞,对于整个空间也是一种装饰。

卧室
由于房主也是一名网络主播,对的色彩和软装搭配要求很高,整个家中的软装配饰也是一个重点突出的地方。

客厅

卧室
主卧室阳台的榻榻米主要用于休闲活动。次卧是老人的空间,采用偏绿色,有种回归自然的意境,让老人身心得到放松。

卧室