好久没出选房攻略啦~
最近很多人在询问领尚该如何选房,那么我们依旧老规矩,依次按照户型来说说。

地块周边分布

楼间距图
小区周边没有什么不利设施,唯有东坝大街(主干路)、机场二高速的噪音问题需要考虑。
二高速距离相对较远,而且中间还隔着一个小区,不作为主要影响因素。
东坝大街规划是主干路,这个噪音问题是跑不了的。
但这个小区户型的排布很有意思,最北侧两栋楼的户型很多具有唯一性。没得选,只有这2栋楼里有,所以将就吧。
75平,两居


虽然6/8两楼的楼间距不错,但7/8两楼太近了。
75平首选7号楼,无遮挡,采光完美,这是不用说的。
其次是8号楼,首选西侧单元中高层,被遮挡的时间短,东侧单元的中低层采光最差,冬季时,可能中午12点前无采光。
7号楼>8号楼西侧单元>8号楼东侧单元
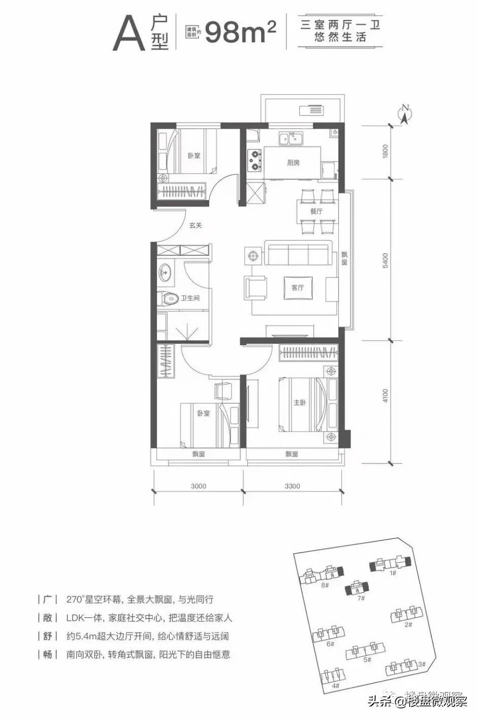
95/98平三居


边户户型,客厅朝东(西)。这个户型依旧 首选7号楼 ,胖虎觉得上午的阳光比下午宝贵,还避免西晒的问题,所以首选7号楼东边户。
次选1号楼 东边户,隐私性最好,还朝东。就是东边看中冶的小区,没园林。
最后选1号楼西边户,8号楼东边户,由于整个小区稍稍偏东南,7号楼27层比1号/8号都要高,所以8号楼的上午的采光基本都被遮挡,1号楼西边户同理。
7号楼东边户>7号楼西边户>1号楼东边户>1号楼西边户/8号楼东边户
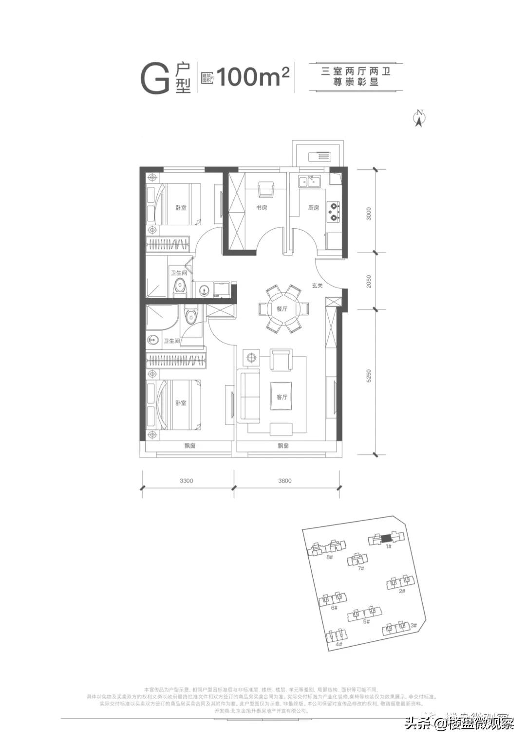
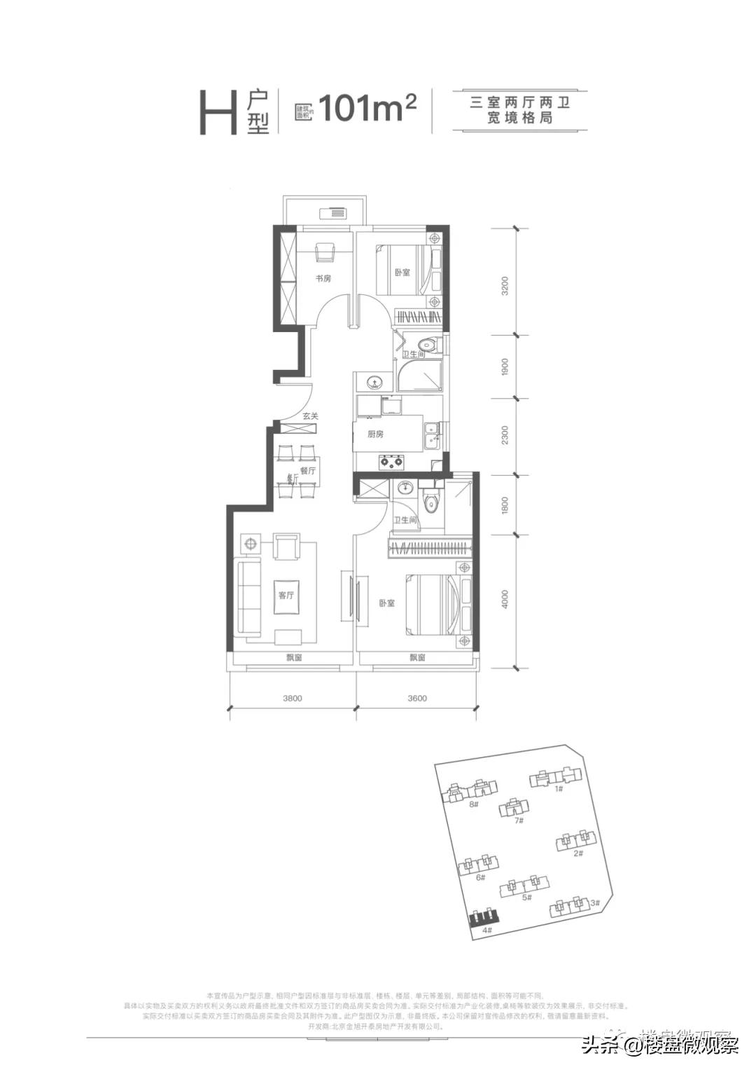
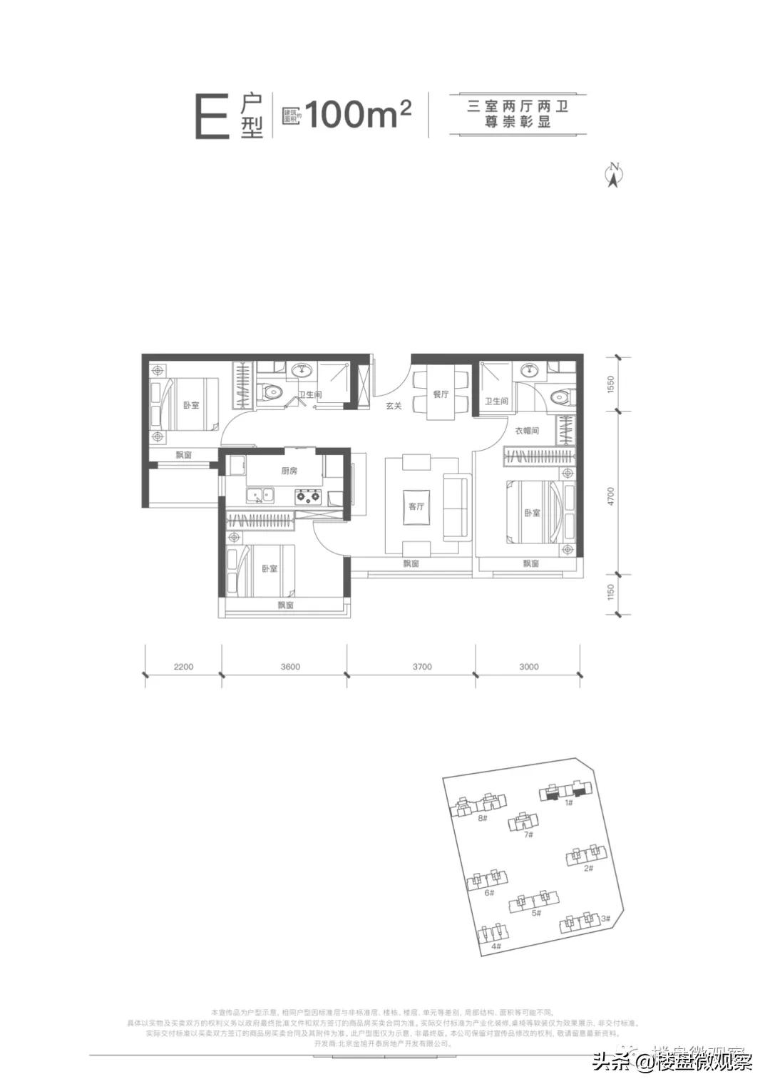
100平米三居




这4个户型基本没什么可挑的,有高选高就完了,E户型尽量选东边单元,下午不遮挡。
8号楼跟61平同楼的96平3居这期不对外,我们就不多说了。
119平-主力三居


119的主力三居,2/3号楼各有各的小毛病,3号楼南侧临路,噪音和景观都不理想,2号楼北侧是小区车辆的主出入口,意外情况下,会有噪音问题。相比之下2号楼更优一些。
总的来说还是首选6号楼西侧单元,没有任何问题。其次是2/3号楼。6号楼的东侧中低层还是会有遮挡的问题,最后选。
6号楼西单元>2号楼>3号楼>6号楼东单元
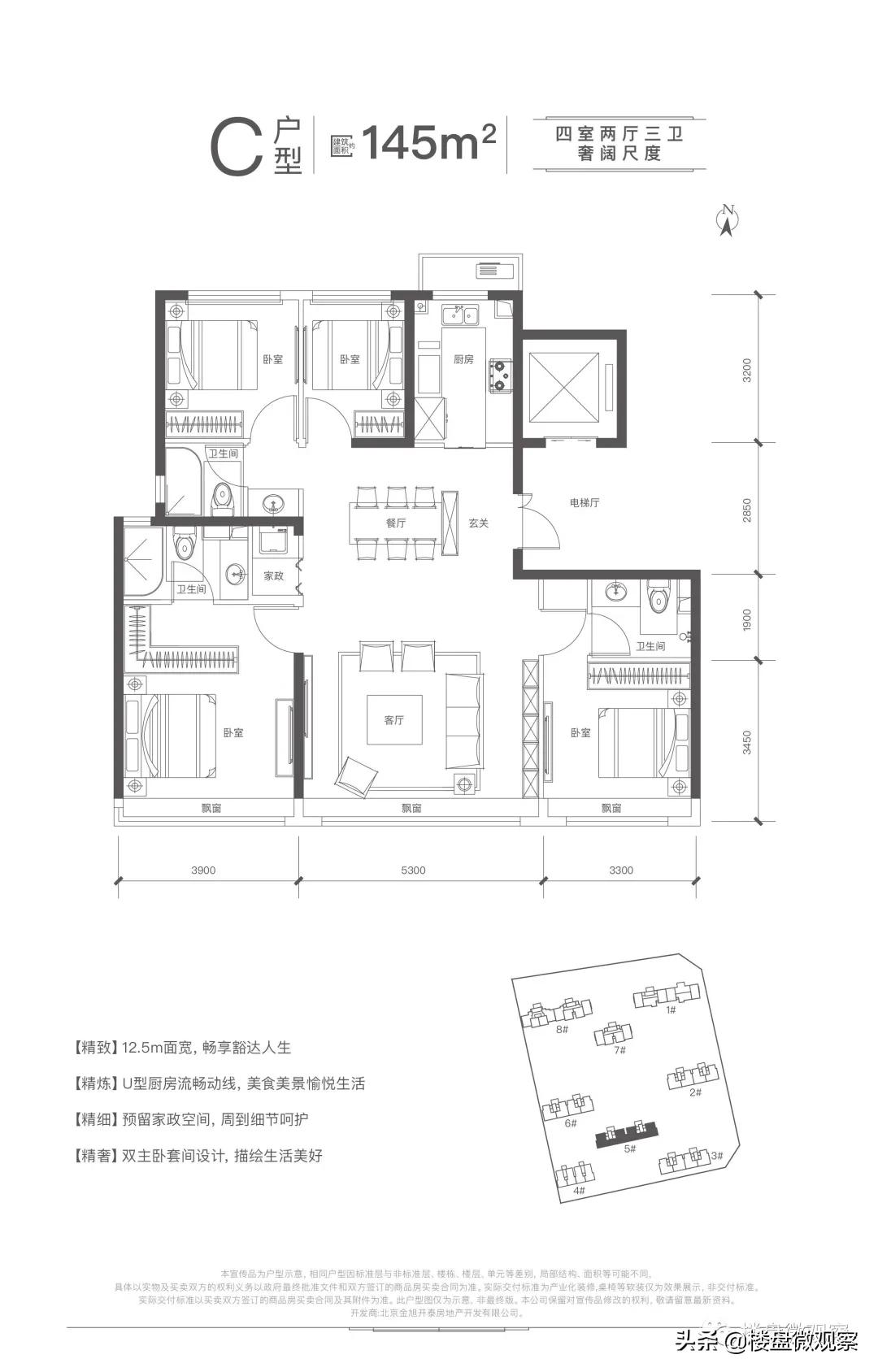
145平,四居户型


145要分为边户和中户来说,看各位怎么选了。
中户的采光最好,基本无遮挡,依旧有高买高。
户型上的小问题,两个中户的卫生间窗户是在同一个槽里的,通风、隐私性会受一定影响,是否会有隐私隔离墙,目前不清楚。
边户的中低楼层会有采光问题,被前面两栋楼分别在上下午遮挡。但好处就是卫生间窗户在外侧,通风采光更好。
所以先选好,中户还是边户,首选中高,边户的高度更重要。喜欢要早下手。
相关阅读
领尚小户型现在排卡情况如何?如果不好抢......
东五环朝阳东坝两大纯新盘启动,是否入手良机?
首发:朝阳区唯一限竞房【领尚】样板间实拍照,极致窗墙比,通透无上限。
首发:华樾国际.领尚 得房率测算表
华樾国际领尚选房攻略,看完再买,踏实~
--END---