宅sir今天要介绍的屋主,不少人对她可能并不陌生。在粉丝眼中,她是模特、原创设计师,也是女装品牌“Badtaste坏品味西部”的创始人。而金文聪给自己的评价,是一个用服装讲故事的人。

因为工作,服装和拍照是屋主人的日常。今年初,金文聪与先生欣哥搬进了他们在成都的新家。这个空间不仅能拍大片,还拥有3个超大衣帽间。

三个衣帽间加起来面积57㎡,不夸张的说,这比宅sir 的家都大!
Q & A
Q:房子最初什么样?改造前后发生哪些变化?
A:原本是标准90年代装修风格的四室一厅,改造后变成一室一厅三衣帽间的户型。
Q:为什么会做三个衣帽间?
A:因为我是服装设计师,服饰鞋包非常多,收纳对我家来说是个大难题。
Q:衣帽间的面积各是多少?
A:20/22/15㎡,分别用来收衣饰、鞋子和包包。
Q:三个衣帽间好打理吗?有没有收纳心得可以分享?
A:衣服超过一定数量后基本是没有窍门的,需要一个会收纳的保姆阿姨每天收着就不会乱了。
认识他们

屋主:金文聪与先生欣哥
大家好,我是金文聪,一名服装设计师。我出生在成都,成长在成都,工作在成都,可以说是一个从没离开过家乡的人,很恋家。这套房是我和先生的家,对我们来说,这里既是居住空间也是日常工作的地方。

设计师:Denny Ho
ONE SPACE DESIGN 壹阁设计创始人
美籍华人室内设计师,毕业于Art Institute of California-Santa Ana加州艺术学院,后在米兰理工大学攻读艺术设计双硕士学位。专注设计10余年,具有丰富的经验。
房屋信息

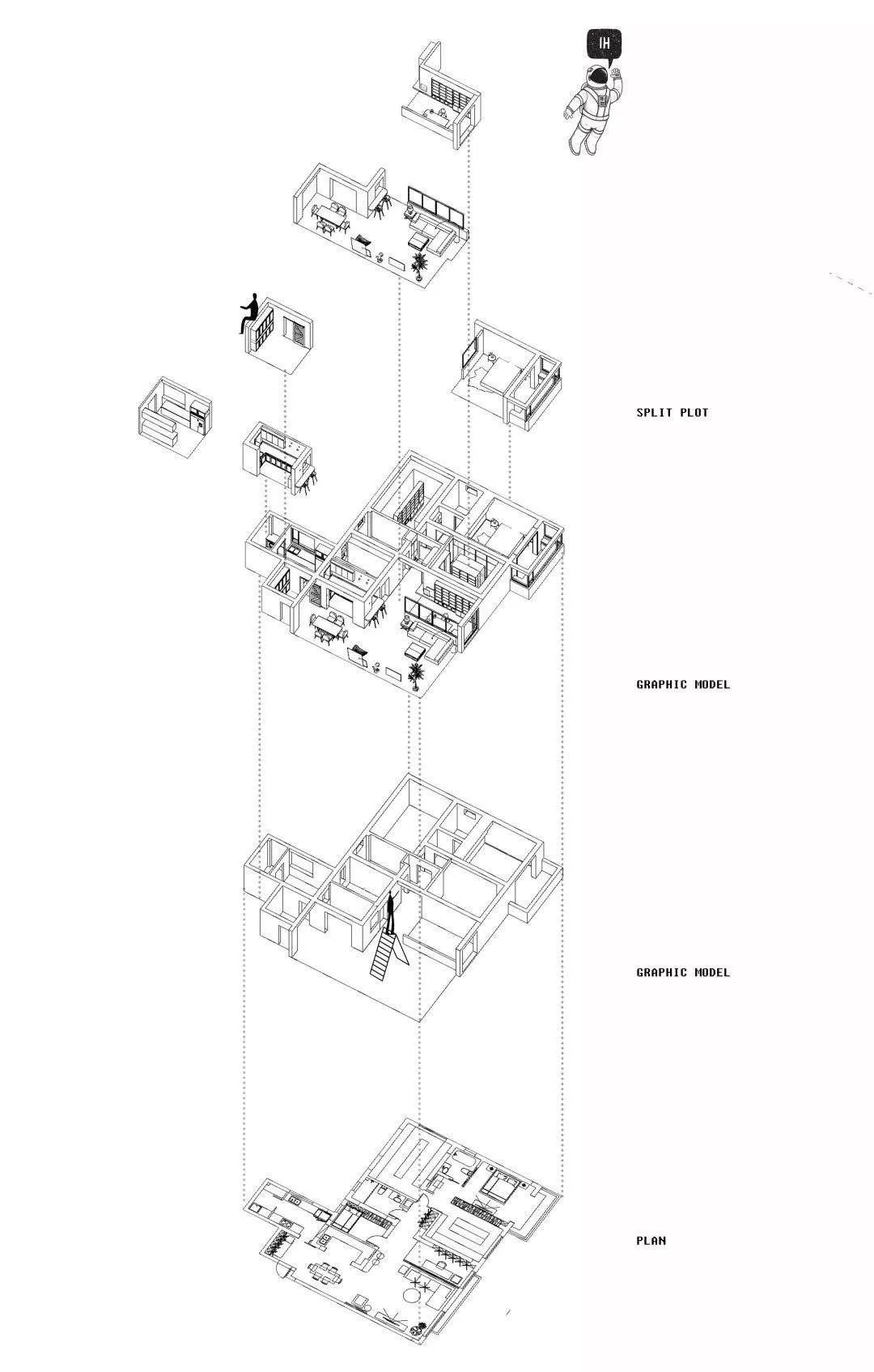
户型分解轴侧图
坐标:四川·成都
使用面积:180㎡
户型:一厅一室三衣帽间(原为四室一厅)
装修花费:160W(硬装110W+软装50W)

黄框内为衣帽间的位置
我们家最多的就是衣服,所以装修时跟设计师沟通,希望能解决衣物的收纳问题。
设计师给我们家规划了三个衣帽间,一间拥有三面到顶鞋柜及中岛的是我们的鞋房,一间有两面到顶玻璃柜的专门用来放包,还有一间用来收衣服。所有柜体边线都嵌入了线条灯,用来保证无窗空间的采光。
客厅:利用玻璃隔断,分出独立书房

沙发:HAY
客厅有35㎡,因为空间较大,装修时利用玻璃隔断分隔出了一个独立的书房空间。

地毯:无风生活
墙漆:多乐士、品赫
我跟我先生因为都不太喜欢家里都是地板,所以公共区域用了深灰色纹理地砖,地面岩石的肌理感很明显,搭配地毯中和下,整铺也不会显得很空旷。

客厅靠窗的墙面做了跳色处理,利用石膏装饰线做成了画框的效果,搭配两盏地射灯装饰,为蓝黑色墙面增添质感。这面墙也成了家里风格的缩影,因为颜值够高,是日常出镜率最高的地方。

墙面细节。客厅区的灰蓝色系与暗红色块,能为空间带来不同的层次感。

客厅角落的老虎椅,是托朋友从印度带回来的,整根木材雕刻而成,放在客厅做装饰刚好合适。

老虎椅搭配细节。

客厅看书房,两空间以细框玻璃窗分隔。平时在书房办公时,可以将玻璃窗上的拉帘放下来,半开放式的书房又能变成一个独立空间。

玻璃柜:蘑菇空间
从书房旁的过道看客厅,旁边的吧台作为客厅与开放式厨房的分隔点。
客厅、开放式厨房与餐厅相连,视觉上有延伸空间的效果,三个区域动线流畅,大大提升了空间利用率。

我们在客厅位置放了一个高脚玻璃柜,用来收藏从世界各地淘回来的小物件。

柜内小物件展示。
餐厅:临近玄关

餐厅在入户的位置,右手边就是中西分厨。
虽然平时很少在家吃午餐或晚餐,但我们还是非常享受早餐时光的。像这样一个西厨吧台很适合我们,通常我先生在中厨做早餐时我会在吧台陪伴。

清晨吧台的日常。

餐桌椅:Stellar work
餐厅视角看玄关。顶天立地的鞋柜可以放下40双鞋子,平时我先生的鞋子会放在这里,而我自己的会直接拿进衣帽间。
中西厨房:由传菜口紧密连接

中西厨原本是两个完全分隔的空间,我们在墙上开了个洞,让两个厨房可以紧密连接起来。有朋友来聚餐时,也方便传菜。

洗衣房与厨房由一扇玻璃折叠门分隔,既能避免功能区的杂乱会影响厨房美观,玻璃的透光性又能保证洗衣房的采光。

整个厨房以白色为主调,搭配橱柜的色调能让空间质感倍增。这个区域能满足几个人同时下厨,橱柜的高度也是根据我们的身高来定制的,使用感很好。
书房:半开放式保证空间通透感

书房面积5㎡,是从客厅隔出来的。这个空间我们选择了鱼骨拼接的木地板,书桌下是从土耳其背回来的地毯,湖蓝色很适合书房。

活泼色彩的点缀,也让书房变得很上镜。

客厅看向书房,书柜内嵌入了隐形灯条,即便平时不开灯室内也能保证充足的采光。
走廊:门上开洞,方便宠物进出

客厅玻璃高脚柜正对的位置,是通往我们卧室的走廊,我们在门上面做了一个方便猫咪行走的子母门,并在门上做了雕花装饰。

子母门细节。家里养了两只猫一只狗,所以装修时也考虑了他们的日常生活,猫咪晚上习惯跟我们一起睡,所以进进出出开关门很不方便,现在门上开个小洞,关门睡觉时也不用担心它进不来了。
主卧:墙色+遮光帘,打造宁静休息空间

主卧面积12㎡,进门最先看到我的梳妆台,相比之前住的空间,这个梳妆台稍小了点,不过也完全够用。
设计师在梳妆镜四周做了灯条,亮度高、光线角度好,对每天化妆的人来说这个设计特别人性化。

墙漆:品赫
双人床:爱觅盒子
床头柜:Maison Dada
我和我先生的睡眠不太好,所以需要一个完全避光的环境休息,装修时我们将卧室窗户装上了全避光的卷帘。整体卧室的颜色也选了深蓝色,希望能创造出一个绝对宁静的休息空间。

床头正对的是家里的衣帽间,因为两空间是用玻璃衣柜来分隔的,所以电视只能用落地支架来固定。

主卧蓝色系床头柜与暖色调的灯光,为空间带来趣味感与轻松氛围。设计师在床头天花板的位置设计了石膏线条的装饰,细节上丰富了卧室空间。

天花板装饰细节。

卧室连接的小阳台,我们用定制柜做了一圈收纳区,放些平时贴身的衣物。
衣帽间:三间面积57㎡

位于主卧的衣帽间,装修时为了扩大使用面积,我们将墙体打掉重新做了玻璃衣柜分隔空间,衣柜内做竖灯条,方便日常衣物的查找。

另一个衣帽间在客厅旁,用来收包包。房间两边各有一个顶天立地的玻璃柜,中间是一面超大全身镜。

第三个衣帽间是用来放鞋的,三面到顶的鞋柜外加中间一个中岛,让整个房间都能变成储存空间。

衣帽间日常。
卫浴间:小空间塞进浴缸

主卫面积虽然小,但生活态度还是要有的,小小空间内被我塞下了一个浴缸,平时出差或拍摄回到家,泡个澡很解乏。

洗手台、三孔龙头:PM&CO
洗手台选了复古的支架台盆款,黄铜材质与地面花砖的搭配很显精致。

次卫比较常用,空间够大就做了干湿分离。两个卫浴间的洁具,都选了造型复古但不会过于复杂的款式,并通过细节装饰增添整个空间的质感。
关于家的装修,我们都很倾向于简洁而有趣的设计风格,能展示我们自身特质就好。毕竟设计风格总会过时,但拥有主人气质的房子会显得更有生命力。
☟

留 言 福 利

商务合作
微信ID:TrendsZaijia006
微信ID:TrendsZaijia010
后台回复“转载”,获取转载须知
编辑/里里 图片/屋主提供
想拥有三个衣帽间的请点 在看 !