小区:梦世界乐梦中心
户型:loft
装修面积:50平
装修风格:现代
装修基础造价:4万
业主要求:业主90后年轻人 时尚有想法,喜欢比较简约的居家风格但希望有一些变化,时尚的元素多一些。 两人有在家办公的需求,需要办公区域的设计。
设计说明:经过与业主的一段时间的接触,两个年轻人比较有自己的想法,两人经营着自己的工作室,这个空间除了具备基本居住功能以外,工作室的办公也在这里完成。最后确定为现代风格,在材质的运用上增加不锈钢和镜面,提升空间的质感。


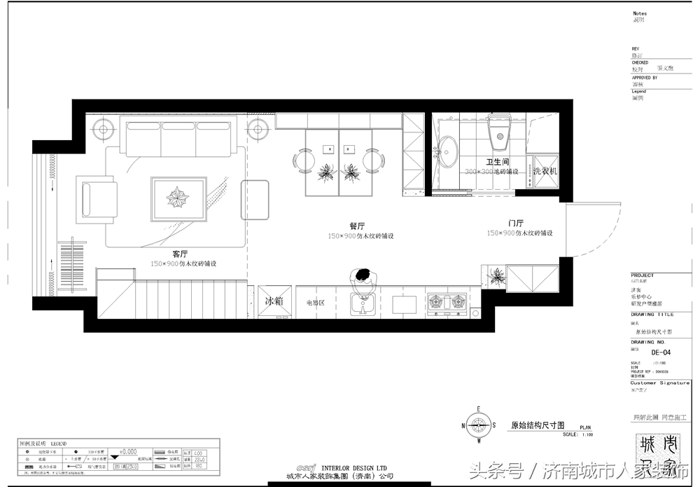
办公空间布置在一楼,业主的就餐基本不在家,所以把原餐厅的位置占用,摆放两张书桌以满足办公的需求。开房式的厨房,可以满足临时的一些就餐或者冷餐的需求。客厅区域简单的布艺沙发及窗户边的休闲椅,在工作累了得时候,是一个非常棒的休息空间。




在整体颜色选择上以灰色和白色为主要颜色,搭配亮色的软装饰品,让空间变的更加灵活。灯具的选择上以简约的明装筒灯、轨道灯为主,即不站空间还能起到装饰的作用。


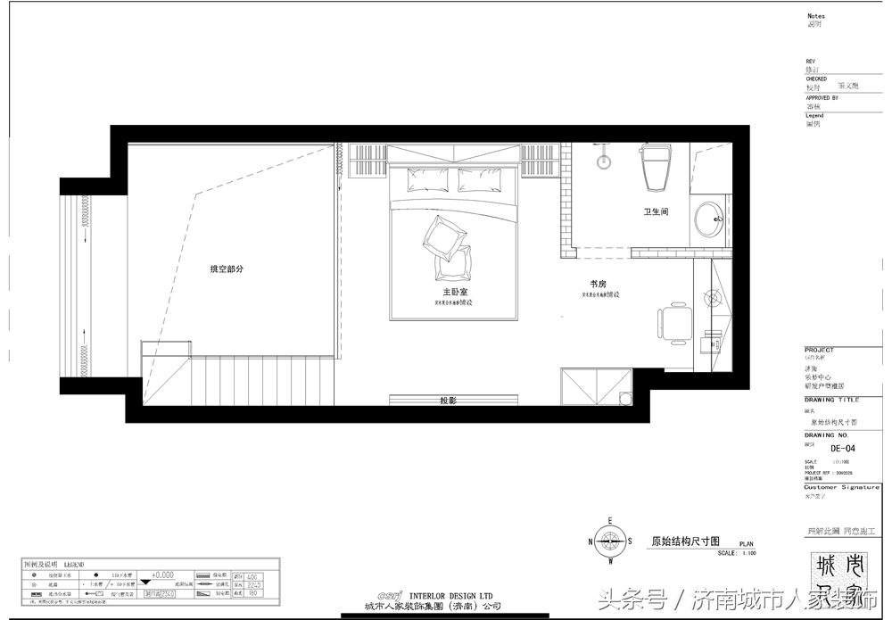
二楼作为休息的区域,为了保持空间的通透性以及采光性,二楼区域没有在做明显的区域分割,开房式的衣帽间及卧室最大限度的保留空间的通透性。

一层平面图

二层平面图
想要了解更多装修知识或者想查看更多案例,可以关注小编点击下方“在线咨询”或者给小编留言喔。