说起工业风,很多人第一印象,还是斑驳的水泥墙、裸露的钢管、粗陋的红砖,对于这样的组合很多人还是无法接受。但如今的工业风早已不局限于此,在不同的风格中,加入一些原始粗犷的元素,效果会变得截然不同,既有工业风的味道,效果又不压抑。
这次分享的案例就是如此,125平的新房,偏爱美式宽敞风格的屋主夫妇,在装修中加入工业风的经典元素红砖和黑色金属制品,打造了一间属于自己风格的理想新家,效果简直太好看了,若是再买房,我也要学他家这么装!(图:三商美福)

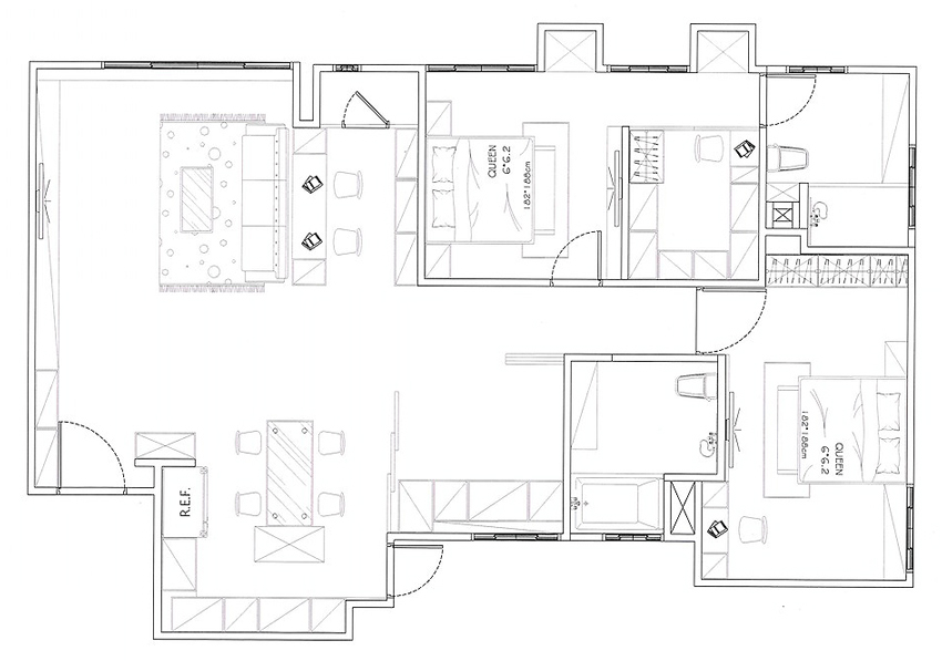
装修平面布置图,125平的三房两厅两卫布局,常住人口暂时只有夫妻二人。

客餐厅以开放式设计呈现工业风元素,集合了红砖墙、仿古木纹地板、棕色皮质沙发和黑铁展示架,整体效果稳重又大方,别有一番视觉精致。

沙发后打造成开放式工作区,木作天花板设计,遮梁隐蔽管线,保持空间美观的同时,又能拉伸视觉。定制长型工作桌满足办公需求,同时也让沙发有了靠背。红砖墙搭配黑铁木质层板展示架,突显出粗犷硬朗的工业风气息。左侧隐形门设计,内部为储藏室,收纳居家杂物。

仿古木纹地板搭配人字拼法,在造型上让简单的空间更富有内容。暖色原木及白色的加入,空间更加自然整洁,不显压抑。黑色轨道灯的加入,为天花板增添了一份大气感。

开放式设计保持了空间通透一体,谷仓门也是工业风一大特色,做旧风格的木头与黑色铁制品的结合,效果真的很好看。

地面原本打算延续木地板保持整体感,考虑到功能区使用特点,改铺更好清洁的材质,舍弃了瓷砖选择了质感更好的钢石地板,灰色也平添了些许工业风,同时也与客厅做出区域划分。



厨房大面积使用白色,圆弧线板门片配上复古深色门把手,简单高级又耐看。流理台选择了清爽纯白地铁砖,在隐藏LED灯照明下,让厨房显得格外亮堂。各种电器嵌入方式摆放,收纳也考虑很周到,地柜、吊柜和电气柜组合,让厨房更加清爽干净整洁。


小房间打造成休闲区,将来也可以是儿童房。玻璃隔断空间更加灵活通透。白色、灰蓝色和木色结合,营造出舒适惬意感。小小的地图设计,增添收纳同时又可以是沙发。

过道粗犷的红砖墙,搭配白色的卧室门,复古与现代的结合,照片的加入让红砖的粗犷多了一份生活气息。

主卧打造成一个套间形式,拥有着大衣帽间和独立卫生间。休息区以白色和原木色为主,打造一处简洁自然的休息空间。


衣帽间除了收纳衣物之外,还结合了梳妆台设计,打造一处女主专属空间。简约清水质感门片,有着一丝工业复古感,搭配色泽泽饱满的宝蓝色拉门,耐看又不显压抑。

紧邻衣帽间的主卫,选择了Loft的现代风格洗手台,特别定制的黑色铁艺框架延伸到淋浴区,让整体风格更加连贯。

次卧象牙白的衣柜,搭配古铜色的五金件,与卧室整体格调非常相衬。衣柜设计很巧妙,一小部分的开放式设计,视觉不呆板,又可以摆放饰品装饰卧室。

合理利用户型特点,嵌入设计储物柜和梳妆台,增加实用性的同时空间更加整齐统一。侧边墙面刷上浅灰蓝点缀,让空间呈现一丝优雅质感。