首发 | 万科白鹭郡复式样板间:时尚栖居 质感适意
精巧宜居,质感生活
"VANKE BAILU COUNTY DUPLEX SHOW FLAT"
「 万科白鹭郡复式样板间 」
潮流固然千般变化,诚然,现代年轻人追寻的是一种舒适宜居的质感生活,一个有所栖、有所依,更多创造性的家。基于此,设计师从细节及材质上营造不同的感官体验,巧妙地将业主的喜好融入其中,将闲适的情怀与沉稳的精神品位不断进行调和,在实用的功能主义之上,折射出年轻一代的生活态度,打造一个现代简约的时尚之家。

空间整体采用了简洁的白色为主要基底,与其说采用了大量暖白色,并不是对色彩的舍弃,而是让材质的肌理成为唯一,把色彩的机会让渡给软装的范畴,辅助以橙红色作为点缀色烘托气氛,并列于空间特质中,在视觉上追求通透的质感,营造出惬意、明媚的氛围。
▍ 客厅入门而进,敞朗的客厅逐渐敞开全貌,米白色皮质肌理的长沙发铺陈空间,橘色单椅盈盈一抹,用来调和。名为“刺桐花开”的艺术装置也参与了橘色的趣味计划,让原本精致的空间更增添艺术气息。皮质家具与地毯的自然肌理达成静逸微妙的触感,结合沉稳的大理石材质,让人感到舒适与身份的双重满足。











▍ 餐厅在烫金的英文装饰下,餐厅的浪漫属性被急剧放大,绿植与帆布材料的搭配,并没有排斥,反而适度伶俐如伊。[size=13.3333px]





▍ 主卧 主卧在设计上延续空间的基调,平稳内敛。玻璃桌台及墙面镜的设置更显空间的通透,静落一隅的橘色皮椅,则赋予空间新奇跳脱之感,在色彩和质感间制造细微差别。[size=13.3333px]







▍ LEGO主题房 生活除却平凡的日常,要添以趣味的意涵,从乐高及当下最具流行的欧美动漫元素中汲取灵感,打造极简、有格调同时又深藏趣味细节的Lego主题空间,这里既是休闲区也是精神一隅。通过重新组合软装及模型的设计,使惯常所见的装饰画、亚克力装饰、手办等,看似无序排列,却开朗,极具活力,共同丰富空间的层序与表情。





▍ 次卧次卧与主卧保持基本基调,简约大方,细腻但不冷漠,以求贴近实际居住的舒适度。[size=13.3333px]




▍ 儿童房
儿童房使用活泼的蓝、绿色彩碰撞的书柜,不仅增加了空间的储物功能,又丰富了空间的童趣。暖木的玩具与墙面汽车黑板墙,安全环保又充满创造力,增添一份纯粹的童真,为孩子制造了一个可以随时回到暑假的私有乐园。



设计由真实的生活场景出发,让居住者能葆有对精神的向往、对时尚的敏感、对品位的追求,进而去享受更多的生活趣味,获得满满的能量。不藏不显的心境、不繁不简的生活,这正是年轻一代时尚美好的理想生活状态。
▍ 概念意向



▍ 软装平面布置

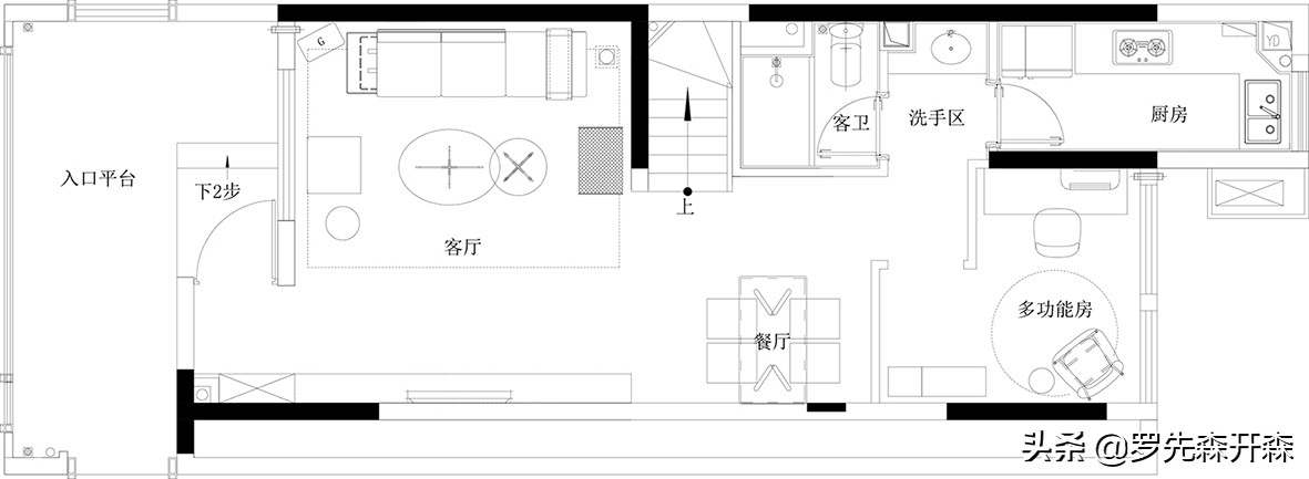
▲一层平面图

▲ 二层平面图
| 项目信息 |
ABOUT THE PROJECT
项目名称:万科白鹭郡复式样板房项目地点:福建 厦门竣工时间:2019年12月设计面积:96㎡业主单位: 万科地产软装设计:厦门南范设计有限公司项目主案:张冰冰 团队成员:贺仕凤 陈炜捷项目摄影:周志春
