移动只是改变CAD选择对象的原始位置,并不复制对象。在CAD中执行“移动”命令后,选择移动后的对象回按enter键,按照命令行提示拾取基准点和指定移动点,最后按enter键完成移动。
执行方式
(1)单击菜单栏“修改→移动”。如图:

(2)单击编辑工具栏“移动命令”按钮。如图:

(3)在左下角命令行输入“move”按enter键。如图:

操作步骤
执行命令之后,命令行会显示以下信息:

选项说明
(1)选择移动对象:指定要移动的对象。
(2)指定基点:指定移动的起点。
(3)指定移动到点:指定移动的距离和方向。
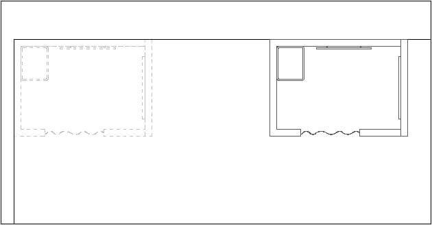
移动效果图如下图所示:
移动之前 :

移动之后:
