
碧桂园海昌天澜本次推出1栋高层和8栋洋房房源,销售房源208套,面积段:高层163-207㎡,洋房117-196㎡;清水价格:高层7000元/平米,洋房:11000元/平米。
登记时间:2018.02.22-2018.02.24
资格核验时间:2018.02.22-2018.02.25
碧桂园海昌天澜

板块:项目位于麓山大道旁雅居乐花园板块,不在天府新区发展的主线上,被挡在成自泸高速以外,被忽视的板块,商业配套严重不足,以社区底商为主。
这个区域最早是由雅居乐从2006年开始开发,但一直发展的不好,主要原因还是位置偏,主要以自然资源为优势,更适合养老,开车要方便一些。
旁边除了雅居乐花园、博雅苑基本都是农田。距离项目2公里有韩婆岭公墓。
版块与天府新区的几大热点版块秦皇寺、兴隆湖、锦江生态带、麓湖、华府不在一个段位,只能算是挂了一个天府新区的名头,项目周边还需要多年缓慢发展。
地铁:距离在建的6号线麓山大道站大约3公里。
学校:金苹果幼儿园、万安小学、万安中学、白沙小学 、白沙初级中学、成都市实验外国语学校(私立)

项目信息:
楼盘地址: 天府新区麓山大道二段59号(雅居乐花园对面)
清水价格:高层7000元/平米,洋房:11000元/平米
面积段:高层163-207㎡,洋房117-196㎡
总占地:438亩
容积率:2.0
开盘楼栋:99#,,108-112#、115-117#,208套

图片来自成都帮帮帮
简评:项目有大量的洋房别墅,低密住区,园林环境较好。本次推出的高层和洋房居住舒适度都不错,均正对别墅区,视野开阔无遮挡。
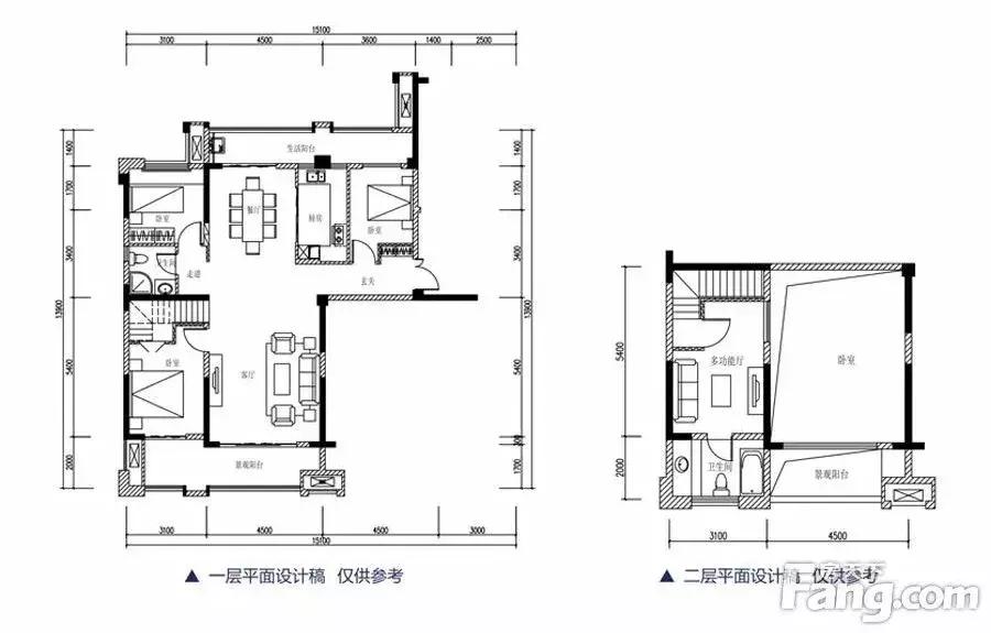
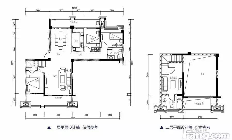
高层住宅推出99#,总高28层,2梯2户,空中跃层设计,面积163-207㎡,为适合改善需求的大户型。洋房推出8栋6+1多层花园洋房,一梯两户,纯板式结构,建面约143㎡。
海昌天澜项目是碧桂园在2015年底有收购大连海昌集团获得。目前物业管理是海昌物业。
户型

166㎡的四室三厅两卫(高层户型)

166㎡的四室三厅两卫(高层户型)

143㎡的四室两厅双卫(洋房户型)
小结:改需产品,项目最大的优势是价格低,7000元/平米基本是一年前的价格。产品设计也不错,不管洋房还是高层,都非常注重舒适度,户型设计较好。
但是,不太看好区域发展,升值空间有限,主要是与二手房倒挂的剪刀差。
项目周边二手房大约13000元/平米,高层住宅剪刀差每平米6000元,比二手房便宜46%左右。
本次高层与洋房在定价上有4000元的差价,但在二手房市场实际交易时,洋房大概只比高层贵1500元左右。所以结果显而易见。
关于买房,有问题需要咨询,可以欢迎联系我们。
喜欢此文,欢迎 关注 和转发支持成都说房
精细化买房的时代来了,这是一个只站在买方立场说话的公众号。如果你需要有一个站在买方立场为你挑房的行家,欢迎联系我们!