【合肥实创装饰】高速时代城110日式案例赏析
面积:110平米
案例简述:利用浅色窗帘等优化自然光的吸采,给家中足够的自然感和恬静感,同时小植物的加入也能为室内增添更多宁谧的格调。
案例风格:日式
案例户型:三室两厅一厨两卫
设计概述:日式风格的写意淡雅、清新自然、简洁明快。利用浅色窗帘等优化自然光的吸采,给家中足够的自然感和恬静感,同时小植物的加入也能为室内增添更多宁谧的格调。
描述:高速时代城小区案例赏析,小美式风格家装效果图极富美感。精心打造的三室二厅温馨家园,兼具美观与实用。

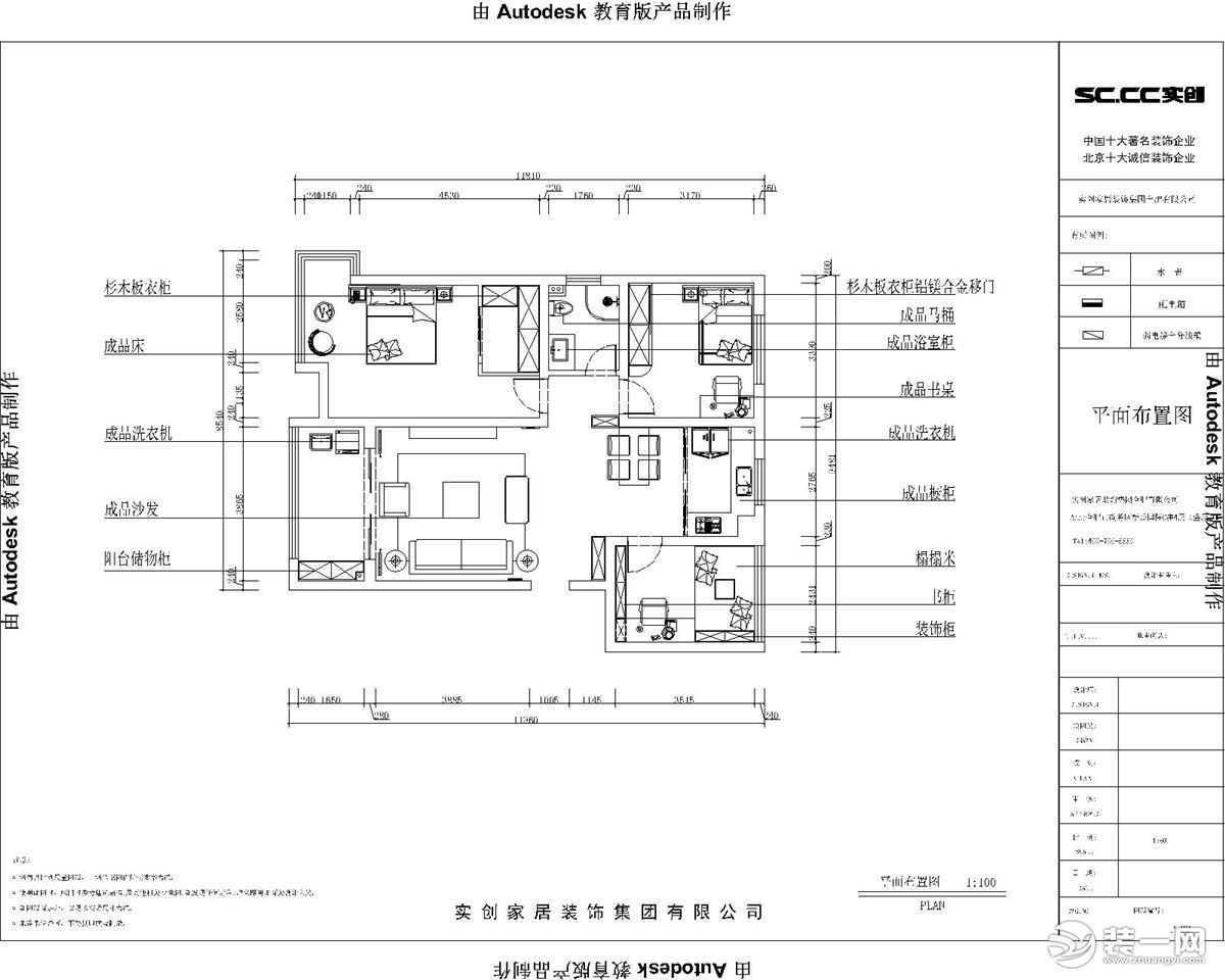
户型平面结构图。

客厅。

餐厅。

卧室
【合肥实创装饰】淮矿·馥邦天下170欧式案例
真正理解生活本质的现代人,懂得舍去繁复和不真实,在他们眼中,舒适和简单的美就是生活的最初。
面积:170平米
案例户型:四室两厅一厨两卫
案例简述:精炼的现代欧式线条,简约素雅的色彩架构,不乏质感的装饰细节,构筑出了一个舒适自然、典雅高贵的感性空间。
设计概述: 真正理解生活本质的现代人,懂得舍去繁复和不真实,在他们眼中,舒适和简单的美就是生活的最初。
作品说明: 本案中,设计师抛开传统欧式繁复的表面文章,从最初的生活诉求出发。精炼的现代欧式线条,简约素雅的色彩架构,不乏质感的装饰细节,构筑出了一个舒适自然、典雅高贵的感性空间。

客厅。

餐厅。

入户玄关。

卧室。
合肥装饰公司分享的这两组案例大家最喜欢哪一组呢?