——如果能找到一个陪我打游戏的女朋友,该多幸福啊。(小声哔哔:现在,你有了)

我哥们阿亮是个深度网游患者,当然这和他的职业挂钩,作为一名游戏开发设计师,他每天泡在游戏里的时间,比和女朋友谈恋爱的时间还长,因此黄了一个又一个。就在我以为他要和游戏私定终身的时候,竟然收到了他的结婚喜帖,嘿这小子还真有本事!
阿亮的新房他妈早就给他买好了,就等着媳妇上门开始装修,这不,前几天终于装修好了,作为铁子的我肯定要过去参观啊!结果刚进门就惊呆了,这新房也太清新脱俗了吧!最让人意外的是游戏室,简直酷毙了!以后再也不用去网吧了,打游戏直接来他家!

阿亮家的游戏室
下面我给大家展(xuan)示(yao)下
地理信息:苏州领秀金品
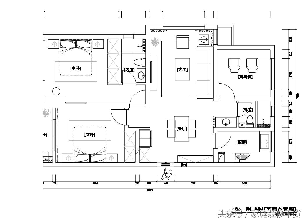
面积:125㎡
户型:三室两厅
装修风格:日式
硬装全包费用:15.8万
装修公司:青庭设计装饰
设计师:李博

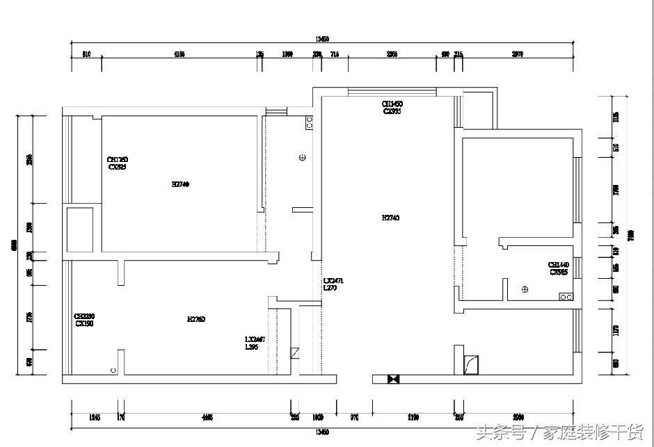
(原始户型图)

(平面布置图)

阳光透过白色纱帘筛落在地上、沙发上、墙壁上,令人目眩神迷恍惚来世,也许这就是日式风格的意境所在。

电视背景墙用白色的仿古砖做出凹凸的造型,让整个空间不再显得那么刻板。

矮柜、形态各异的矮几、沙发背景墙上的挂画,无一不展现着日式风格的淡雅节制、深邃禅意。


区别于传统日式给人的寂静感,阿亮的新家却是充满着文艺和朝气,舒适指数也是UP到底。进门的左右手边都打上了柜子,超强的收纳是日式风格的特点之一。超大的双开门冰箱也被安排的明明白白,没有丝毫空间利用不足的尴尬感。

左手边的柜子大约1米高,进出门不能忘带的东西就摆这里。空白的墙面也不能闲置,挂上淘来的特色饰品,便给人眼前一亮的感觉。

设计师用木条巧妙的将卫生间干区和餐厅进行隔断,茶前饭后洗手清理都极为方便。


厨房整体墙面选用了白色格子砖造型,与白色琉璃台面搭配,不容易过时也极好清理。木质家具搭配清新淡雅的原始空间配色,形成朴素温暖的自然风格。简洁透光的窗户,给人以宽敞明亮的感觉。


整个卧室除了床头的挂画以外再无过多的装饰,正如日式风格的闲情雅致总能在无意间流露一样。

藤编圆凳也是日式风格的特色之一,设计师将飘窗改造成茶座,靠墙的小柜几是可移动的,清理起来也很方便。


精致的猪猪女孩怎么能错过带灯的梳妆镜呢?家里有了这点时尚潮流元素,才渐渐感觉到年轻人的气息。

卫生间阿亮选择用灰色地砖更耐脏,墙上挂了一个古铜色的毛巾架,原来日式风也能这么高级!

罗曼罗兰说:“世界上是有一种英雄主义,那就是认清生活的真相后依旧热爱生活。”朴素而用心,回归生活本真,这也许就是日式风格设计的根本吧。
我的朋友阿亮家装得怎么样?觉得不错请为我点赞哦!如果你也喜欢这样的装修设计,请私信我,免费为你做装修设计!
注:本文所有图片归家庭装修干货所有,转载请注明出处