
结识董先生全家那年他女儿刚刚考上大学,准备举家搬至南京,遂同年9月在南京诞生了青山湾---{韵}这个作品……记得当时SKH的小伙伴们在沈老师的带领下,已经开启了全程托管整包模式。很荣幸那年的我能够参与其中,也见证了SKH的成长……


因为工作调动,迁往泰州的董先生找到了沈老师,邀其为新家做设计。董先生说,他常常这样想,自从认识了沈老师,居住质量和品位提高了不少档次,比起一般意义上的装修,区别很大,也许要多出一些设计费,但是他们愿意这样做,只要在他们力所能及的范围之内,并且他们对沈老师一直常怀感激……他们对项目没有什么要求,二度合作充分信任沈老师,只要求给他们一个稳定温暖的家。






做此项目前沈老师对我们说,对于每一次的艺术创作,“灵感从哪里来”对于他来讲不是很重要,因为灵感有的时候就是很荒谬的一个来源,或者甚至都不知道是怎么来的。可是他相信,创作必须要在一种自由心的状态下,最好是完完全全地自由,才会出现好的创作。设计是一种力的较量,与业主之间,与施工难度之间都是一个拔河的过程,事实上创作的过程就是不断地跟那些紧箍咒的对抗。
感谢业主全力配合,没有过多的干预,给予SKH小伙伴们充分发挥的自由并顺利完成了泰州【咏叹调】这个作品。









咏叹调即抒情调,它是在十七世纪末,随着歌剧的迅速发展,人们不再满足于宣叙调的平淡,希望有更富于感情色彩的表现形式而产生的。同时它往往是最精彩的唱段,结构完整,需要演员掌握高度的演唱技巧。还可以拿出来单独作为音乐会的独唱节目来演唱。这些犹如沈老师此套作品,高低起伏,不趋于平淡,极富感情色彩,他完美的把这一切融合到了一起,并且重点设定的一些区域又可以单独拿出来作为高潮的一个篇章,不拘泥于各种形式,遂取名为【咏叹调】。






从事十五年的室内设计,沈烤华先生依然相信这个行业有着远大的前景。因为他相信:品位决定一切。有着怎样的品位,就有怎样的生活方式,就会有怎样的创造力,这些决定着我们的未来……
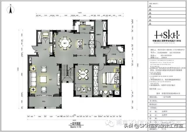
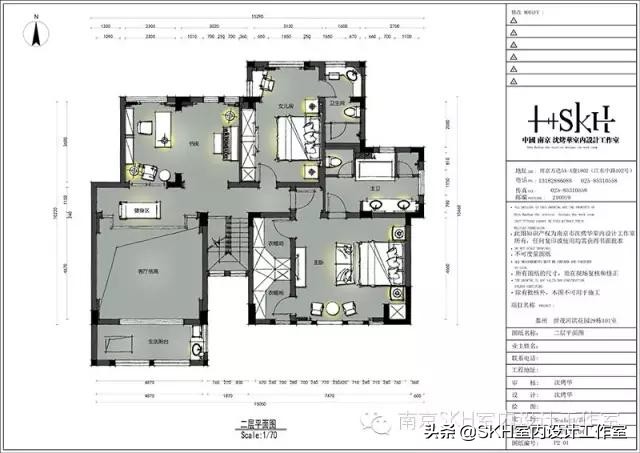
项目地址:泰州世茂河滨花园
设计公司:南京SKH室内设计工作室
整体软装:南京SKH室内设计工作室
主笔设计:沈烤华
参与设计:王亚平 崔巍 潘虹 王志 薛成 尤一枫 黄泳炼
摄影: ingalleryTM工作室
建筑面积:358平方米 (五房二厅三卫)
合作方式:全程托管
如果您喜欢我们的作品
关注微信公众号:南京SKH室内设计工作室
项目具体细节咨询:观享际设计SKH工作室
地址:南京市秦淮区国家领军人才创业园39栋101
「 观享际SKH 简介 」

南京观享际 SKH室内设计 成立于2008年,是一家拥有资深背景、年轻、前卫的设计师团队,引进了国际流行设计的室内设计管理新理念,其专注于别墅、私人宅院、办公空间、展厅等。设计和施工及全程整体托管模式,拥有优质设计施工团队及配套高端材料资源,包括前期概念、施工图深化、效果图、现场施工负责、软装配饰等。从事装饰行业17年期间,累计全国近二十个城市500套装修设计案例,一直坚持个性化的装饰设计,追求时代化的创新意识,工作室正以适合自身、适应时代的前所未有的持续发展态势在装饰业界不断发展。在特色观念的鼓舞下,工作室力争在装饰设计作出自身个性,与其他企业形成差异化。独特的构思和强大的设计后盾创建了鲜明的品牌形象及良好口碑。

ANTECHAMBER|前厅▲

WAITING|等待区▲

INTERNATIONAL|VIP室▲


CONFERENCE|会议室▲


OFFICE|办公区▲

RELAX|健身区▲
南京观享际 SKH设计团队主要致力于,针对不同客户对空间审美诉求给予最准确的量身定制式设计服务,每完成一整套设计,凸显它价值的最大衡量标准就是它的唯一性和不可替代性;当客户觉得“非你不可”的时候,你的设计的可贵才由此体现,不论是“小小蜗居”还是“豪华别墅”。由客户需求出发进行设计细节到家中每一个成员的生活习惯及方式,才能造就独一无二的、获得客户肯定的设计,通过作品展现的是SKH设计团队对设计创意的执着追求,每个设计作品的命名都代表一段与人文有关的故事