设计说明:
关于旧房改造很多人总会以后不会有高颜值出现,在我拿到这个项目的室内建筑功能主要是餐厅和楼顶层尚未利用的空间需要重新规划,在原有结构的基础上设计了一套通行楼梯,改善了使用功能的流线性同时把原有在一层餐厅的洗衣机、整屋热水器,移到楼顶阳光房,这样餐厅就成了复合型空间形态可以是会客区、茶室、品酒区塑造出客户的生活方式。对于二层主卧室的空间使用设计出一个衣帽间的使用区大大提升了用户的储物性。在装饰材料上我们对业主的审美进行了全面、准确的了解,发现简单、素雅是选择装饰材料和色彩搭配的必要条件,不难想象项目完成后业主在这里度过的惬意的每一天都是满满的生活。
项目名称:颜开
项目地址:北京朝阳区
项目室内面积:300平米
项目设计:北京壹空间室内设计工作室
主要材料:
西班牙PAMESA瓷砖、格兰布朗壁纸、科宝橱柜、木作定制、大花白石材、杜拉维特洁具、
配饰产品:
北欧风情家具、艾迪玛仕大师系列家具、迪然布艺、

重新梳理过后的功能平面

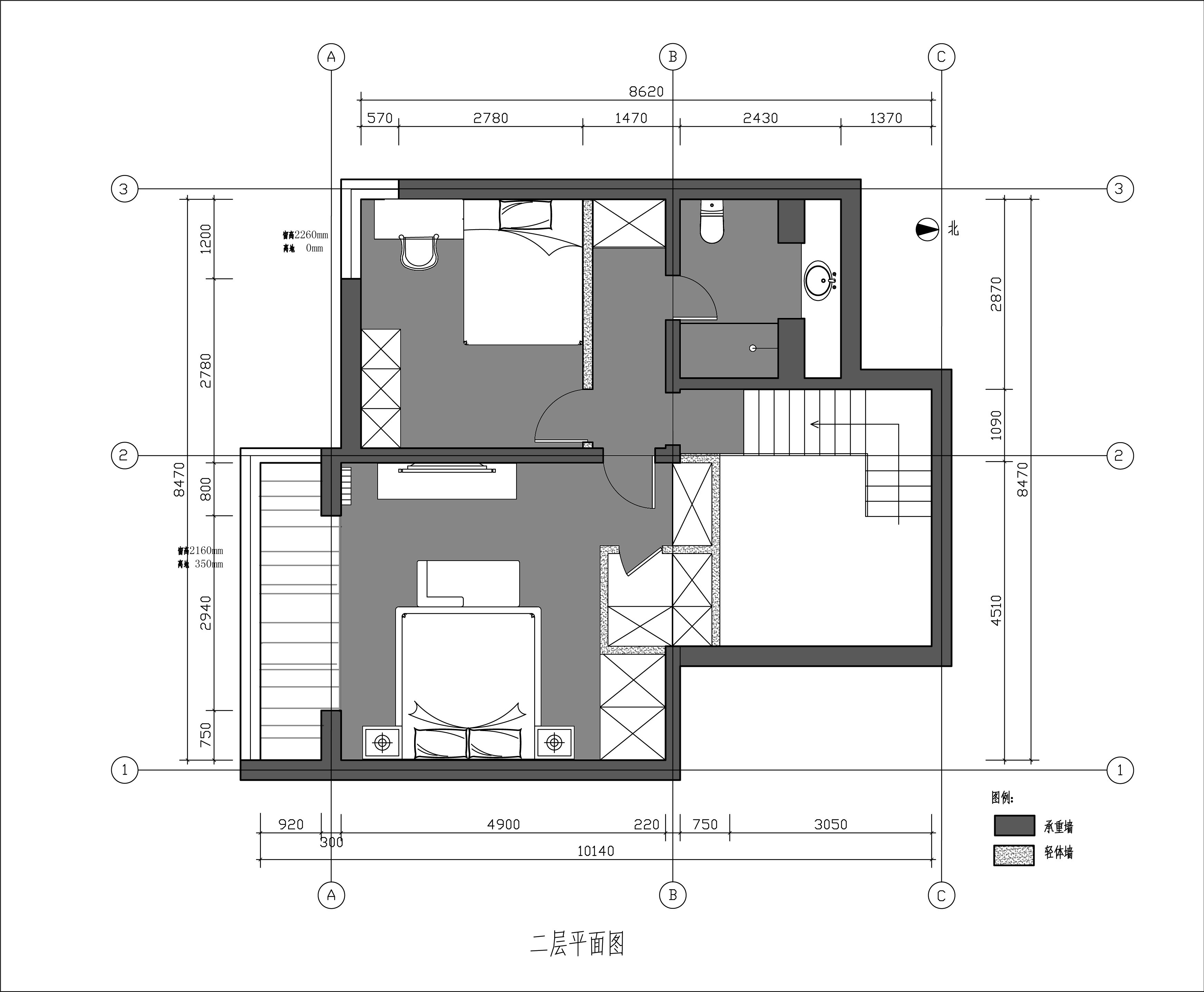
增加了各种储物功能后的二层平面


简单的设计语言

我在设计时希望更多的引入阳光

限制材质的色彩表现空间的干净

客厅的一抹彩色,改造三个月后我们重新焕发了建筑空间的美

卫生间