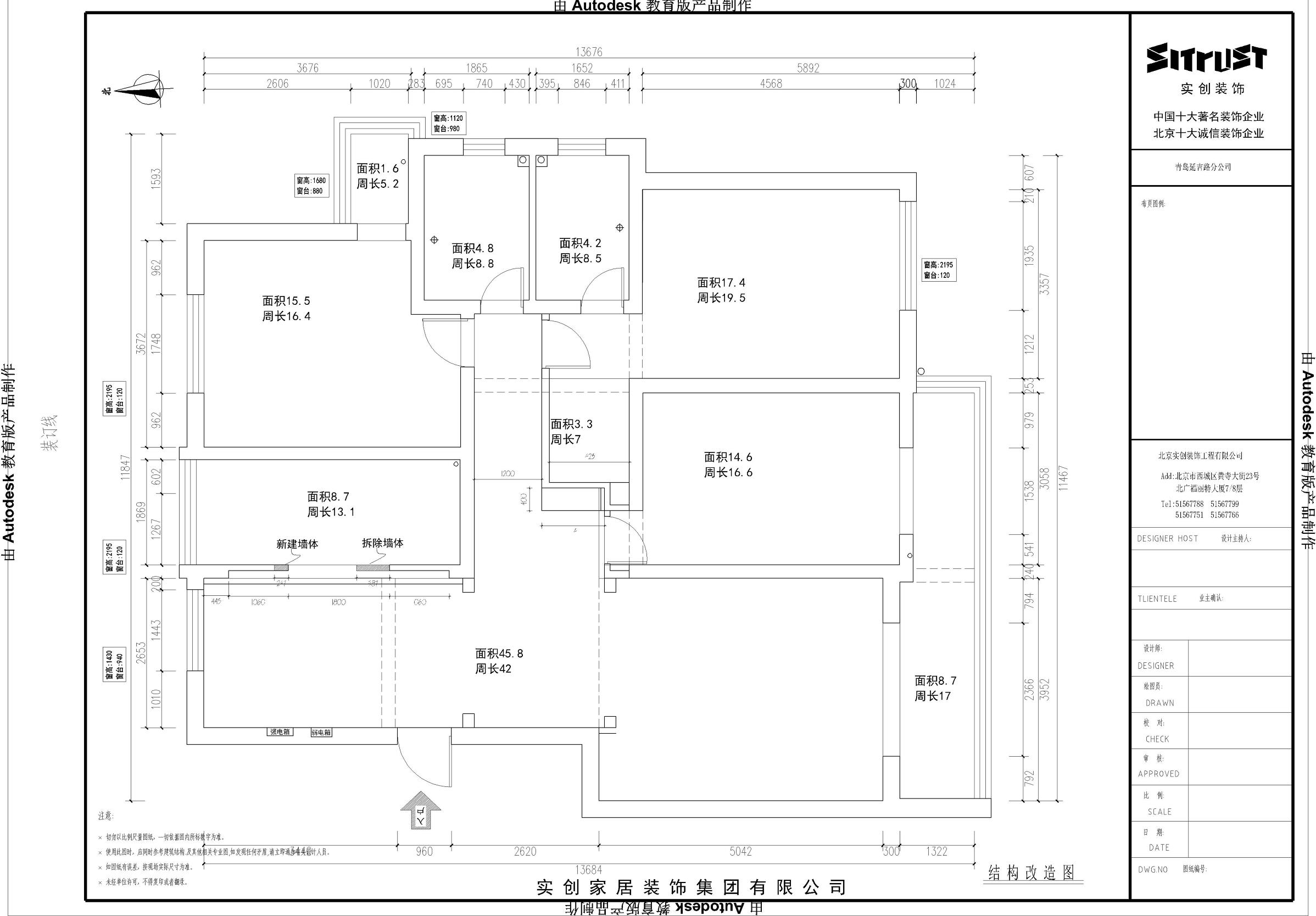
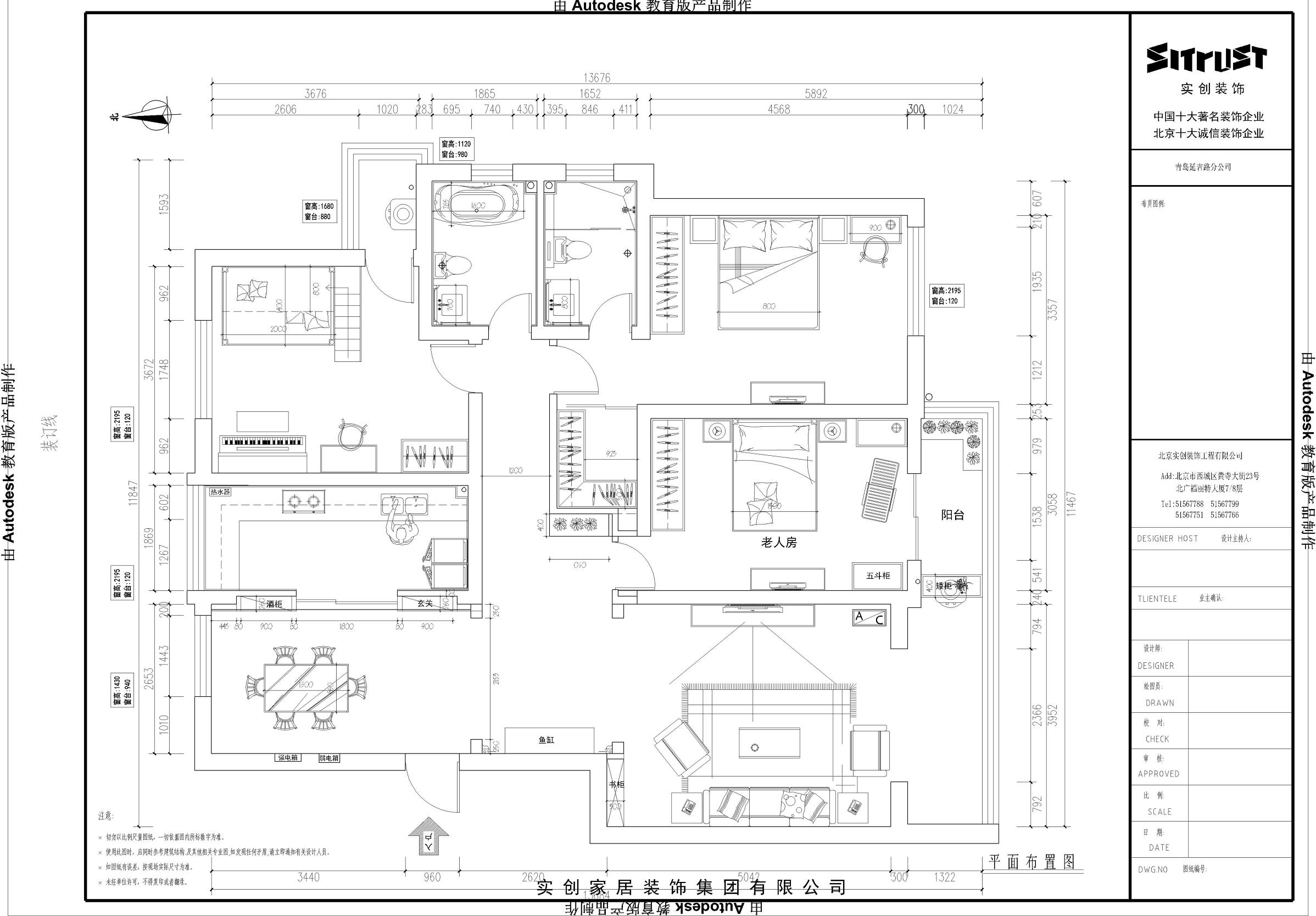
银川美居155平二手房翻新,装修以简单、舒适、环保、自然为中心,为客户营造一个温馨的家,客户是三口之家,女主人比较喜欢欧式风格里体现出来的那种高贵,优雅的生活方式。喜欢浪漫温馨的空间。设计源于生活,丰富的设计就是把生活的空间变得丰富多彩。简单美观,经过多次的商讨之后最终呈现出现在的效果。

看人家的婚房,高逼格,银川美居155平老房翻新

看人家的婚房,高逼格,银川美居155平老房翻新

看人家的婚房,高逼格,银川美居155平老房翻新

看人家的婚房,高逼格,银川美居155平老房翻新

看人家的婚房,高逼格,银川美居155平老房翻新

看人家的婚房,高逼格,银川美居155平老房翻新


了解更多青岛小区装修案例
加微信 18353285901 (青岛)
交流装修 让装修变得更简单!!