
本案位于天津海河教育园里,南开大学之畔,北邻海运学院,拥有得天独厚的教育资源,人文底蕴深厚。建筑师敏锐的将津派文化和场地独有的学府人文气质相结合,提出“新津派学院风”的设计理念,力图打造出充满文化内涵的建筑空间,凸显企业品牌价值。新中式的建筑风格,简约大方,出檐深远的金属屋面,充满变化的建筑立面,轻盈的步道连廊,在光影的变换下营造出淡雅,静谧的书院氛围。
▼ 内院,淡雅,静谧的书院氛围

提取中国传统书院布局的原型,在小区西南角的区域内,用化整为零的手法将三个不同尺度的长方体块,围合成一个内向性的院落空间,构筑成小型社区的概念。三个体块主次分明,东侧售楼处主体建筑引领着人们的视觉焦点。建筑整体以一种谦逊的姿态退后城市界面布置,藏于景观和廊道之后,不漏锋芒,一步一步的引导人们进入场地内部,体验着移步移景给参观者带来的乐趣。建筑布局,闹中取静,营造出充满着静谧的书院气息。
▼ 轴测图,Axonometric drawing

另外,建筑又进一步融合了传统建筑的精华,如门头,照壁,亭台,大屋檐,连廊,院墙等。其中廊子这一元素,将这个小型的建筑群进一步串联成一个整体,对整个售楼处的流线起到了暗示,引领的作用。
▼ 建筑入口,Entrance

▼ 照壁,亭台,大屋檐,连廊,院墙等传统建筑元素的使用,The construction has been further mixed with the essence of traditional architecture such as screen, pavilion, large eave, corridor, walls



▼ 廊子将这建筑群串联成一个整体


简洁的建筑形体,深远的大屋面,虚实结合的立面效果,现代的材料和工艺做法,试图创造出轻盈的,富有变化的,充满现代感的中式立面效果。
▼ 轻盈的,富有变化的,充满现代感的中式立面效果


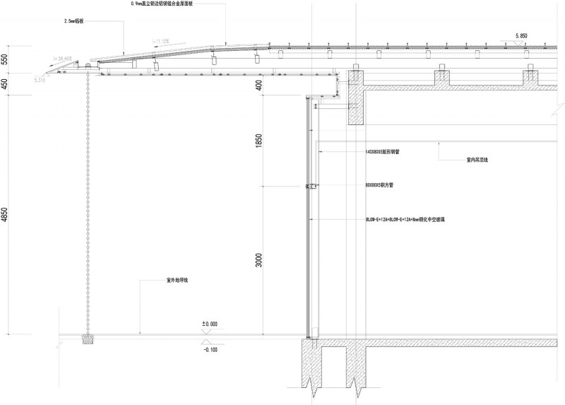
“大挑檐金属屋面”和“金属砖”更是作为售楼处立面效果两个重要的组成部分。钢结构形式的金属屋面,一方面保证了屋檐出挑的距离,另一方面可以保证屋面的轻薄感,赋予了传统建筑大挑檐屋面的时代意义。东侧主体建筑的外立面,则从中国山水画中汲取灵感,通过几种不同模数的金属砖的变化,组成一幅具有中式韵味的山水写意立面。丰富的立面变化,在光线的作用下,显现出不同光影的变换,亦虚亦实,美轮美奂。
▼ 轻薄的“大挑檐金属屋面”,“The metal roofs with huge overhanging eaves” ensure roof’s lightness

▼ “金属砖”显现出不同光影的变换

建筑材料,以暖灰色铝板,浅黄色的仿石涂料为主要基调,配以仿铜铝板作为点缀,形成视觉焦点,起到画龙点睛的作用。不同材料的组合,强化了空间的本质,符合“书院”内敛,谦逊的气质。主体实墙面以横向线条为主,经由几种不同模数的组合而成,凹凸的材料质感更是加强了建筑表面的光影关系,使立面更加丰富生动。景观廊道吊顶面采用半透明的材料配以精致的金属扣条,华灯初上,给建筑增加一抹别样的风采。
▼ 景观廊道灯光效果



室内空间,延续了书院风的风格,将多功能大楼梯和书柜相结合形成的主体空间,置于整个售楼处的中心,形成联系上下两层的主要交通互动空间,同时也充分享受最大的景观面,形成室内外视线上的连通。
▼ 室内空间延续了书院风的风格




▼ 细部设计


项目名称:天津鲁能泰山7号院展示区
地理位置:天津海河教育园区
结构:混凝土+钢结构
材料:防石涂料,三层中空灰玻,暖灰色铝板,仿铜铝板
建筑面积:3000㎡
设计单位:上海日清建筑设计有限公司
项目主创团队:李竞,马云鹏, 陈成,古佳鑫
文章作者:马云鹏
照片摄影:©是然建筑摄影