黄龙会办公会所,是北京瑞祥佳艺建筑装饰工程有限公司杭州分公司的一个项目,这个办公空间不同于传统办公室,以茶道会客为载体,将老总豁达心态和道法自然地为人态度展现其中,亦办公亦生活。

△前台效果图△
我们的设计方案
这是一间颇具特色的办公室,老板是个很有想法的人,是个有思想境界的人。设计以休闲办公为主题,告别传统意义上的办公空间需求,以三种质朴元素穿插其中。体现出老板的境界。

△会议室效果图△

△休息区效果图△
装修解决方案
接到项目的那天天气很热,瑞祥装饰设计师一大早就去项目量房。项目面积150平方米。作为办公室用不是很大,但是老板是个特别有想法的人。设计师勘察了两遍现场,重点对空调和消防做了详细的测量和记录。这样就可以更好的进行区域划分。一些地方可以作为遮挡。量房完毕后又对周边环境进行了勘察。

△周边环境及室内原始空间△

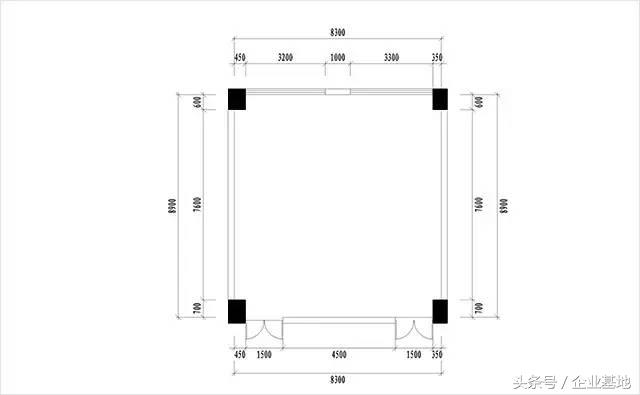
△原始结构平面图△
总经理办公室以插到会客为载体,将老总豁达心态和道法自然地为人态度展现其中,亦办公亦生活。配以传统木质花格:飞檐楼阁、雕梁画栋。背景以整幅壁布山水相映衬,周边暗藏灯带结构明显。顶底以仿古地砖和木质饰面以及原始裸顶为元素,“道法自然”不言而喻。

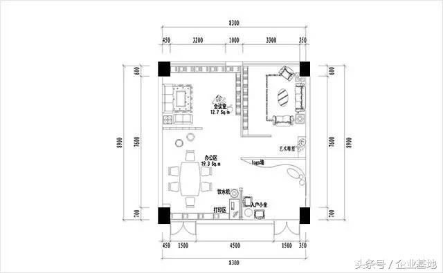
△一层平面解决方案△
直击施工现场
开工后,为了保证不出差错,我带设计图去到施工工地,给工人们详细讲解了一遍,又把其中的重点和难点讲解了一遍。尤其是工程的质量和工程进度。我再三给工人嘱咐,一定要保质保量,按时完工。看着工人们忙碌的身影,对于工程最后的效果,我非常有信心。

△施工现场及设计师赴现场指导△
竣工实拍图
工程如期竣工,客户验收后,非常满意。竣工后的效果真的不错。能在这种田园般的环境里工作,工作状态一定会很好。工程效果能这么好,离不开施工工人的努力。是团队所有人付出的成果。真的很感谢施工工人们。

△展示墙△

△休息区△

△办公区△

△办公区△

△办公区△

