房屋信息
楼盘名称 ·东原星樾
户型面积:45㎡
设计风格 :北欧
格局分布 :两室一厅一厨一卫
硬装设计 ·:刘璐
软装设计·:刘璐
整体费用 :12W
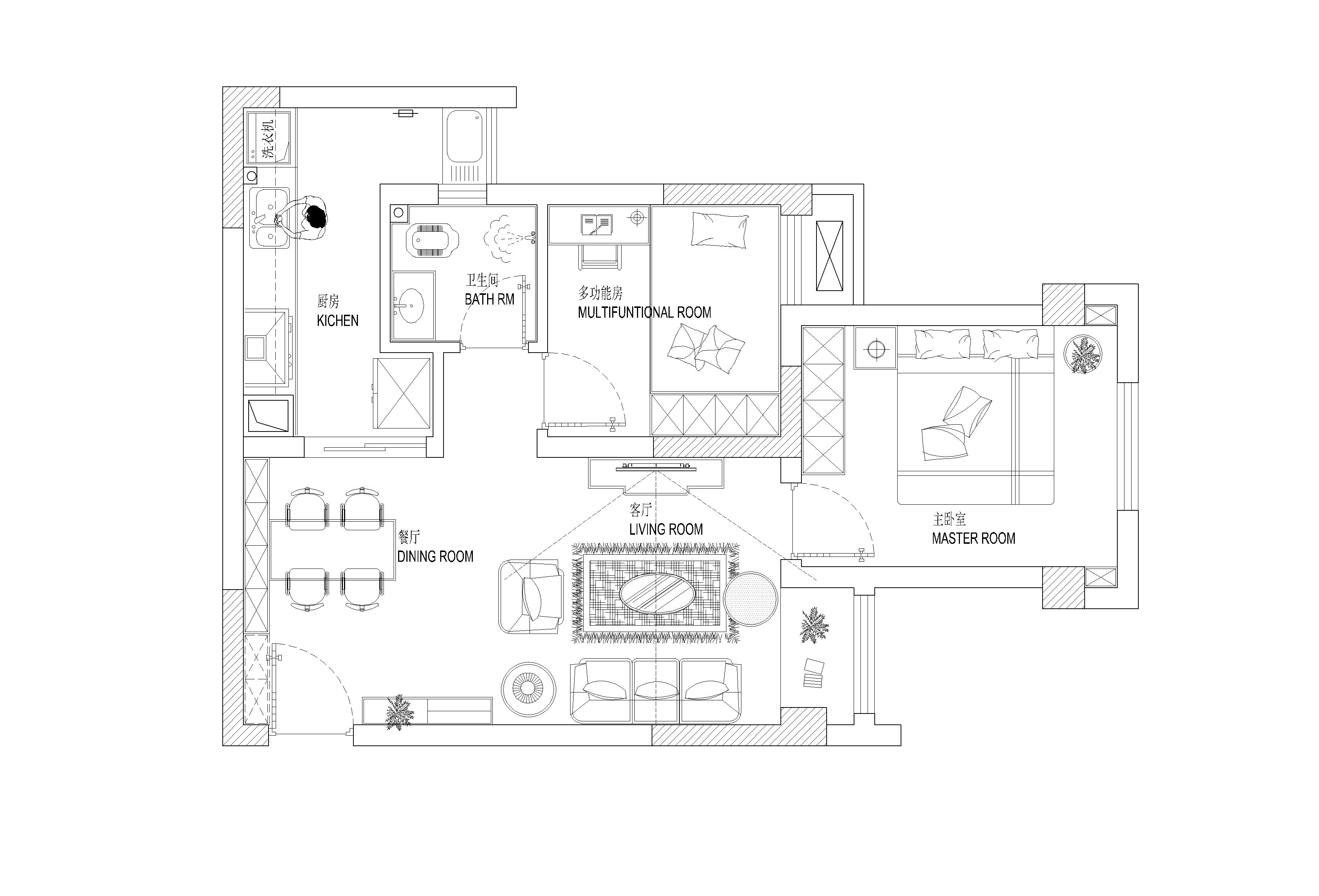
户型图


改造亮点:
打通厨房和生活阳台,空调机位既保留机位功能又增设洗衣槽,转角处考虑晾衣区,既增加采光,善用空间,又保留隐私。
客厅·living room

客厅以灰色为主,
粉色为点缀,
使空间色调更加可爱活,
圆形茶几是业主看书休闲的区域。


灰色系的沙发,
与整个客厅相互融合,
让你无论是躺着、还是坐着都舒服极致。
客厅的绿植给整个灰色系的客厅,增添了一点点色彩,
周末闲下来的时光,给植物浇浇花,品品茶,最好不过了。
餐厅·厨房 kitchen&dining room

为了使黑色的餐桌不显得很沉重,
设计师特意选了两把粉色的椅子,
两盏圆形磨砂玻璃吊灯,搭配丝绒餐布
与餐厅融合在一起恰到好处。
高级的灰色和烫金的英文更凸显精致和对生活的热爱,
在这样的餐桌上用餐都会有着温馨暖意。


厨房与生活阳台打通,使整个空间更大更宽,
业主下班回家,心情好的时候,
偶尔做个饭,研究一个菜系,是对自己最大的肯定。
周末约上三五好友,在家一起煮火锅,也非常的开心。
主卧·beedroom

整体简单大方,千鸟格的布艺床搭配床头清新十足的绿植,充满了朝气。
绿色床品和绿色拼接窗帘相互呼应,清新自然之感油然而生。

床头两边都内嵌了壁龛,既省空间又美观,
卧室的吊灯,选择的是不规则圆形,时尚又有品味。
墙面是业主喜爱的时下流行的网红脏粉色,满足了她的少女心,
为突出背景墙,其余颜色选用相对的灰色系,增加颜色层次感,
挂画也是设计师与业主一起精心挑选的。
次卧·beedroom

次卧的空间较小,设计师在这里选择了榻榻米,
为了满业主梳妆之需,特意做了书桌,
既能看书,也能当梳妆台使用,
榻榻米下面是储存柜,增加储物之能,
可爱俏皮的斑马头挂画做点缀,使整个空间都活跃起来了。
