导读
在公文写作时,你是否会遇到格式拿不准的情况。团团将《*党**政机关公文格式》国家标准分享给大家,在起草公文拿不准格式时,可以先直接对照国家标准最后的式样,还不能解决的,就要仔细查阅国家标准正文了。
为推进*党**政机关公文处理工作科学化、制度化、规范化,由中央办公厅、国务院办公厅于2012年4月16日印发了《*党**政机关公文处理工作条例》,并规定自2012年7月1日正式施行。
作为配套的文件,2012年6月29日,国家质量监督检验检疫总局、国家标准化管理委员会发布了《*党**政机关公文格式》国家标准(GB/T 9704-2012)。此标准是对国标《国家行政机关公文格式》(GB/T 9704-1999 )的修订,对公文用纸、印刷装订、格式要素、式样等作出了具体规定。特别是将*党**政机关公文用纸统一为国际标准A4型,首次统一了*党**政机关公文格式要素的编排规则,使*党**政机关公文的表现形式更加规范。
*党**政机关公文格式
1
范围
本标准规定了*党**政机关公文通用的纸张要求、排版和印制装订要求、公文格式各要素的编排规则,并给出了公文的式样。
本标准适用于各级*党**政机关制发的公文。其他机关和单位的公文可以参照执行。
使用少数民族文字印制的公文,其用纸、幅面尺寸及版面、印制等要求按照本标准执行,其余可以参照本标准并按照有关规定执行。
2
规范性引用文件
下列文件对于本标准的应用是必不可少的。凡是注日期的引用文件,仅所注日期的版本适用于本标准。凡是不注日期的引用文件,其最新版本(包括所有的修改单)适用于本标准。
GB/T 148 印刷、书写和绘图纸幅面尺寸
GB 3100 国际单位制及其应用
GB 3101 有关量、单位和符号的一般原则
GB 3102(所有部分) 量和单位
GB/T 15834 标点符号用法
GB/T 15835 出版物上数字用法
3
术语和定义
下列术语和定义适用于本标准。
3. 1 字 word
标示公文中横向距离的长度单位。在本标准中,一字指一个汉字宽度的距离。
3. 2 行 line
标示公文中纵向距离的长度单位。在本标准中,一行指一个汉字的高度加3号汉字高度的7/8的距离。
4
范围公文用纸主要技术指标
公文用纸一般使用纸张定量为60 g/m2~80 g/m2的胶版印刷纸或复印纸。纸张白度80%~90%,横向耐折度≥15次,不透明度≥85%,pH值为7.5~9.5。
5
公文用纸幅面尺寸及版面要求
5. 1 幅面尺寸
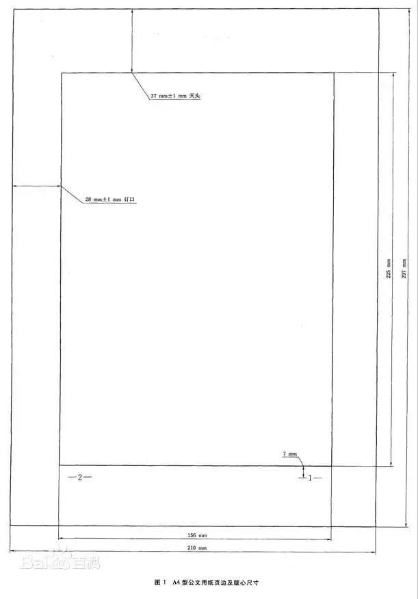
公文用纸采用GB/T 148中规定的A4型纸,其成品幅面尺寸为:210 mm×297 mm.
5.2 版面
5.2.1 页边与版心尺寸
公文用纸天头(上白边)为37 mm±1 mm,公文用纸订口(左白边)为28mm±1mm,版心尺寸为156 mm×225 mm.
5.2.2 字体和字号
如无特殊说明,公文格式各要素一般用3号仿宋体字。特定情况可以作适当调整。
5.2.3 行数和字数
一般每面排22行,每行排28个字,并撑满版心。特定情况可以作适当调整。
5.2.4 文字的颜色
如无特殊说明,公文中文字的颜色均为黑色。
6
印制装订要求
6.1 制版要求
版面干净无底灰,字迹清楚无断划,尺寸标准,版心不斜,误差不超过1 mm.
6.2 印刷要求
双面印刷;页码套正,两面误差不超过2mm.黑色油墨应当达到色谱所标BL100%,红色油墨应当达到色谱所标Y80%、M80%.印品着墨实、均匀;字面不花、不白、无断划。
6.3 装订要求
公文应当左侧装订,不掉页,两页页码之间误差不超过4 mm,裁切后的成品尺寸允许误差±2mm,四角成90°,无毛茬或缺损。
骑马订或平订的公文应当:
(a)订位为两钉外订眼距版面上下边缘各70mm处,允许误差±4mm;
(b)无坏钉、漏钉、重钉,钉脚平伏牢固;
(c)骑马订钉锯均订在折缝线上,平订钉锯与书脊间的距离为3mm--5mm.
包本装订公文的封皮(封面、书脊、封底)与书芯应吻合、包紧、包平、不脱落。
7
公文格式各要素编排规则
7.1 公文格式各要素的划分
本标准将版心内的公文格式各要素划分为版头、主体、版记三部分。公文首页红色分隔线以上的部分称为版头;公文首页红色分隔线(不含)以下、公文末页首条分隔线(不含)以上的部分称为主体;公文末页首条分隔线以下、末条分隔线以上的部分称为版记。
页码位于版心外。

7.2 版头
7.2.1 份号
如需标注份号,一般用6位3号阿拉伯数字,顶格编排在版心左上角第一行。
7.2.2 密级和保密期限
如需标注密级和保密期限,一般用3号黑体字,顶格编排在版心左上角第二行;保密期限中的数字用阿拉伯数字标注。
7.2.3 紧急程度
如需标注紧急程度,一般用3号黑体字,顶格编排在版心左上角;如需同时标注份号、密级和保密期限、紧急程度,按照份号、密级和保密期限、紧急程度的顺序自上而下分行排列。
7.2.4 发文机关标志
由发文机关全称或者规范化简称加"文件"二字组成,也可以使用发文机关全称或者规范化简称。
发文机关标志居中排布,上边缘至版心上边缘为35mm,推荐使用小标宋体字,颜色为红色,以醒目、美观、庄重为原则。
联合行文时,如需同时标注联署发文机关名称,一般应当将主办机关名称排列在前;如有"文件"二字,应当置于发文机关名称右侧,以联署发文机关名称为准上下居中排布。
7.2.5 发文字号
编排在发文机关标志下空二行位置,居中排布。年份、发文顺序号用阿拉伯数字标注;年份应标全称,用六角括号"〔〕"括入;发文顺序号不加"第"字,不编虚位(即1不编为01),在阿拉伯数字后加"号"字。
上行文的发文字号居左空一字编排,与最后一个签发人姓名处在同一行。
7.2.6 签发人
由"签发人"三字加全角冒号和签发人姓名组成,居右空一字,编排在发文机关标志下空二行位置。"签发人"三字用3号仿宋体字,签发人姓名用3号楷体字。
如有多个签发人,签发人姓名按照发文机关的排列顺序从左到右、自上而下依次均匀编排,一般每行排两个姓名,回行时与上一行第一个签发人姓名对齐。
7.2.7 版头中的分隔线
发文字号之下4mm处居中印一条与版心等宽的红色分隔线。
7.3 主体
7.3.1 标题
一般用2号小标宋体字,编排于红色分隔线下空二行位置,分一行或多行居中排布;回行时,要做到词意完整,排列对称,长短适宜,间距恰当,标题排列应当使用梯形或菱形。
7.3.2 主送机关
编排于标题下空一行位置,居左顶格,回行时仍顶格,最后一个机关名称后标全角冒号。如主送机关名称过多导致公文首页不能显示正文时,应当将主送机关名称移至版记,标注方法见7.4.2.
7.3.3 正文
公文首页必须显示正文。一般用3号仿宋体字,编排于主送机关名称下一行,每个自然段左空二字,回行顶格。文中结构层次序数依次可以用"一、""(一)""1.""(1)"标注;一般第一层用黑体字、第二层用楷体字、第三层和第四层用仿宋体字标注。
7.3.4 附件说明
如有附件,在正文下空一行左空二字编排"附件"二字,后标全角冒号和附件名称。如有多个附件,使用阿拉伯数字标注附件顺序号(如"附件:1. XXXXX");附件名称后不加标点符号。附件名称较长需回行时,应当与上一行附件名称的首字对齐。
7.3.5 发文机关署名、成文日期和印章
7.3.5.1 加盖印章的公文
成文日期一般右空四字编排,印章用红色,不得出现空白印章。
单一机关行文时,一般在成文日期之上、以成文日期为准居中编排发文机关署名,印章端正、居中下压发文机关署名和成文日期,使发文机关署名和成文日期居印章中心偏下位置,印章顶端应当上距正文(或附件说明)一行之内。
联合行文时,一般将各发文机关署名按照发文机关顺序整齐排列在相应位置,并将印章一一对应、端正、居中下压发文机关署名,最后一个印章端正、居中下压发文机关署名和成文日期,印章之间排列整齐、互不相交或相切,每排印章两端不得超出版心,首排印章顶端应当上距正文(或附件说明)一行之内。
7.3.5.2 不加盖印章的公文
单一机关行文时,在正文(或附件说明)下空一行右空二字编排发文机关署名,在发文机关署名下一行编排成文日期,首字比发文机关署名首字右移二字,如成文日期长于发文机关署名,应当使成文日期右空二字编排,并相应增加发文机关署名右空字数。
联合行文时,应当先编排主办机关署名,其余发文机关署名依次向下编排。
7.3.5.3 加盖签发人签名章的公文
单一机关制发的公文加盖签发人签名章时,在正文(或附件说明)下空二行右空四字加盖签发人签名章,签名章左空二字标注签发人职务,以签名章为准上下居中排布。在签发人签名章下空一行右空四字编排成文日期。
联合行文时,应当先编排主办机关签发人职务、签名章,其余机关签发人职务、签名章依次向下编排,与主办机关签发人职务、签名章上下对齐;每行只编排一个机关的签发人职务、签名章;签发人职务应当标注全称。
签名章一般用红色。
7.3.5.4 成文日期中的数字
用阿拉伯数字将年、月、日标全,年份应标全称,月、日不编虚位(即1不编为01)。
7.3.5.5 特殊情况说明
当公文排版后所剩空白处不能容下印章或签发人签名章、成文日期时,可以采取调整行距、字距的措施解决。
7.3.6 附注
如有附注,居左空二字加圆括号编排在成文日期下一行。
7.3.7 附件
附件应当另面编排,并在版记之前,与公文正文一起装订。"附件"二字及附件顺序号用3号黑体字顶格编排在版心左上角第一行。附件标题居中编排在版心第三行。附件顺序号和附件标题应当与附件说明的表述一致。附件格式要求同正文。
如附件与正文不能一起装订,应当在附件左上角第一行顶格编排公文的发文字号并在其后标注"附件"二字及附件顺序号。
7.4 版记
7.4.1 版记中的分隔线
版记中的分隔线与版心等宽,首条分隔线和末条分隔线用粗线(推荐高度为0. 35 mm),中间的分隔线用细线(推荐高度为0. 25 mm)。首条分隔线位于版记中第一个要素之上,末条分隔线与公文最后一面的版心下边缘重合。
7.4.2 抄送机关
如有抄送机关,一般用4号仿宋体字,在印发机关和印发日期之上一行、左右各空一字编排。"抄送"二字后加全角冒号和抄送机关名称,回行时与冒号后的首字对齐,最后一个抄送机关名称后标句号。
如需把主送机关移至版记,除将"抄送"二字改为"主送"外,编排方法同抄送机关。既有主送机关又有抄送机关时,应当将主送机关置于抄送机关之上一行,之间不加分隔线。
7.4.3 印发机关和印发日期
印发机关和印发日期一般用4号仿宋体字,编排在末条分隔线之上,印发机关左空一字,印发日期右空一字,用阿拉伯数字将年、月、日标全,年份应标全称,月、日不编虚位(即1不编为01),后加"印发"二字。
版记中如有其他要素,应当将其与印发机关和印发日期用一条细分隔线隔开。
7.5 页码
一般用4号半角宋体阿拉伯数字,编排在公文版心下边缘之下,数字左右各放一条一字线;一字线上距版心下边缘7 mm.单页码居右空一字,双页码居左空一字。公文的版记页前有空白页的,空白页和版记页均不编排页码。公文的附件与正文一起装订时,页码应当连续编排。
8
公文中的横排表格
A4纸型的表格横排时,页码位置与公文其他页码保持一致,单页码表头在订口一边,双页码表头在切口一边。
9
公文中计量单位、标点符号
和数字的用法
公文中计量单位的用法应当符合GB 3100、GB 3101和GB 3102(所有部分),标点符号的用法应当符合GB/T 15834,数字用法应当符合GB/T 15835.
10
公文的特定格式
10.1 信函格式
发文机关标志使用发文机关全称或者规范化简称,居中排布,上边缘至上页边为30mm,推荐使用红色小标宋体字。联合行文时,使用主办机关标志。
发文机关标志下4 mm处印一条红色双线(上粗下细),距下页边20 mm处印一条红色双线(上细下粗),线长均为170 mm,居中排布。
如需标注份号、密级和保密期限、紧急程度,应当顶格居版心左边缘编排在第一条红色双线下,按照份号、密级和保密期限、紧急程度的顺序自上而下分行排列,第一个要素与该线的距离为3号汉字高度的7/8.
发文字号顶格居版心右边缘编排在第一条红色双线下,与该线的距离为3号汉字高度的7/8.
标题居中编排,与其上最后一个要素相距二行。
第二条红色双线上一行如有文字,与该线的距离为3号汉字高度的7/8.
首页不显示页码。
版记不加印发机关和印发日期、分隔线,位于公文最后一面版心内最下方。
10.2 命令(令)格式
发文机关标志由发文机关全称加"命令"或"令"字组成,居中排布,上边缘至版心上边缘为20 mm,推荐使用红色小标宋体字。
发文机关标志下空二行居中编排令号,令号下空二行编排正文。
签发人职务、签名章和成文日期的编排见7. 3. 5. 3.
10.3 纪要格式
纪要标志由"XXXXX纪要"组成,居中排布,上边缘至版心上边缘为35 mm,推荐使用红色小标宋体字。
标注出席人员名单,一般用3号黑体字,在正文或附件说明下空一行左空二字编排"出席"二字,后标全角冒号,冒号后用3号仿宋体字标注出席人单位、姓名,回行时与冒号后的首字对齐。
标注请假和列席人员名单,除依次另起一行并将"出席"二字改为"请假"或"列席"外,编排方法同出席人员名单。
纪要格式可以根据实际制定。
11
式样
A4型公文用纸页边及版心尺寸见图1;公文首页版式见图2;联合行文公文首页版式1见图3;联合行文公文首页版式2见图4;公文末页版式1见图5;公文末页版式2见图6;联合行文公文末页版式1见图7;联合行文公文末页版式2见图8;附件说明页版式见图9;带附件公文末页版式见图10;信函格式首页版式见图11;命令(令)格式首页版式见图12。
图1:A4型公文用纸页边及版心尺寸↓↓

图2:公文首页版式↓↓

图3:联合行文公文首页版式1↓↓

图4:联合行文公文首页版式2↓↓

图5:公文末页版式1↓↓

图6:公文末页版式2↓↓

图7:联合行文公文末页版式1↓↓

图8:联合行文公文末页版式2↓↓

图9:附件说明页版式↓↓

图10:带附件公文末页版式↓↓

图11:信函格式首页版式↓↓

图12:命令(令)格式首页版式↓↓

觉得有用
就分享给更多的小伙伴吧
转自:共青团中央