说在前面
这次改造始于业主的生活需求和生活状态,基于实用主义,实现了空间、功能、质感、情绪的统一。
除此以外,消除了所有多余和不必要的细节,只留下对简约和空间的思考。然而,这种简单中却隐藏着复杂的层次和纹理,整个空间在简约的外表下呈现出微妙和复杂。
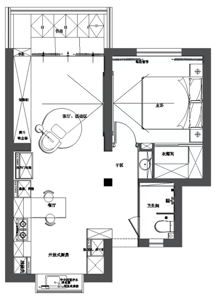
原始户型中,空间划分不合理,光卧室就占据了室内的三分之二的空间,剩余的需要容纳所有的公共空间,就显得非常拥挤。
改造中,极大可能的拆除可以拆除的隔墙,增加公共区域的面积,让生活更加舒适与宽敞。
户型图

原始户型图

▲户型布局方案
原本两卧室间的墙和阳台的隔墙都被完全拆除后,得到更加宽敞的空间。
将扩充的空间留给公共区域,用白净的墙面与木质地板,来作为清爽舒缓空间的基础。
玄关

通过墙体的改动优化了布局,让空间变得更加通透美观且实用。采用了大面积的白色,简洁又质朴,营造出舒适休闲的居家氛围。
客厅

清晰可见的横梁部分是原先阳台的布局,如今已经成为客厅延伸的使用区域了,纱帘后面是书房区域,视线内没有多余的杂物,“不该出现”的东东都被妥当的收纳在柜体里。
客厅具备了包容度的空间可塑性,在具象与抽象之间形成微妙的平衡,以模糊的、留白的方式,让更多遐想的生活在这里成为可能。

没有客厅的定义,更多的对居者生活状态的表达,慵懒的在按摩椅上看电视,放松,也可以拿起一本书阅读,或者发呆,看手机。静谧的生活场所,平静、自然、阳光,一个真正属于自己的生活空间。
厨房

作为改造的重点,设计师将厨房与餐厅和客厅相连,合并成一个大空间,并通过空间两侧引入自然光,促成空气循环,创造出微风轻拂的室内环境。没有餐台的定义,将餐桌操作台与用餐功能进行融合,是餐台,是水吧,是咖啡吧,更多的是对生活状态的表达,也让一日三餐的餐台使用率大大的提高。
业主经常需要在家办公,对于饮水的要求很高,经常冲泡咖啡、果汁、茶饮等。她选择的这款美的智控烧水壶有六档智能控温功能,同时支持自来水和矿泉水两种煮水模式,可以满足她冲泡不同饮品对温度及水质的各类需求。5L的大容量让她告别频繁烧水,省时省心,深邃的蓝色圆润的机身也是非常戳“颜值控”的小姐姐。
【美的P12Q】美的(Midea)电热水瓶热水壶电水壶304不锈钢水壶热水瓶多段智温控电水壶烧水壶P12Q【行情 报价 价格 评测】-京东

水槽区的上方设置明装筒灯,方便光线不好的时候独立照明。

以L形组织的厨房空间,如今也已改造一新,集操作台、壁柜、蒸烤箱与一体的设备模块组成的U形厨房核心空间。动线合理流畅,原先拥挤的厨餐厅,如今也扩大后很多,同时也是宽敞的独立工作间,此外,还为厨房留出了更多的储存空间,并将立面打开赢得更大的采光,使厨房以更加开放的姿态面向整个室内空间。一扫对厨房潮湿、油烟的印象,在家一样可以整洁、优雅的做饭。
虽是一人独居,业主却是是烹饪爱好者,“道具”一定要全,冰箱容量也不能小。整体空间色调为白色,黑色加深对比感和线条感,因此电器选择了黑色,冰箱也不例外,海尔这款531升变频冰箱完美满足了容量大,颜值高的要求与整体空间十分适配。另外业主酷爱保养,有不少类似燕窝、红参冲剂等保养品,这款冰箱特有的母婴母婴储藏功能让她保存这些物品有了专门空间同时也完美保鲜。
厨房一整排的柜子一直延伸到阳台,深度为60cm,因此冰箱如果过深则会非常突兀,海尔这款冰箱虽然容量大但深度仅为64.7cm不会突出太多。
【海尔BCD-531WGHSS5ED9U1】海尔(Haier)531升星蕴系列一级能效双开对开门家用电冰箱超薄无霜净味母婴BCD-531WGHSS5ED9U1超大容量分储【行情 报价 价格 评测】-京东
一个人居住美食也不可辜负,业主介绍她的“神器“”摩飞多功能料理锅,集煎烤蒸、炖涮焖烙于一体。因为工作原因居家办公时间比较多,准备好食材,点好预约就可以去安心办公,更有智能菜单,饭点一到就是享受美食的时刻,有滋有味的独居生活令人羡慕不已。
【摩飞电器MR9099】摩飞(Morphyrichards)二代多功能锅多用途料理锅电火锅电烧烤肉锅 涮蒸煮炒煎烤一体电炒锅电煮锅MR9099绿【行情 报价 价格 评测】-京东
卫生间

站在厨房望向对面即是卫生间区域,经改造后狭小的卫生间拥有了干湿分离。卫生间原始是暗卫,加上一人居住,因此没有砌墙而是选择了具有隐私的玻璃形式,显得空间通透开阔。不能拆除的立柱处理成拱形门洞的形式有种透视的既视感。

卫生间内部墙地砖也是纯白色,壁龛非常实用。
卧室

卧室在改动后虽然缩小了宽度,满足1.8的双人床,同时增加了衣帽间,所以在使用上宽敞感丝毫不受影响。卧室的实木质感的木地板,,脚底与木地板的自然质感进行接触,这样的纱帘让阳光透入,恰到好处,给人一种柔和与轻盈。

背景用了白色的格栅,搭配局部的点光源。

材料以柔和为目的,整体以白色的乳胶漆搭配小面积的木质感,干净自然的同时传达了材料本身。