装修原因
现在住的房子是老爸的养老房,准备老爸退休的时候住的。当时老爸没有退休,我也没有结婚,所以就装着自己住。后来结婚了,和老婆商量准备以后有了宝宝,把自己的毛坯房装修了,然后搬过去住,正好20年底有了喜讯,就和老婆商量开始装修。这个主要是自己记录一下装修之旅。
PS:修改了6版,平面图已经于2021.1.21定稿。
开始-设计师选择
现在住的房子装修时,是自己根据网上找的图,然后结合自己的想法,然后找的工人弄的,风格感觉乱七八糟的(老婆觉得还行),所以打算找个设计师帮忙弄弄。本地找了一下,基本上报价都是100/m2,摸摸自己的口袋,和媳妇商量了一下,就去了X宝看了下,因为是个三四线的小城,只能从邻近的大都会找设计师,问了一圈,都不带上门量房,只支持在线,左挑右挑最后找了一个设计师,上门量房带平面图施工图效果图一共4300,折下来差不多30/m2(建筑面积143m2)。约好了一个周六设计师上门量房之后跟设计师简单把需求讲了下,然后设计师回去很快就出了原始图和第一版设计图。
原始图

需求:
1.洗衣机+烘干机需要放置在离厕所比较近的地方:现在的家里是使用洗烘一体+电动晾衣架,几年下来,使用频率高的是洗衣烘干功能,因此媳妇的底线要求洗衣机必须放置在离厕所进的地方,这样她就可以洗完澡直接丢洗衣机,然后烘干后早上起来直接穿了。
2.希望厨房和餐厅/北阳台有个吧台:平时就两个人,炒菜吃饭并不多,所以希望可以在厨房附近有个小吧台,这样两个人烧好了就可以就近吃,以后有了宝宝3个人应该也够的。
3.主卧厕所希望能有一个浴缸。
4.家里的柜子能多一点,不用的东西可以塞到柜子里。
然后设计师根据我们的初步交流和她自己的经验,做了两个方案:
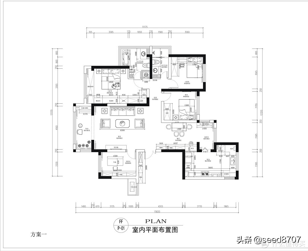
第一版方案1:

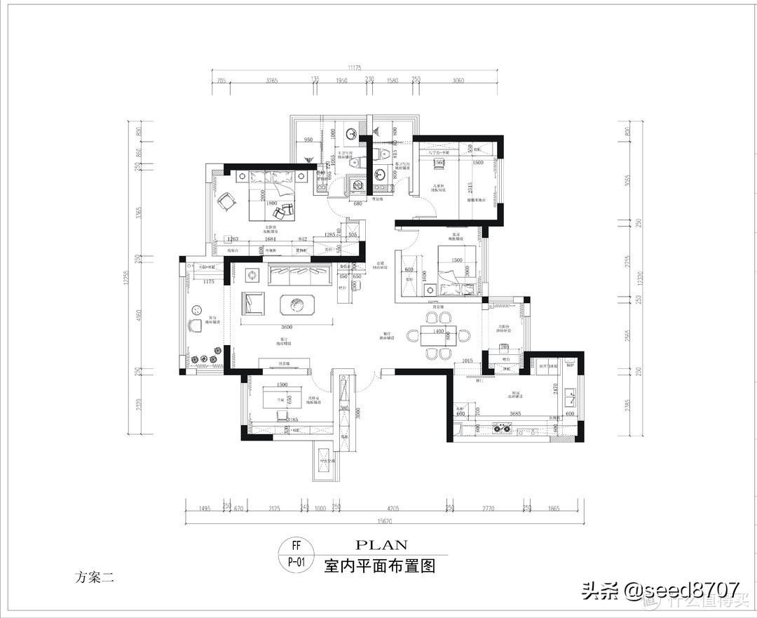
第一版方案2:

洗衣房的需求:整体上是把主卧的卫生间重新做一个拆砌墙,做出来一个洗衣房,然后把主卧门向内延伸。
吧台的需求:方案一是将原本餐厅和厨房的门的位置做吧台,同一侧的墙打一排柜子。方案二是放在了北阳台和厨房的窗户处,把窗户打掉。
浴缸的需求:方案一在主卧做了浴缸,方案二是做了淋浴间。
柜子的需求:主要是主卧的衣帽间和卧室的墙打掉了,然后做了一排柜子;还有就是门口打了一排鞋柜,其他的位置如书房,客卧,阳台等都是正常的放柜子。