“面朝大海,春暖花开”
在海子的抒情诗中,
这是一幅多么自由、淳朴的画卷~

面朝大海


清晨


傍晚



夜景

场地条件高低错落,海景风光如画,我们围绕着如何把海景引入室内,关心着房子里的人如何多角度的“看景”,考虑室内空间合理化,符合当代社交空间尺度。另外新房子用了钢筋混凝土为主要的结构,结构与空间完整统一,没有过多装饰,用混凝土作为构造与装饰,主要也是为了抵御海洋的极端气候所带来的侵蚀。

起居室
客厅里简单大方的棉麻质感沙发配上自然敦实的原木茶几,一枝插放在茶几桌上干净清透花瓶中的绿植,像在努力舒展着自己也在享受这份不一样的舒适。壁炉里的火苗似乎也正面对着大海在舒缓的舞蹈,使得原本看似冰冷的混凝土建筑也温暖起来。

餐厅




风雨廊

上楼梯看向主卧室



主卧室

洗手间


休息区
室内软装的搭配结合整体建筑及环境,没有多余的修饰物件,没有跳跃的色彩。整体质地纯朴,色调素雅给人予闲适之感。

一层庭院看向客房

二层庭院

上下建筑连接处

顶层平台上的日出
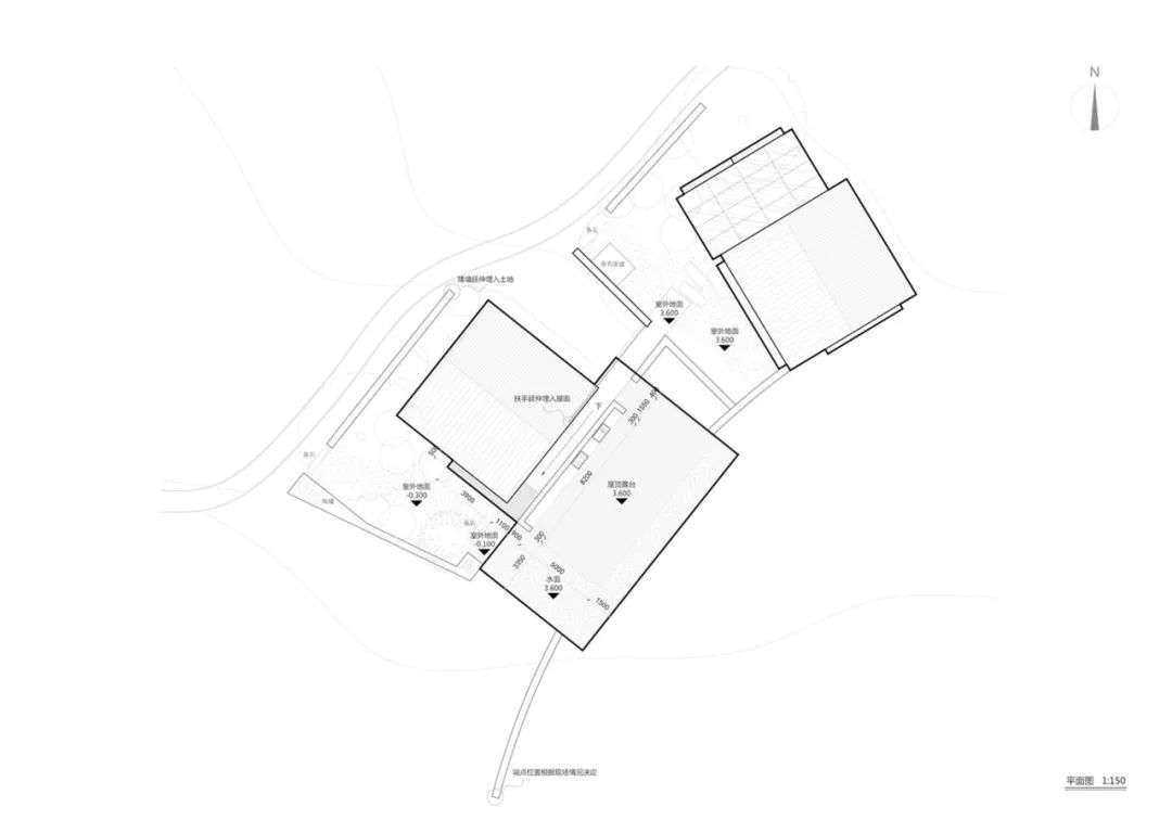
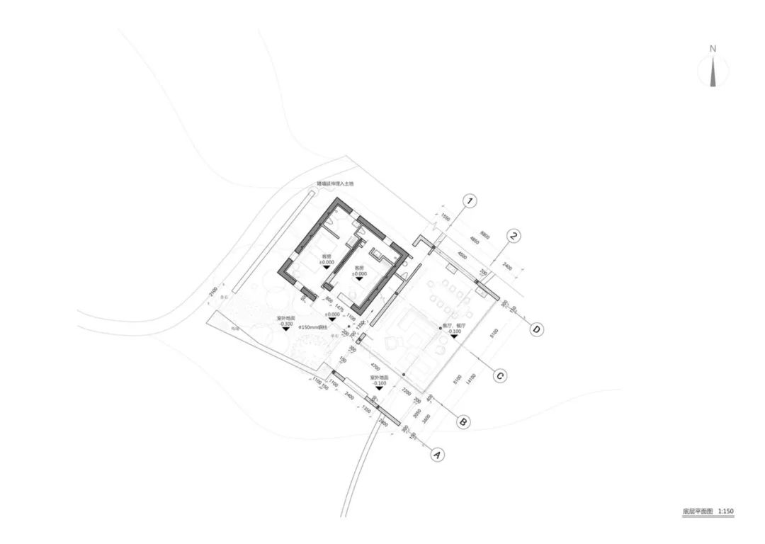
由面朝大海新建的钢筋混凝土“盒子“组成,上下两个庭院,上坡主人房与下坡两间客房分开,以新建”盒子“的空间为纽带,作为共同的社交居家空间。


房屋改造前



改造后平面图
项目信息
设计公司名称:
空间进化(北京)建筑设计有限公司(建筑设计/室内设计)
彩虹石(北京)空间设计有限公司(陈设设计)
项目名称:《漂亮的房子》舟山云海苑
项目地点:浙江省,舟山
项目面积:约265平方米