装修需要适时做出一些改变,比如客厅,以往都是沙发+茶几+电视柜的组合,但随着生活方式改变,多多少少有了一些变化。例如去客厅化、不要茶几、不要电视柜等等。物件虽然在减少,但并不影响日常生活。不信?看看这期案例分享,90 ㎡的三居室,屋主是位 90后单身男青年,对于新房有属于自己的审美,灰色定调现代简约风,舍弃电视柜直接做定制设计,美观实用、漂亮大气。
房屋基础信息
项目面积:90㎡
项目地址:广东广州
项目设计: 居研设计

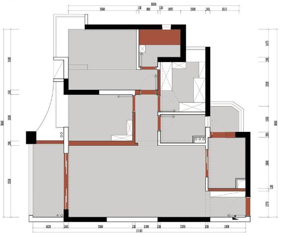
原始结构图
原户型为三房一厅布局,空间分布大体上还不错,但厨房面积过于紧凑,影响日常烹饪使用。其次,现有卧室结构,不符合屋主的生活方式。

装修布置图
结合屋主诉求和实际空间情况,做出如下改造:
1、首先是厨房,将生活阳台并入厨房,扩大使用面积,采光也更好更直接;
2、餐厅取消了常规餐桌布置,以吧台的形式出现,个性时尚又满足日常用餐需求;
3、将主卧门外推,与紧邻的卧室合并,打造成套房形式,增加了书房和衣帽间的功能。

玄关设计
玄关走廊比较狭长一些,装修上避免了繁杂设计,以简洁实用为主,让空间不显拥挤。为了完善玄关功能,换鞋凳打造成卡座形式,和鞋柜一样采取嵌入式设计,美观实用两不误。鞋柜底部特意做了留空设计,可以摆放进出常用穿鞋,节省了寻找的时间。

客厅设计
客厅个性鲜明,以灰色系定调现代简约风,利用天然纹理和质朴色调营造空间质感,非常符合男性对居家的审美,再搭配上浅色调软装,简洁静谧又舒适。盆栽绿植点缀,多了几分自然活力气息,让空间不过于冷冽。

电视墙设计很实用,简约有型的电视柜,不仅为客厅提供了收纳空间,还丰富了空间背景,同时不需要再购买电视柜,整洁又不显突兀,空间还宽敞。相比电视柜,我更倾向于这种做法。

餐厅设计
餐厅取消了常规的布局设计,将餐桌椅子替换成了吧台和吧台椅,个性时尚又能满足日常需求,可以是餐桌、可以是办公桌、还可以是休闲区。简洁宽敞的设计,让居家动线更为宽松流畅。

厨房设计
原有厨房空间太小,日常烹饪多有不便,装修的时候,将生活阳台纳入厨房,扩大厨房使用面积,同时采光也更加直接。鉴于厨房采光,整体以浅色调为主,有利于提高厨房空间亮度。

卫生间设计
卫生间放下对“性冷淡”风格的偏见,以黑白灰为基调,简约的材质、简单的色彩、诠释了整洁干净的空间。浴室柜设计略有不同,台盆与收纳分离式结构,多了几分层次与通透。

主卧设计
改造后的卧室,由于合并了主卧和紧邻的卧室,空间变得很宽松。硬装设计虽然很简约,但也是花了不少小心思的。背景墙以墨绿色为主,搭配线性吊灯,简约时尚又有几分静谧质感。靠窗设计了储物柜和地柜,美观收纳两不误。

原来的小卧室,合并后改造成了书房和衣帽间,让主卧功能更加完善。衣柜到顶设计,局部开放延展出悬挂书桌,简洁实用又不呆板。加上墨绿色背景墙加持,整体很耐看。

次卧设计
次卧采用定制设计,打造成多功能房。延续了整体简约风格,黑白经典配色,加上一抹优雅天空蓝做跳色,丰富空间色彩又多了几分活泼质感。

以上就是这期案例分享,不得不说虽然减少了一些物件,但通过另一种方式取代,呈现不一样的视觉和设计效果。并没有因为物件减少,而影响日常生活,还是很值得借鉴。