
农村盖房子宅地都是有限制的,自家那么大的一块宅基地不能再往大了弄,而且还不能变更购买,如果家里人不多,倒也还行,盖一栋二三层小房子出来很是实用;但万一要是家里人多还有车,总不可能在这么小的一块宅基地上又设计了车库吧,不实用,要我说,还是弄个地下车库最好,不占地又实用,还划算,特别适合农村人。
平面布局图:
地下车库层没有什么好说的,就是一个停靠车辆的地方,重点在于地面空间。

别墅占地12x13.6米,占地面积133平方米,建筑面积431平方米,不算地下层的话是三层的户型设计,对农村人来说的确够用了,卧室数量也多,不怕出现家里人多不够住的情况。



户型二:

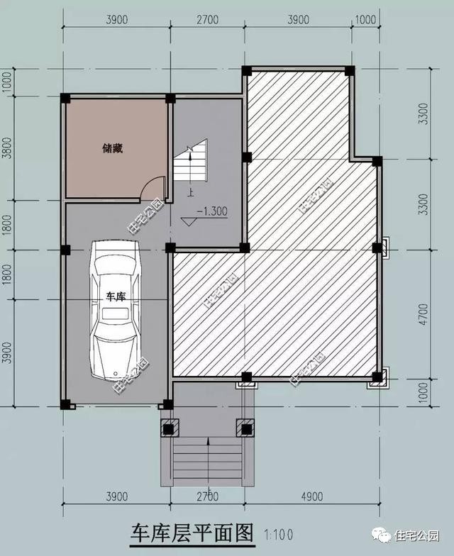
平面布局图:
第二套户型的地下层设计,比户型一布局要更加精致,户型一只是单纯的车库设计,户型二则是以车库为主要元素,并伴随多种储藏空间设计,一点都不浪费这点空间,很是经典。



微信公众号:住宅公园,450套别墅图纸,户型私人定制!