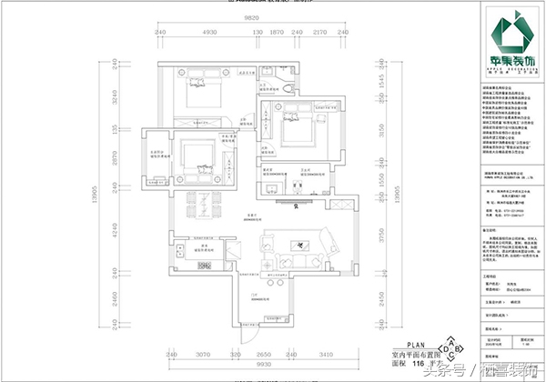
【楼盘名称】田心公馆
【装修面积】116㎡
【装修户型】三居室
【装修风格】现代风格
【设 计 师】杨欣洁
户型分析及方案介绍

虽然该户型的通透性不是太好,但是房屋的房间面积够大,同时飘窗和阳台更是拓宽了原有的空间和视野,让居住的舒展性更好。

整套房子的格局布置得错落有致,每一个大大小小的空间都被充分的利用,不管是每个空间的木制作,还是家居摆放的位置,以及需要的尺寸,都被考虑在内,包括玄关处放冰箱的卡槽,也是精心设计的,这样提前准备好所有的生活功能需求,让装修变得事半功倍,之后的生活也会更加方便舒适。
效果图

高冷的灰黑色调并没有让餐厅变得没有情调,反而因为木质背景墙中的纹路散发出来的自然气息变得雅致而舒适,餐桌椅的简洁让用餐环境多了一份浪漫的情致。

电视背景墙用大理石的纹路和灰色木质长条板错落有致的布置,让现代的石质材料和原始的木质材料相结合,透过材料的纹路自成背景画,高档而有格调,加上黑色布艺沙发在着色上的沉淀,更加透出一股沉稳与自信。

沿袭客餐厅的灰黑色调和高冷雅致风情,在床头柜的灯具上大做文章,让错落有致的相片墙诠释一份对生活的热爱。

现代风格的感觉需要黑色的沉稳,也需要白色的跳跃,更加需要木质的清新,这三种元素的结合让卧室变得舒适而高档。

纵观屋内,不管是一片砖一片瓦还是一寸局部改造,都是建立在有效沟通的基础上的。入户处的鞋柜和穿鞋凳让进出变得人性化,进门处的冰箱有大小合适的卡槽放置,且位置紧邻厨房,使用方便,耐看美观;次卫的干湿分离让使用者更方便,而书房的地毯、沙发和洗衣机、阳台让其他空间腾出位置给予更加开阔的居住体验,这些大小细节的考虑都是为了让生活更加方便,让室内的每一个空间都得到充分利用。
更多装修案例请关注:栖喜装饰官网