所在楼盘:万科缇香郡
装修风格:现代风格
套内面积:86.69㎡
工程造价:14.7万元
今天小编和大家分享的还是现代风格,相信一直关注我朋友们应该会发现个问题,小编比较推荐现代简约风格,因为这也确实,现代简约风简单大气又不容易过时。也是追求时尚与潮流、非常注重居室空间的布局与使用功能的完美结合,更是比较流行的一种风格。

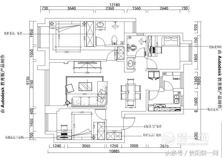
户型图

现代风格86.69平米装修效果图,客餐厅

现代风格86.69平米装修效果图,电视背景墙

现代风格86.69平米装修效果图,餐厅

现代风格86.69平米装修效果图,客厅

现代风格86.69平米装修效果图,客厅

现代风格86.69平米装修效果图,客厅
如您已经开始筹备家中装修了,还需要更多专业家装知识,请上贵阳装一网。
☟☟☟点击下面的图片,算算自己装修要花多少钱。
免费为您提供专业家装服务,提供免费上门量房、出设计方案。
你还需要犹豫什么呢?