这是一座位于西好莱坞日落广场边缘的别墅,你会喜欢这里,过着像西好莱坞明星一般的生活。

从洛杉矶市中心一直到圣塔莫尼卡你都能看到太平洋那令人惊叹的风光,这一片都是旅游度假
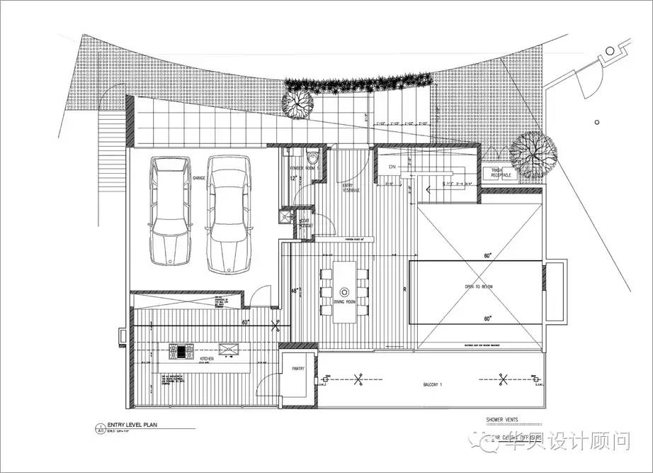
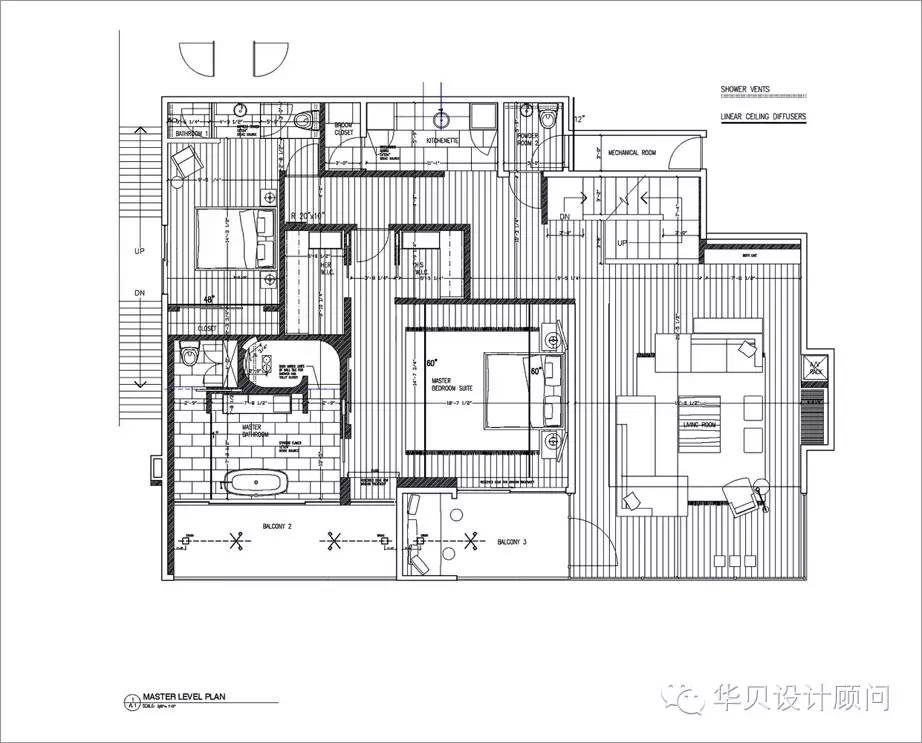
休闲胜地。该建筑的面积为5600多平方英尺,并经过的豪华装饰,配备了最现代化的设施。
室内设计师 Dominic Gasparoly和建筑师 Khalid Watson分别来自纽约和洛杉矶,他们共同设计
出了这个迷人的4层住宅。

开车来到山顶时,角墙和它的悬垂部分对来访的客人呈现出欢迎的姿态,而直墙则将客人引进主大厅。跨过门槛后,人们感觉就好像是从地面来到了云中。设计采用了极简设计方式,并使用了富有纹理的混合材料。


这是一个能够给你带来活力的住宅。这里的家庭生活充满了娱乐性。房子的后面是一块薄的游泳池甲板,与傍边的山峰形成了巨大的反差。


该建筑就像一艘大船,白色的悬臂式结构是向勒·柯布西耶致敬。GWdesign事务所的这个项目在完成过程中形成一种罕见的感觉:真正的情感。可以为它而放弃好莱坞的生活。


缩放书架是对这些书籍和艺术品的尊重。

墙上的天窗带来的光线照在了有墙内扶手的楼梯上,从这里可以上到2层。在宽敞的客厅里浩瀚的太平洋一览无遗。


厨房位于它的中心岛位置,拥有全景的窗户,其立面上的橱柜都是由感性的暗色橡木打造。







无论你的心情怎样,你都可以在健身房出一身汗,在蒸汽淋浴房,桑拿房,或游泳池泡上一天......或者,如果你可以在家庭影院看上一天的电影...


在主浴室里,也采用了大型镜面,以保持设计上的一致性。



