《萌娃堂》国际早教中心 丨 无非设计
设计公司:无非设计(深圳)
主创设计师:曹博文、张珊珊
设计团队:曹博文、张珊珊、薛茵琦、陈小北、
项目地址:佛山,中国
项目面积:860.0 平方米
完工时间:2019年5月
主材:木纹铝板、马赛克、艺术涂料、木饰面
摄影:DAVEN
设计是一颗启迪智慧的种子,是一把打开创意之门的钥匙。为此,我们为创造不平凡而践行努力,让世界充满爱与欢笑,不断前行。我们试图用设计师的方式向孩子们传递那一份无私的爱,赋予日常崭新的魅力,展望未来。

担纲本次项目的设计方,我们期盼着将一个自由奔跑的场景带入儿童的小小世界。让每个孩子的未来个性张扬、天马行空,这既是品牌方希望传递的价值初心,也是我们从设计角度进行的全新解读。

契合于自由活跃的设计理念,“无边界秩序”的创作灵感逼仄于心。“半圆”与“方形”的设计作为视觉传达符号,交错纵横,一个无规则的立体互动空间呼之欲出,无边界设计的畅游美感在眼前跃然灵动。

入门处,弧形廊道、线形灯条,极强的现代感完美引出梦幻的仪式感。步入门厅、穿过前台、行进内堂,节奏有序的空间感使人好似音符徜徉于线谱,悠然自得。在本次项目设计中,摈弃传统早教中心的多彩配色和具象元素,选取单一的纯白作为空间主色调,融合些许木色,织就一张温馨舒适的色彩网,缀以“明黄”画龙点睛,突显品牌主色。


大堂活动区,整个中心最具亮点的空间。活动区围绕着两根边长一米宽的承重柱徐徐展开,梁柱处于三七分割点位,自然建立起两个趣味立体空间,一条“S”形奔跑路径、两条环形奔跑动线进而形成,艺术性与实用性完美兼容。担负直接架空的“U”形屋的承重柱,成功“偷梁换柱”、由方变圆,楼梯踏步由此旋转而上,再加上屋内的五十公分圆洞,一条三维运动“探险”线路绝对会是孩子的最爱。










中间位置设计一座弧形书屋,柜体从墙面延续到天花,形成阵列感,书屋下面设置一个小舞台,便利孩子活动舞台演出。活动区后端的童趣屋,创造性地建立起“爬梯-探视-交流-攀爬-滑滑梯”的无边界游玩路径,自由而充满趣味。在看似没有边界的空间里,形成了特定的秩序,无形中训练提升了孩子的运动、观察、交流、合作和协调能力。






教室在最大可能优先考虑通风与采光的基础上,于近窗边设置一级松木台阶,孩子们既能坐下聆听老师讲课,还能时而仰望精彩的外面世界。前后两间大教室设计为不同的上课模式做足了“功课”。南面联排三个教室,日常课程可独立安排,教室之间是折叠吊趟门,如有活动需要,可完全打通一个独立大空间,满足三个班的交叉课程运用。此外,它还能随时“变”成亲子室、活动区、表演现场、大型讲堂、多功能厅,满足各种需求。左右两边柜体上设计烤漆玻璃,可用作教学白板,教室与廊道之间的墙面设置通透的圆形凹洞,为孩子的室内活动增加别样的趣味。






空间手绘草图

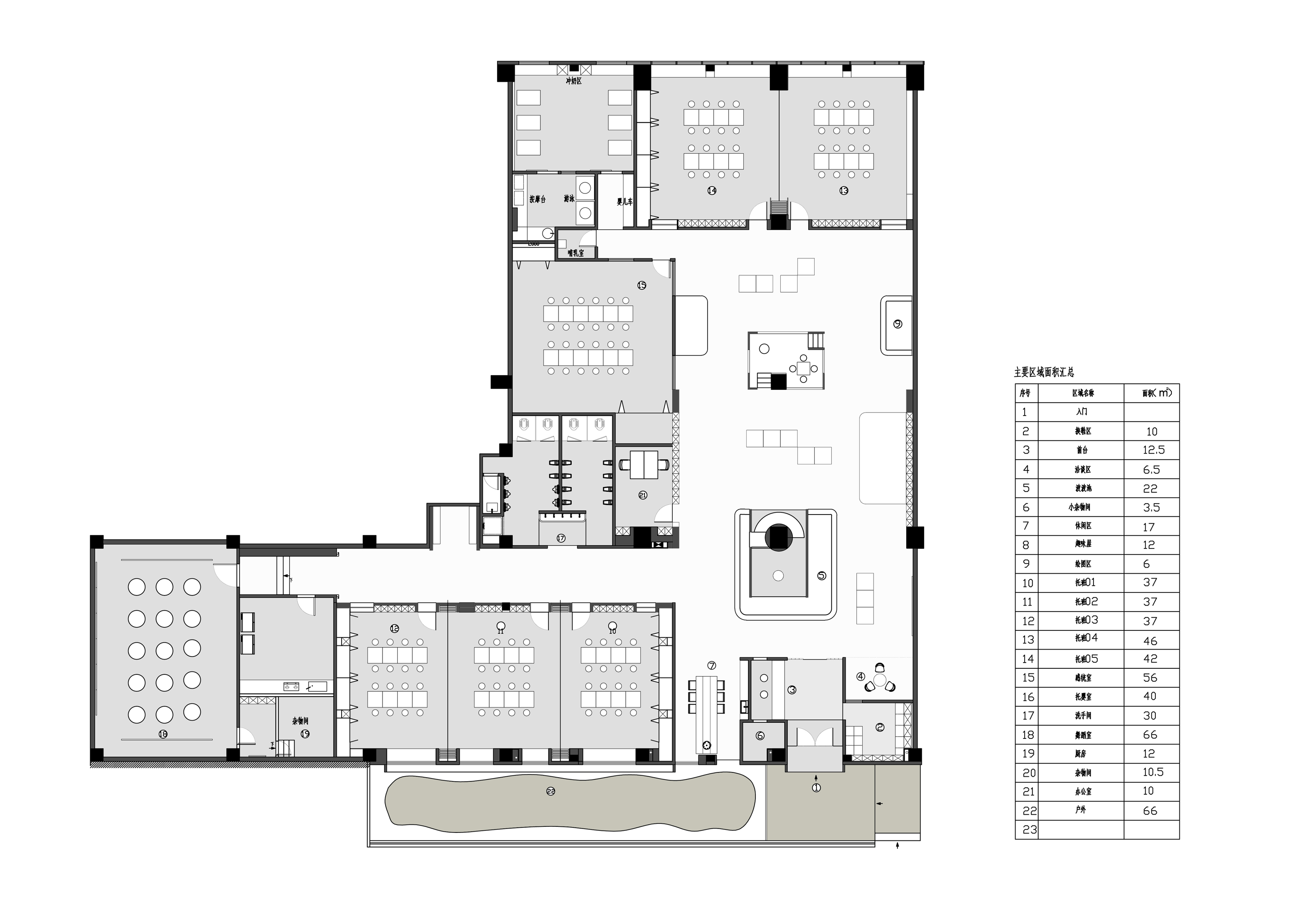
平面布局图
