
中式简约主义风格也就是一种简朴淡雅式风格,在西方现代简约主义风格基础之上融入中国国情、民族文化、风土人情,以简洁明快为其主要特色的表现形式来满足人们对空间环境那种感性的、本能的和理性的需求,重视室内空间的使用效能,强调室内布置应按功能区域划分,家具布置与空间密切配合;主张废弃传统中式分格多余的、繁琐的附加装饰,使用新材料、新工艺,使室内景观显得简洁、明快,完美地反映出“少就是多”这一设计概念。

浮世中,总希望能拥有一方净土,没有过多的矫揉,是心灵的归属,是生活的舒适。愿岁月静好,在过往的时光中,总期望能够将过往的美好留下,让人在喧闹的都市生活中找到属于自己的乌托邦。
作为坚持追寻情感与空间关系的设计者来说,设计师希望带给业主不仅仅是家居功能的实用与适用,更多的是心灵的慰藉。
本案业主是一对50岁左右的夫妻,他们拥有较高的审美情趣和生活品味,希望能在家中享受岁月的温情,所以设计师摒弃了传统中式设计的复杂与繁琐,将现代元素与传统文化作为设计的语言,将传统中的经典做保留,少了一份都市物质,多了一份田园雅致。儿童房中,多了天空的蓝色,纯洁的白色,整体色调年轻起来,温馨轻松,床下的地毯可以让家人与孩子更好地交流。

三楼在卧室的设计当中,简约主义理念充分考虑卧室空间的特殊性,注重私密性和舒适性,家具陈设仍采用直线条,简洁富有质感。色彩统一和谐,能使人的心情更加放松、创造一种安宁、平静的生活空间。
以净澈写意,以素雅赋题,把淡淡的古典韵雅致绽,氤氲起一袭暖香,清宁无尘……从传统元素中的造型、寓意、神韵方面经过高度提炼、巧妙组合、内涵延伸,并将其融入在现代审美体系之中,传统与现代、东方和西方碰撞、融合,形成别具一格的现代东方美感世界。

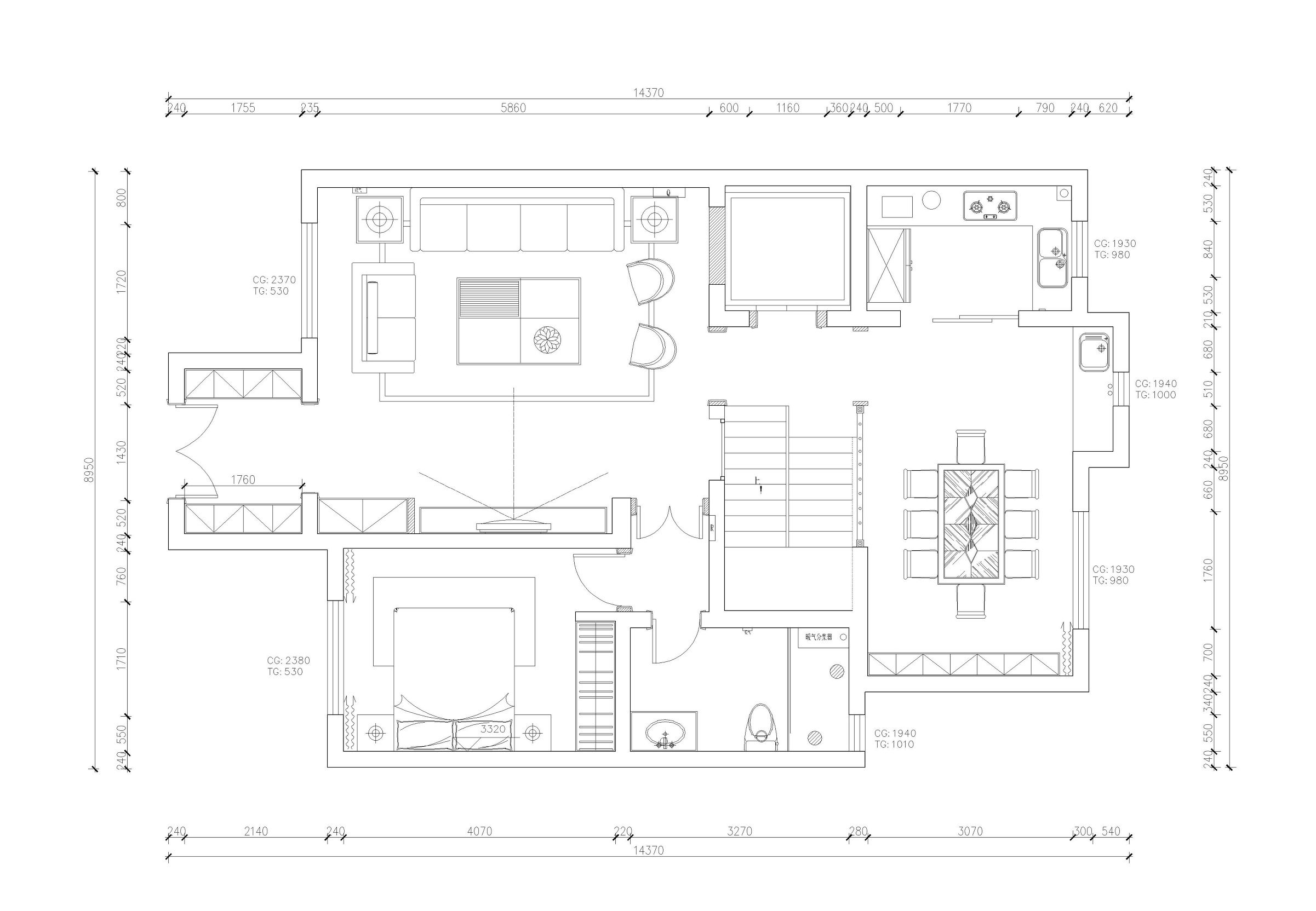
一楼平面图
漫山香墅
户型结构:别墅
工程预算:30万 建材预算:150万 设计风格:新中式风格

-
设计师简介
刘玮玮
主任设计师
擅长风格
美式风格,欧式风格,中式风格,简约风格
代表作品
财富中心
黄金山水郡
漫山香墅
领秀城
锦兰园
重汽1956
东城逸家
绿地隆悦公馆
绿城百合
银丰唐郡桂花园
华山龙城
中海国际
奥龙观邸
顺奥华府
鑫源山庄
鑫苑名家
长青常春藤
三箭瑞福苑
卢浮宫馆
碧桂园
华润中央公园
中建文化城
保利海德等
获得奖项
2007年通过室内设计师资格认证
2009年全国第四季度综合评比获设计师称号
2011年设计师峰采大会评比中荣获优秀设计师
2012年全国第二季度综合评比获优秀设计师称号
2013年设计师个人合并产值第一名
2014年皇冠杯室内设计大赛入围奖
2014年峰墅设计大会评比优秀设计师