HUARAN
人生的意义
也许永远都没有答案
但也要尽情享受
这种没有答案的人生
作品详情
作品信息
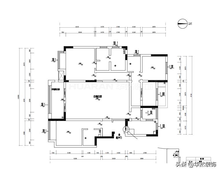
项目地址:合肥·南七里御水园
项目户型: 大平层
项目面积: 155㎡
项目风格: 现代
作品名称: 《归宁》
设计施工:安徽华然装饰集团
写在前面
屋主是年轻的夫妻俩,有一个在上幼儿园的女儿。正处拼事业的他们对于家的环境要求是干净舒适,大而不空,有趣,适合孩子成长。于是,一套治愈系的温馨小窝就这样诞生了。
设计解析


- 进门玄关柜子的造型,在满足储物空间的基础上,如何把形式感,次序做的更能满足美感,用了悬挑柜的形式;
- 在过道区域,调整主卧室房间门的位置,把过道一分为二,一部分释放出酒柜,一部分释放给卫生间,来满足储物空间和使用空间;
- 厨房门位置调整,把原来的单开门调整成7字型移门。使得整个厨房空间内部和外面卫生间干渠形成对称的形式
综上所述,本案的空间感,次序感,美感层层递进,视觉是一直有延伸颜色造型一直有延续,碎而不乱。

入户进门处设计了悬挑柜,玄关柜底部做了地台,中间留空。相比原户型逼仄的独立玄关厅,这样的设计让空间,隔而不断,增加收纳的同时,与客餐厅有了分区,增加室内空间的私密性。

客厅遵循现代简约风,用简单的灰白纯色进行打底,辅以温柔的大地色,烘托空间宁静惬意的舒适感。

阳台客厅打通,空间显得更加宽敞,温暖的光线自然地穿透引援,慵懒地倾泻于室内。
窝在软塌塌的皮质沙发里,静静享受静谧的时光,真的超级惬意。

沙发背景墙用不同材质,色彩,造型来打造有层次的空间美感。白墙和木纹色护墙板结合,深咖色沙发搭配白色洞洞柜,再加上树形岿然的七彩千年木,整片空间的视觉画面非常饱满,纯粹简单却不失趣味灵动。

电视内嵌的悬空岩板墙结合地台,收纳柜的形式,集功能性和装饰性为一体,素净有致。

餐厅隐匿在悬挑柜背后,旁边设置一组半高的餐边柜,相比于通顶的柜体,这样的组合在视觉上减轻了厚重感,让空间看上去更加轻便,开敞。

业主夫妻平时喜欢邀请朋友来聚餐,所以选择了圆形餐桌,当客人比较多的时候,围坐一圈也不会显拥挤。桌面是亮面岩板,耐看百搭,打理起来非常方便。
经过改造,主卧的门向右调整过道的空间释放出来一部分做了酒柜,另一部分做了卫生干区,增加收纳性和实用性,提高了空间利用率。
嵌入式的展示柜深色的木制底板搭配茶色玻璃门,高级感满满。

推开隐形门是舒适温暖的主卧空间,卧室继续延续了公区的自然舒适的状态。墙面不做过多修饰,还原最简单素净的起居环境。
北面打造了一个小的开放式衣帽间和主卫,卧室功能更加齐全。

主卫空间干净而利落,过道空间纳入后,面积增加,二分离式的格局,玻璃移门做隔断,有效做到了干湿分离。