都说新房装修要充分考虑到未来的居住变化,给予空间一定的成长性。但不可否认的是,“两人居设计”在现如今却也越来越火。
而像这种围绕“二人世界”打造的家,看似缺少了一定的实用性,但对于大多年轻人来说,实际上更加贴合生活方式。
像下面这对来自北京的年轻小夫妻,就结合了自身的需求,摒弃了常规的空间格局,打造出了一个极度温暖舒适的两人居,真的太让人羡慕了。
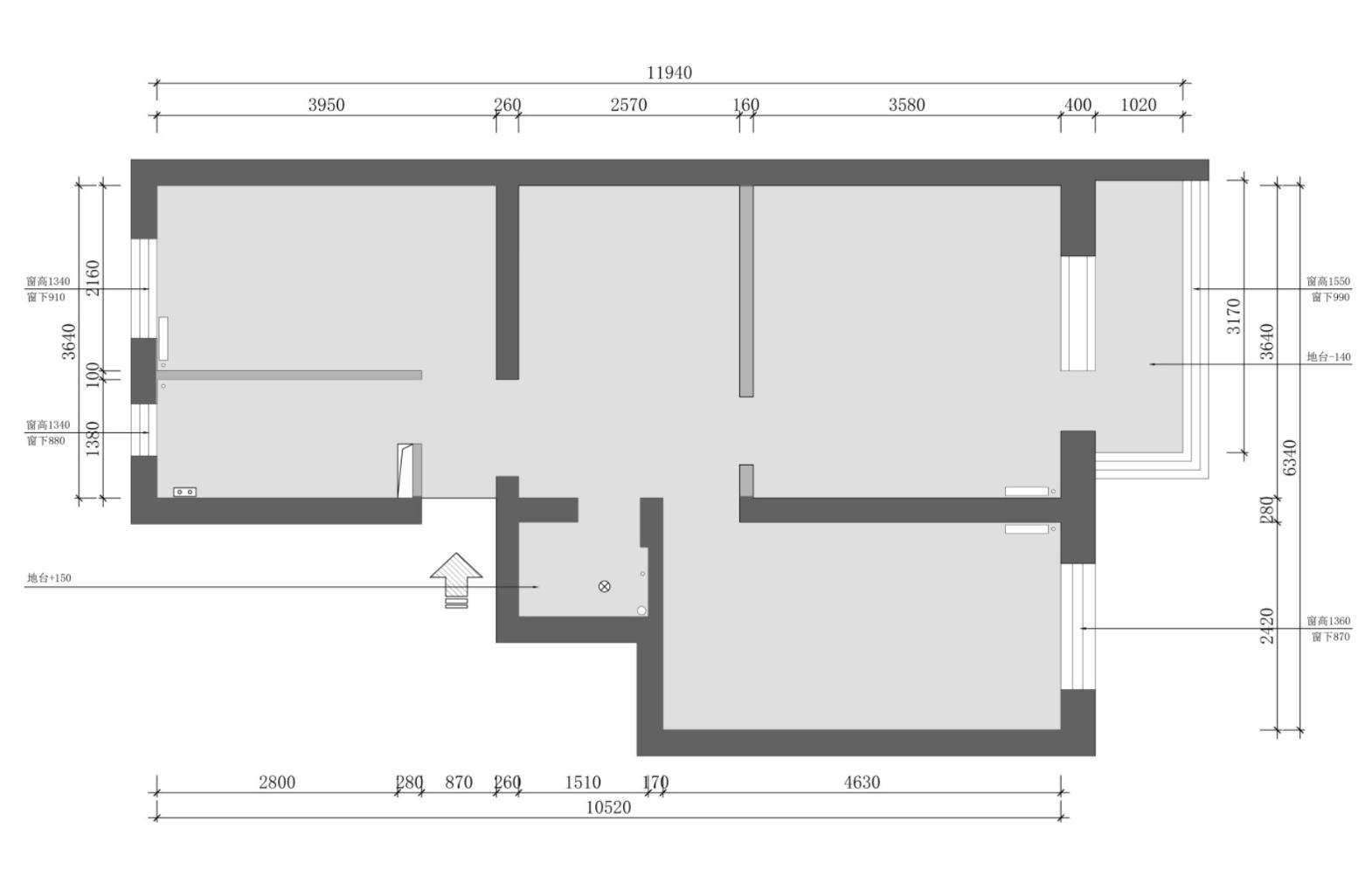
原始结构图

原户型是一套旧房,建面49㎡,由于之前被用于出租,所以内部被分隔成了多个房间,导致空间异常拥堵、昏暗,完全不符合屋主的居住需求。
屋主是一对年轻的小夫妻,倾向原生态的生活环境,并希望空间设计能完全围绕二人的生活方式展开,最大程度提升居住舒适性。
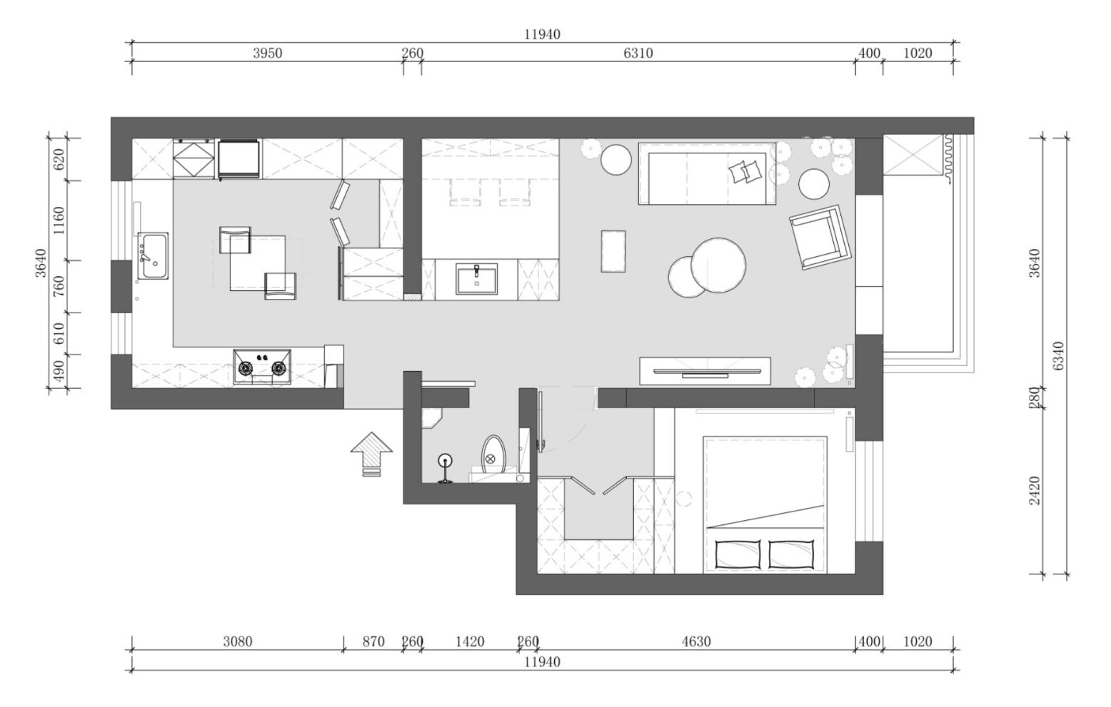
平面方案图

改造亮点:
1、厨房与旁边的房间合并,打造出一体化的餐厨区。
2、拆掉原客厅的隔墙,让空间更加通透,并规划出一块办公区。
3、主卧增加独立衣帽间,提升储物能力。
玄关

得益于餐厨区的结构调整,进门对面自然形成了一块玄关端景。复古风的成品鞋柜,充满生命力的绿植,以及一幅极简的装饰画组合,不仅为空间带来了舒缓放松的气息,还透着别样的精致与美好。当然,基本的入户收纳也得到了解决。
餐厨区

玄关左侧就是一体化的餐厨区,相较于原有的空间结构,无论是空间感,还是采光率,都得到了最大限度的优化。
地面木地板做人字形拼花,虽说铺设成本高了一点,但对于小户型来说,却也可以让空间更有律动感。尤其是在空间以原木风为主的情况下,更能减少视觉上的呆板与廉价感。

圆形的餐桌居中而设,再搭配上两把藤编餐椅,既增强了空间的质感,又在日常生活中做到了灵活。哪怕平日邀请几个朋友过来小聚,也丝毫不会显得拥挤。

餐桌一侧增加了整面墙的高柜设计,让壁挂洗衣机、洗烘套装、冰箱都得到了合理收纳,且让生活动线得到了优化。同时,藏露结合的柜体设计,也各自承担了不同的储物功能。

L型的橱柜布局+集成灶组合,除了可以进一步拓展空间的储物能力之外,对于开放式餐厨区来说,也有着更加良好的排烟效果,避免油烟对其它空间产生影响。


玄关端景背面,规划出了一个独立的杂物间,用来收纳一些不常用的物品,继而减少空间的凌乱感。同时,百叶门板选择也相当细节,可以保证内部有一个不错的通风环境。

客厅

玄关右侧就是打开后的客厅,极简的硬装处理,温润的原木家具选择,整个空间都透着一抹质朴自然的气息,且还有着一丝复古的雅致。

电视墙没有做过多的处理,浅灰色的涂料,再搭配上成品原木家具、绿植,既在视觉上有了立体的层次感,又进一步提升了空间温度,且充满了生活的烟火气息。

经典的白色文化砖、复古的皮质沙发、柔软的黄牛皮地毯,仿佛立马就穿越到了北欧风情,并在舒适自由的生活形态中,给人了一种满满的电影氛围质感。
虽说在软装搭配上,运用到了大量不同的元素和色彩,但也是这种更加接地气的处理方式,打造出了两人居专属的沉浸与仪式感。


南阳台拆掉了原有的隔断窗户,并给地面做了整体抬高。一来让空间更加通透明亮了,二来也强调了休闲属性,以满足不同的生活场景模式。当然,收纳能力得到了扩充。

书房

客厅看向书房视角,由于两夫妻都是互联网工作者,所以就在沙发旁边规划出了一个开放式的办公区,满足日常办公需求。

办公区地面抬高,在区分空间的同时,也保留下了便捷的互动与交流。右侧增加组合书桌柜,可轻松满足两夫妻共同办公的需求。而书桌背面则做了书架+玻璃隔断组合,兼顾了实用与通透性。

卫生间

考虑到原卫生间面积太过拥挤,将洗手*独台**立到外面,并做围合式柜体设计。不仅有效改善了生活使用效率,还拥有了大量的储物能力,从而让空间更加整洁秩序。

湿区取消了淋浴隔断,可以一定程度缓解空间的拥挤性。当然,后期也可以通过加装浴帘来起到防溅水的作用。
卧室

推开卧室的门,就是一个独立的衣帽间,青绿色的门板,再搭配上极简的拉手处理,简洁又治愈,且提供了超强的储物能力。


睡眠区再次做了榻榻米地台设计,一来是为了扩充收纳能力,二来是由于空间面积被压缩了,所以直接做地台床布局,反而可以起到放大空间感的作用。

床头墙面同样铺贴了白色文化砖,使其与客厅产生了一定的呼应。同时,咖色的皮质床头,深色的原木窗套,也给予了居住者一个静谧的睡眠环境。
特别说明一下,为了方便拿取物品,床垫下方设置了液压支撑,且还在床垫位置做了一点下沉处理,规避床垫产生移动的问题。

床头一侧的衣柜充当了净衣区和梳妆台功能,避免每次换衣还得进入衣帽间,让生活动线更加人性化。

本案就分享到这里,对于“两人居设计”可能很多人都有疑问,就是后期有了孩子该怎么办?事实上,这种设计主要还是得结合自身的需求。
如果近两年不打算要孩子的话,是完全没有问题的,毕竟孩子一般都是5岁后才会需要独立房间。况且,5-10年翻新一次装修,也是很正常的现象。
图源/苌硕CHANG
图文编辑/小拾
以上案例仅为设计师分享,部分素材参考于网络,如侵犯了您的相关权益,请后台私信删除。