近几个月的楼市风浪,一浪赛过一浪,在调控加码的“新政”下,整体行情依然火热。
今日,两大“红盘”中签率先后出炉,位于文教板块,被誉为“最长锁盘”的建发·书香印翠, 139套房源最终共有1058人登记,中签率13%,惊险避开“限售五年”。

○书香印翠登记公示
而另一位于铁路北的楼盘星创晶悦府则没有逃过“限售”命运。 305套房源,吸引了3490户家庭登记,中签率仅8.7%

○晶悦府登记公示
值得一提的是,就在晶悦府中签率出炉不久后, 星创双子星项目——星创晶晖里也领出预售证,引起不少购房者关注。

○晶悦府晶晖里沙盘模型 尹小花摄
01
先来看今天突然领证的星创晶晖里。
和书香印翠一样,直接领出预售证,又是一个“三无项目”,即无售楼处、无样板房、无销售对接。
甚至有销售表示:

小凤凰辗转联系到了晶悦府的销售,系同一批人。目前晶晖里样板房还是没有开放,但是项目资料已经有了。
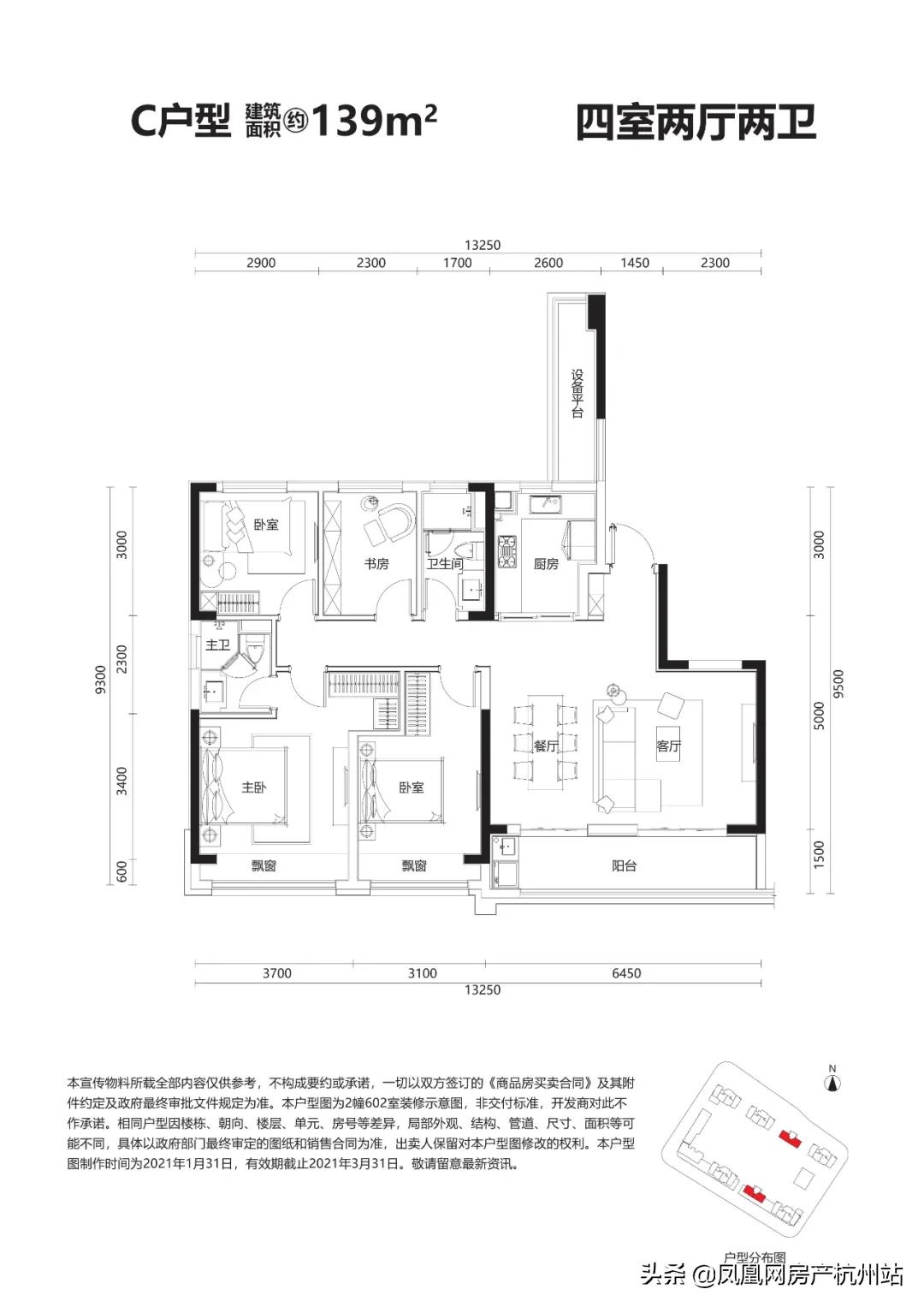
星创晶晖里位于主城拱墅区科园路和长滨街交叉口,项目总建筑面积约9.3万方,由8幢21-22层的现代风格景观高层及部分沿街商业组成。户型建面约103-139㎡。

○项目示意图 图片源自网络
值得一提的是,比起晶悦府,它不仅远离铁路,还有近地铁的优势。距离地铁4号线二期长浜廊路站约350米。

○图片源自网络
目前,该项目户型图也已经流出,仅从户型上看,每个户型基本都有大阳台,整体尺度都还不错。



103/120/139户型图
据销售表示,项目登记时间在23-25日,到时候会出具体的通知,项目交付时间是2023年底,冻资情况可以参考晶悦府。
不过,目前关于项目的加推信息暂时还不知道。
02
建发·书香印翠位于老城西文教板块,与早先大热的养云静舍系出同门,在文教板块供应量极为稀缺的现在,自然成为关注焦点。
上周五,建发·书香印翠在售楼处、样板房、户型图全无的情况下,突然领出预售证,惊到所有人。同时,关于它的讨论也不绝于耳,主要围绕在“交付时间”问题上。
据悉,该项目将于2026年年底交付,这一消息随后也被证实并非虚言, 交付时间为2026年12月31日是写在合同中的。
原因有二,一是项目东南两侧市政规划道路未通,通路条件可能存在*迁拆**,不确定性较大,如无法通路会影响项目市政管网联通,影响竣工备案;其次工程进度也会受到2022年亚运会的影响。
根据楼市新政,一旦中签率低于10%,楼盘将“限售五年”,这也意味着,该楼盘至少10年内无法进行二手交易,将成为目前杭州“限售”时间最长的项目之一。
所幸,在长达五年的交付时间和“最长锁盘”的可能性影响下,该楼盘最终未能创造低于10%的中签率,对于摇中的购房者来说,无疑是一个*彩大**蛋。
不过小凤凰还是要友情提醒,首开侥幸逃过,加推却未必哦!
58000元/㎡的书香印翠低调首开,将会是杭州第一个“十年限售”项目?
03
星创晶悦府并不是首开项目,不过其热度早已经被市场印证过。
2020年12月29日,星创晶悦府拿证首开,76套房源有857组家庭抢买,整体中签率低至8%,当时的登记结果在1月27日的新政之前,所以这一批购房者并不在“限售”范围内。
中签率随着加推次数越开越低,已经成了当下楼市不成文的“定律”。
本次二推,晶悦府加推楼盘数量比上次增加了近四倍,305套房源,直接吸引了3490户家庭登记,中签率仅8.7%,直接锁盘。

○晶悦府沙盘 摄/尹小花
要知道,这一次,晶悦府还和金地大运桥西府的登记人数有了直面的对冲,被金地大运桥西府府锁着6392户登记家庭。两个盘在总价段和地段上都有相似之处,也都有文澜二小和文澜中学的学区预期(请注意:期房不承诺学区,只是预期)
(关于大城北的7个楼盘对比,小凤凰也曾有详细的文章说明,可以直接戳这里:干货!城北3.6-4万元/㎡价格带崛起?在售7盘或许均逃不过“限售5年”......)
用“红到发紫”来形容最近的大城北,应该并不夸张。