客户做服装生意,对于设计风格要求比较高,一家四口人外加保姆来居住,生活空间以及功能细节要到位,后期软装也要搭配好,经常有服装设计师会来家里,所以对于房子的期望值很高。




此方案定为美式风格,客厅作为待客区域,使用大量的石材和木饰面装饰;这不仅反映在软装摆件上对仿古艺术品的喜爱,同时也反映在装修上对各种仿古墙地砖、石材的偏爱和对各种仿旧工艺的追求。



美式风格有着欧罗巴的奢侈与贵气,但又结合了美洲大陆这块水土的不羁,这样结合的结果是剔除了许多羁绊,但又能找寻文化根基的新的怀旧、贵气加大气而又不失自在与随意的风格。



厨房作为开敞式厨房,同时需要有一个便餐台在厨房的一隅,还要具备功能强大又简单耐用的厨具设备,如水槽下的残渣粉碎机,烤箱等。需要有容纳双开门冰箱的宽敞位置和足够的操作台面。




阳台,书房,卫生间,卧室美式家居风格的这些元素也正好迎合了时下的文化资产者对生活方式的需求,满足了客户对房子的期望。

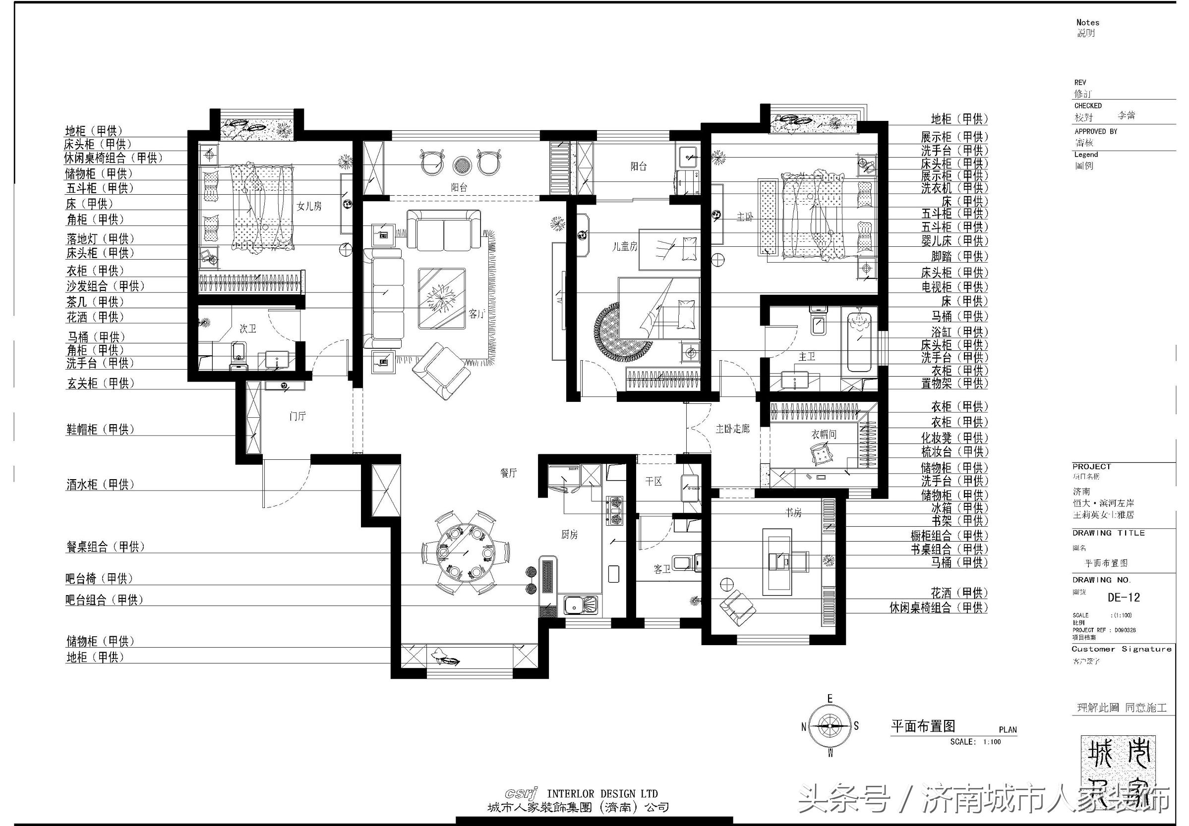
恒大滨城左岸平面布局图
主案设计师:孟凡宁
装修风格:美式风格
小区:恒大·滨河左岸
面积:220平
户型:四室两厅一厨三卫